Contact Agent
Contact Templeton Robinson (Lisburn Road)
3 Bed Townhouse
A7 18A Adelaide Park
Malone Road, Belfast, BT9 6FX
offers over
£495,000
Key Features & Description
Luxurious townhouse in one of Malone's most sought after parks
Recently upgraded throughout including carpeting on stairs & first floor
Fabulous modern, fully fitted kitchen with granite worktops and high end appliances
Opening to ample living and dining space
Three large bedrooms, including large, bright, principal suite, with en suite shower room/ an impressive top floor bedroom with access to private garden
Modern first floor bathroom with contemporary tiling
Ground floor WC
Timber sliding sash double-glazed windows with custom shutters on ground & first floors
Phoenix gas centre heating/ Many outstanding modern features yet retaining a feeling of charm
Superb, secluded, privately owned roof terrace/ 2 car parking spaces to rear, beautifully landscaped communal gardens, location within a short distance walk from the Lisburn Road
Ideal for a range of buyers
Description
This exceptional luxury three-storey town residence enjoys a prime position within an impressive Victorian conversion, discreetly set back and overlooking beautifully maintained gardens. It is one of just ten exclusive, individually designed homes, located on one of Malone"s most desirable wide, tree-lined parks, with the many amenities of the Lisburn Road only a short stroll away.
The property provides bright, spacious and flexible accommodation, finished to an excellent standard throughout. Perfectly suited to contemporary living, it benefits from a range of modern features while still retaining a sense of warmth, character and charm.
Overall, this outstanding home offers an enviable combination of location, quality, space and presentation, and is sure to appeal to a broad range of purchasers. Early viewing is highly recommended to avoid disappointment.
This exceptional luxury three-storey town residence enjoys a prime position within an impressive Victorian conversion, discreetly set back and overlooking beautifully maintained gardens. It is one of just ten exclusive, individually designed homes, located on one of Malone"s most desirable wide, tree-lined parks, with the many amenities of the Lisburn Road only a short stroll away.
The property provides bright, spacious and flexible accommodation, finished to an excellent standard throughout. Perfectly suited to contemporary living, it benefits from a range of modern features while still retaining a sense of warmth, character and charm.
Overall, this outstanding home offers an enviable combination of location, quality, space and presentation, and is sure to appeal to a broad range of purchasers. Early viewing is highly recommended to avoid disappointment.
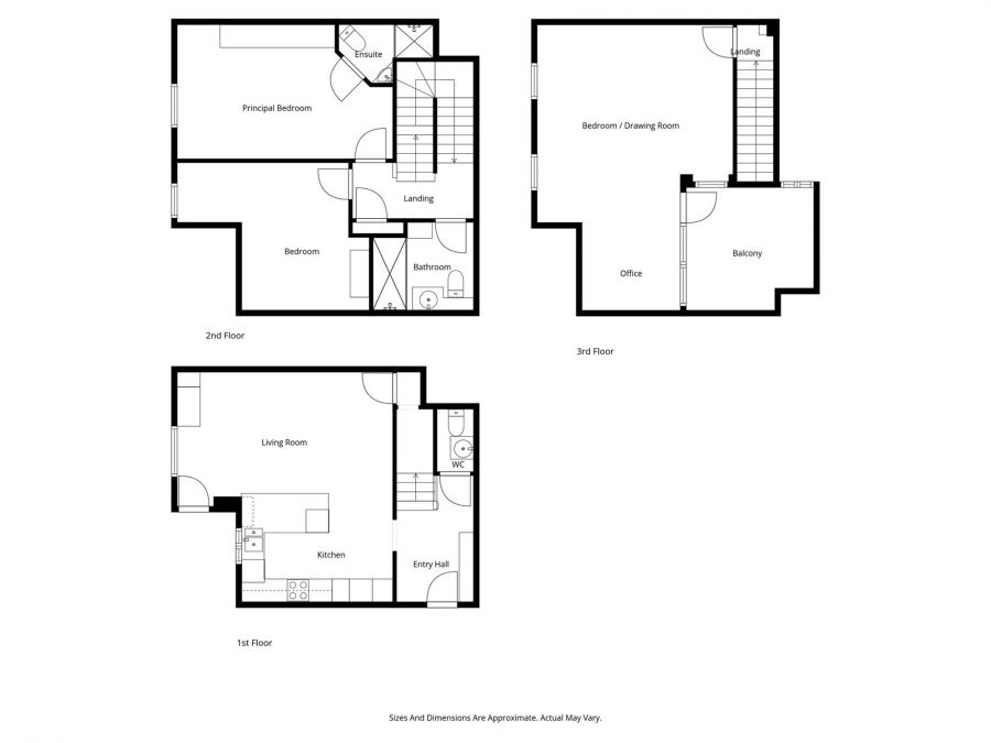
Rooms
COMMUNAL ENTRANCE HALL:
Stone tiled floor. Door to No. 7:
RECEPTION HALL:
Luxurious vinyl oak herringbone style floor. Boot room area and cloaks area. Built-in storage cupboards.
DOWNSTAIRS W.C.:
White suite comprising low flush wc, pedestal wash hand basin with chrome mixer taps, luxurious vinyl oak floor, extractor fan.
RECENTLY INSTALLED MODERN FULLY FITTED KITCHEN: 20' 3" X 18' 5" (6.17m X 5.61m)
Excellent range of high and low level units, built-in Hotpoint oven and additional combi oven/microwave above, integrated fridge and freezer, pull-out larder cupboard, bin disposal unit, integrated four ring induction hob with extractor fan above, quartz stone worktops, single drainer sink and a half sink unit with mixer taps, additional pull-out larder cupboards, built-in wine cooler, integrated washing machine, integrated dishwasher, low voltage spotlights. Built-in breakfast bar with pendant lights, luxurious vinyl oak herringbone style floor. Open to living and dining space with mature outlook to front. Cornice ceiling, concealed Ideal gas fired boiler with additional built-in cupboards. Access door to gardens with glazed toplight. Built-in storage cupboard with additional storage cupboard under stairs.
LANDING:
Built-in storage cupboard.
BEDROOM (1): 18' 6" X 11' 6" (5.64m X 3.51m)
Mature outlook to front. Extensive range of built-in wardrobes.
ENSUITE SHOWER ROOM:
White suite comprising low flush wc, vanity sink unit with chrome mixer taps, fully tiled walls, chrome heated towel rail. Built-in shower cubicle with chrome shower unit, ceramic tiled floor, low voltage spotlights, extractor fan.
BEDROOM (2): 14' 9" X 12' 8" (4.50m X 3.86m)
Mature outlook to front.
WET ROOM:
White suite comprising low flush wc, vanity sink unit with timber top, chrome mixer taps, built-in shower with drying area and chrome overhead shower unit, tiled splashback, extractor fan, heated towel rail, porcelain tiled floor, built-in shelving.
LANDING:
Feature window offering natural light.
DRAWING ROOM/BEDROOM (3): 24' 10" X 16' 10" (7.57m X 5.13m)
Luxurious vinyl oak herringbone style floor, two skylights offering more natural light, uPVC double glazed access door to roof terrace.
ROOF TERRACE: 11' 0" X 10' 7" (3.35m X 3.23m)
Paved terrace with wall lighting ideal for barbecues and outdoor entertaining.
Two allocated car parking spaces. Communal garden area with mature shrubs.
Broadband Speed Availability
Potential Speeds for A7 18A Adelaide Park
Max Download
1800
Mbps
Max Upload
220
MbpsThe speeds indicated represent the maximum estimated fixed-line speeds as predicted by Ofcom. Please note that these are estimates, and actual service availability and speeds may differ.
Property Location
Mortgage Calculator
Directions
Heading out of Belfast on Malone Road, Adelaide Park is on the right after the Malone Road Petrol Station.
Contact Agent
Contact Templeton Robinson (Lisburn Road)
Request More Information
Requesting Info about...
A7 18A Adelaide Park, Malone Road, Belfast, BT9 6FX
By registering your interest, you acknowledge our Privacy Policy
By registering your interest, you acknowledge our Privacy Policy