Contact Agent

Contact Templeton Robinson (Lisburn Road)
5 Bed Detached House
15 Bristow Park
Malone, Belfast, BT9 6TF
offers over
£845,000
- Status For Sale
- Property Type Detached
- Bedrooms 5
- Receptions 3
- Heating Gas
-
Stamp Duty
Higher amount applies when purchasing as buy to let or as an additional property£32,250 / £74,500*
Key Features & Description
Extended, Five Bedroom Detached Home with Mature Surrounding Gardens in A Very Popular Residential Location
Spacious Entrance Hall with Under Stairs Storage and Cloakroom/wc
Lounge with Feature Fireplace and Bay Window
Separate Living Room
Open Plan Modern Fitted Kitchen Open Plan to Casual Living and Dining Room with Patio Door to Rear Gardens
Utility Room
Six Well Proportioned Bedrooms (Two With Ensuite Shower Rooms)
Modern Bathroom
Gas Heating / Double Glazed Windows
Ideal Family Home in Super Location Close to Many Leading Schools in the Area
Retaining Many Fine Features Including; High Ceilings, Cornicing, Wood Floors and South Facing Front Gardens
Situated Within Easy Access Of The M1 Motorway and All The Amenities Of The Lisburn Road and Into The City Centre
Priced to Allow for Modernisation and Updating
Description
This excellent, extended detached family home is situated on a generous site with delightful surrounding gardens in lawns, beds, shrubs, bushes and mature trees. The property is ready for some modernisation and updating.
The property offers well proportioned family accommodation comprising; spacious entrance hall with cloakroom/wc, two reception rooms, modern fitted kitchen open to dining and living area and utility room. There are six good sized bedrooms (two with ensuite shower rooms) and main bathroom.
Externally there are beautifully landscaped surrounding gardens with south facing lawns to the front with mature screening, driveway parking for several cars and an attached garage.
The property is extremely convenient to a host of amenities in the surrounding area including; shops, cafes, bars, public transport and leading schools.
We anticipate interest should be high so early viewing is encouraged.
This excellent, extended detached family home is situated on a generous site with delightful surrounding gardens in lawns, beds, shrubs, bushes and mature trees. The property is ready for some modernisation and updating.
The property offers well proportioned family accommodation comprising; spacious entrance hall with cloakroom/wc, two reception rooms, modern fitted kitchen open to dining and living area and utility room. There are six good sized bedrooms (two with ensuite shower rooms) and main bathroom.
Externally there are beautifully landscaped surrounding gardens with south facing lawns to the front with mature screening, driveway parking for several cars and an attached garage.
The property is extremely convenient to a host of amenities in the surrounding area including; shops, cafes, bars, public transport and leading schools.
We anticipate interest should be high so early viewing is encouraged.
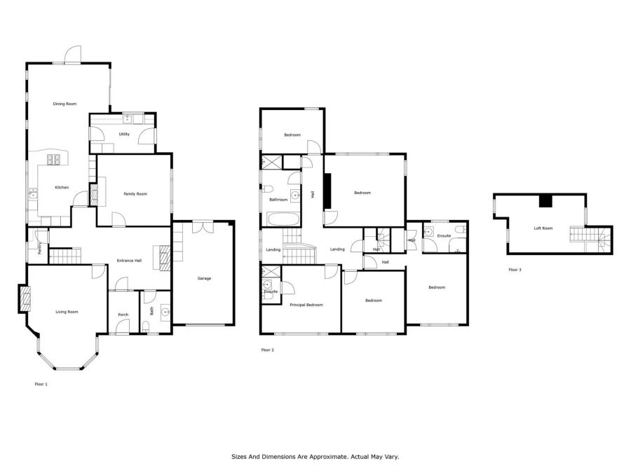
Rooms
Hardwood front door and glazing to . . .
ENTRANCE PORCH:
Tiled floor. Hardwood door and glazing to . . .
RECEPTION HALL:
Wooden floor, wood panelling, sandstone fireplace and gas coal effect fire, cloaks cupboard.
CLOAKROOM / WC:
Low flush wc, wash hand basin, fully tiled walls, wooden floor.
LOUNGE: 21' 5" X 15' 9" (6.53m X 4.80m)
Marble fireplace, cornice ceiling, picture rail, bay window, wood strip floor.
MODERN FITTED KITCHEN OPEN PLAN TO CASUAL LIVING/DINING AREA: 33' 5" X 16' 5" (10.19m X 5.00m)
Range of high and low level units, granite work surface, 1.5 bowl stainless steel sink, granite drainer, integrated fridge freezer, integrated double oven, five ring gas hob, stainless steel extractor fan, integrated dishwasher, ceramic tiled floor, low voltage spotlights, uPVC doors to rear.
UTILITY ROOM: 12' 1" X 7' 11" (3.68m X 2.41m)
Range of high and low level units, work surfaces, single drainer stainless steel sink unit, plumbed for washing machine, space for tumble dryer, two gas boilers, ceramic tiled floor, door and glazing to rear.
FAMILY ROOM: 15' 1" X 14' 0" (4.60m X 4.27m)
Painted fireplace with cast iron inset and slate hearth, gas coal effect fire.
LANDING:
Feature window, airing cupboard.
BEDROOM (1): 14' 8" X 12' 5" (4.47m X 3.78m)
Built-in wardrobe.
ENSUITE SHOWER ROOM:
White suite comprising low flush wc, pedestal wash hand basin, uPVC sheeted shower, fully tiled walls, ceramic tiled floor, extractor fan.
BEDROOM (2): 16' 1" X 14' 8" (4.90m X 4.27m)
BEDROOM (3): 15' 8" X 14' 2" (4.78m X 4.32m)
Laminate wood effect floor.
ENSUITE SHOWER ROOM:
White suite comprising low flush wc, pedestal wash hand basin, fully tiled shower cubicle, ceramic tiled floor, low voltage spotlights, extractor fan.
BEDROOM (4): 12' 5" X 8' 1" (3.78m X 2.46m)
Sanded and varnished floor boards.
BEDROOM (5): 15' 6" X 12' 1" (4.72m X 3.68m)
Oak floor.
MODERN BATHROOM:
White suite comprising low flush wc, tiled bath, vanity unit with wash hand basin, fully tiled shower cubicle with electric shower.
BEDROOM (6)/OFFICE:
Sanded and varnished floor boards, storae into eaves, Velux windows.
Beautiful mature south facing front garden in lawns with boundary hedging and Silver Birch mature trees. Paved parking for four cars to . . .
ATTACHED GARAGE
Up and over door, shelving and units.
Enclosed rear garden in lawns with paved patio.
Broadband Speed Availability
Potential Speeds for 15 Bristow Park
Max Download
1800
Mbps
Max Upload
220
MbpsThe speeds indicated represent the maximum estimated fixed-line speeds as predicted by Ofcom. Please note that these are estimates, and actual service availability and speeds may differ.
Property Location

Mortgage Calculator
Directions
From Malone Road roundabout take Upper Malone Road, take Bristow Park on right hand side.
Contact Agent

Contact Templeton Robinson (Lisburn Road)
Request More Information
Requesting Info about...
15 Bristow Park, Malone, Belfast, BT9 6TF
By registering your interest, you acknowledge our Privacy Policy

By registering your interest, you acknowledge our Privacy Policy