Contact Agent

Contact Stewart Estate Agents

Contact Stewart Estate Agents

4 Bed Detached House

43 New Forge Road

Magheralin, BT67 0QL

offers around £339,950
  • Status For Sale
  • Property Type Detached
  • Bedrooms 4
  • Receptions 3
  • Heating Oil
  • EPC Rating F30 / E41
  • Stamp Duty
    Higher amount applies when purchasing as buy to let or as an additional property
    £6,998 / £23,995*
  • Typical Mortgage
    Click price to use our mortgage calculator
EPC Rating

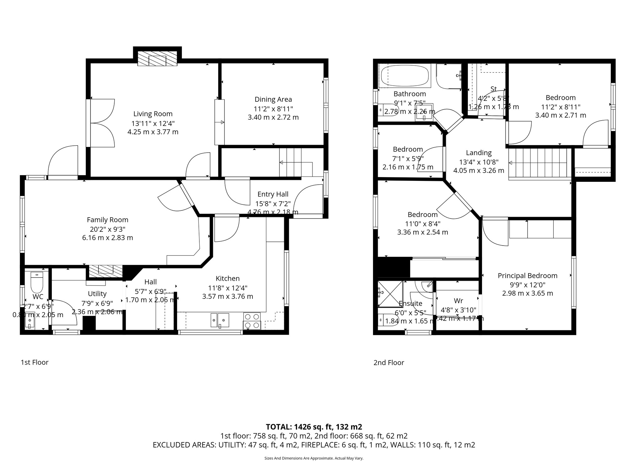
Description

This truly remarkable and exclusive detached residence enjoys a wonderful setting on the New Forge Road, convenient to the local village amenities, as well as Maralin Village Primary School and  to good local road networks to neighbouring towns and villages. 

The property has a stunning interior presentation, reflecting the good taste and meticulous eye of the present owners who have created a magnificent home for modern living, having a practical configuration of rooms which will appeal to a wide spectrum of potential purchasers including the family market in particular. 

An ideal opportunity for those seeking a more individual home on a more secluded yet convenient setting. Viewing a must!

 

Features:-

Stunning detached residence with detached garage

Four bedrooms or three bedrooms and a study

Master bedroom with ensuite shower room and dressing room 

Entrance porch with an attractive front door leading into the hallway with a spindled staircase to the first floor accommodation. Cloak cupboard under stairs

Elegant open plan living room with a raised dining room, having a beautiful solid wooden floor through to the dining. Stunning feature fireplace with an inset and hearth

Separate family room with an attractive brick fireplace and an attractive wooden floor

A beautifully fitted kitchen with a good range of storage cabinets including a modern style oven and inset hob with extractor fan above. Built in dishwasher.

Separate rear hallway and utility area

Downstairs cloak room with WC and wash hand basin

Beautiful contemporary style bathroom with a free standing bath, WC and wash hand basin. Shower cubicle with a fitted shower fitment. Partially tiled walls with feature tiles

Detached garage, presently used as a studio. Existing garage door and separate service door

PVC double glazed windows

Oil fired central heating

Beautifully maintained gardens to the front and rear laid out in neat lawns. Tarmac driveway and parking area. Attractive boundary front wall with wrought iron railings and matching gates. Patio area to the rear for summer entertaining

Plans passed for an extended annex if required - Plans available for inspection at our office 

 

 

Broadband Speed Availability

Ultrafast

Potential Speeds for 43 New Forge Road

Max Download
1800
Mbps
Max Upload
220
Mbps
The speeds indicated represent the maximum estimated fixed-line speeds as predicted by Ofcom. Please note that these are estimates, and actual service availability and speeds may differ.

Property Location

Show Map

Mortgage Calculator

Disclaimer: The following calculations act as a guide only, and are based on a typical repayment mortgage model. Financial decisions should not be made based on these calculations and accuracy is not guaranteed. Always seek professional advice before making any financial decisions.

Directions

From main Moira to Lurgan Road at Magheralin, take New Forge Road, no. 43 is on the right hand side.

Contact Agent

Contact Stewart Estate Agents

Contact Stewart Estate Agents

Request More Information
Requesting Info about...
43 New Forge Road, Magheralin, BT67 0QL 43 New Forge Road, Magheralin, BT67 0QL

By registering your interest, you acknowledge our Privacy Policy