Contact Agent

Contact Stewart Estate Agents

Contact Stewart Estate Agents

3 Bed Detached House

4 Wellington Park Drive

Maghaberry, BT67 0UP

offers around £299,950
  • Status For Sale
  • Property Type Detached
  • Bedrooms 3
  • Receptions 2
  • Heating Oil
  • EPC Rating C70 / C76
  • Stamp Duty
    Higher amount applies when purchasing as buy to let or as an additional property
    £4,998 / £19,995*
  • Typical Mortgage
    Click price to use our mortgage calculator
EPC Rating

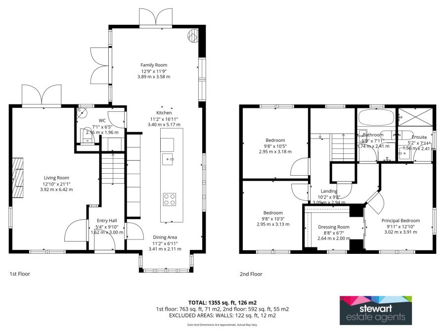
Description

A truly sensational detached exclusive residence, having an striking and attractive architectural design for modern living and providing a beautiful interior which will immediately appeal to those who view. The interior has elegant elevations from its practical layout and includes a contemporary style open plan kitchen with dining area and a spacious family area with exposed stone and corner cast iron stove. A luxury master bedroom suite includes an adjoining ensuite shower room, a  feature fitted wardrobe with sliding mirrored doors hiding an secluded doorway to a fitted walk-in dressing room, which can be returned to the fourth bedroom if required. 

The property forms part of a very desirable development of beautiful homes, convenient to the local amenities of Maghaberry as well as excellent road networks and major arterial routes. Viewing a must!

 

Features:-

Exclusive detached dwelling

Three bedrooms, master bedroom with an ensuite shower room and a fitted wardrobe concealing a doorway to a fitted walk in dressing room

The dressing room can revert to a fourth bedroom if required

Attractive front door leading into a bright hallway with a spindled staircase to the first floor accommodation

Living room with a feature contemporary  stone chimney breast with a beautifully designed gas fire inset and a coordinating  inset for a TV. Double doors to the rear garden

Beautifully designed, open plan kitchen with dining, leading though to the family area with two sets of PVC double glazed double doors to the rear garden. Exposed stone wall with a feature cast iron wood burning stove

Contemporary style fitted kitchen with a bespoke range of fitted inset wall cabinetry including a larder fridge and a larder freezer. Built in oven and microwave. Feature island unit including a generous range of storage with an attractive corrian work top with inset hob and inset sink unit. Attractive ceiling with LED lighting and inset extractor fan

Downstairs cloak room with WC and wash hand basin and space for a washing machine

Bathroom on the first floor with a beautifully designed suite including a bath, WC and wash hand basin. Corner shower cubicle with shower fitment

PVC double glazed windows

Oil fired central heating

Detached garage with a garage door and separate service door to the side

Brick paved driveway and fitted double gates to the side

Neat gardens front and rear laid out in lawns. Patio area and pathway

 

 

 

Broadband Speed Availability

Ultrafast

Potential Speeds for 4 Wellington Park Drive

Max Download
2000
Mbps
Max Upload
2000
Mbps
The speeds indicated represent the maximum estimated fixed-line speeds as predicted by Ofcom. Please note that these are estimates, and actual service availability and speeds may differ.

Property Location

Show Map

Mortgage Calculator

Disclaimer: The following calculations act as a guide only, and are based on a typical repayment mortgage model. Financial decisions should not be made based on these calculations and accuracy is not guaranteed. Always seek professional advice before making any financial decisions.

Directions

From Maghaberry Road, Maghaberry, turn into Hammond Road and then right into Wellington Park Way. Proceed over roundabout and into Wellington Park Drive. No. 4 is on right hand side.

Contact Agent

Contact Stewart Estate Agents

Contact Stewart Estate Agents

Request More Information
Requesting Info about...
4 Wellington Park Drive, Maghaberry, BT67 0UP 4 Wellington Park Drive, Maghaberry, BT67 0UP

By registering your interest, you acknowledge our Privacy Policy
Ask Holmes
Ask Holmes
Let's find your next home

Are you sure you want to reset the chat?

Checking API...