Contact Agent

Contact Stewart Estate Agents

Contact Stewart Estate Agents

Mixed Use

Tallentire House, 102 William Street

Lurgan, BT66 6JB

offers over £299,950
  • Status For Sale
  • Property Type Mixed Use
  • EPC Rating D78
  • Stamp Duty
    Higher amount applies when purchasing as buy to let or as an additional property
    £4,998 / £19,995*
  • Typical Mortgage
    Click price to use our mortgage calculator
EPC Rating

Description

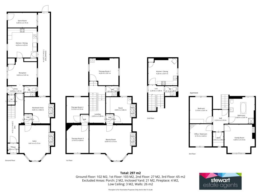
This truly impressive period property, having a striking bay window elevation, retains many of its character features and architectural mouldings, complimenting a very deceptive interior floor plan, which has been wonderfully designed over three floors. 

The property has the benefit of commercial planning, skilfully allowing an opportunity to utilise the generous accommodation for alternative configurations of room lets for small businesses, with a residential 2 bed apartment on the second floor. 

Originally this property was a very fine period residence, located on the prime and bustling William Street with its array of shops and businesses including The Ashburn Hotel and the Court House Bar. Right across the road is Lurgan train station providing access to Portadown, Newry and the south as well as Moira, Lisburn and Belfast Grand Central. The Lough Road will lead to the M1 interchange for Belfast and the west, whilst local attractions including Lurgan Golf Club, Oxford Island and Kinnego Marina as well as Northern Ireland largest and most beautiful urban Park. 

The sale of this truly unique property will allow many opportunities for a wide spectrum of potential investors seeking a large property in a prime location.  

Viewing a must! 

 

 

A very fine period property in a prime and bustling setting

Commercial planning has been obtained for individual room lettings

Period style front door and inner porch leading through to a beautiful hallway with an original staircase with newel posts and spindles leading to the first and second floors

Ground floor has a salon, separate therapy room, reception lounge and a spacious kitchen with a generous range of fitted high and low level cabinetry. A door leads to the rear court yard and a separate door leads to the side alley

Downstairs WC with WC and wash hand basin

The first floor has a half landing with therapy room with a separate WC with wash hand basin

Four further therapy rooms and beauty salon on the 1st floor

The second floor has a residential apartment with a half landing providing an open plan kitchen with dining area and generous range of high and low level kitchen cabinetry. A separate cloak room with WC and wash hand basin

The second floor has two bedrooms, a spacious bathroom with a free standing bath, shower cubicle, WC and wash hand basin. An attractive sitting room with period style fireplace 

Double glazed windows

Gas central heating

An opportunity for residential conversions, subject to all planning approvals and local authority consents

An enclosed rear yard from the kitchen

Store room or gym at the rear

Viewing by appointment only with the agent 028 9261 2121

Broadband Speed Availability

Ultrafast

Potential Speeds for 102 William Street

Max Download
1800
Mbps
Max Upload
220
Mbps
The speeds indicated represent the maximum estimated fixed-line speeds as predicted by Ofcom. Please note that these are estimates, and actual service availability and speeds may differ.

Property Location

Show Map

Mortgage Calculator

Disclaimer: The following calculations act as a guide only, and are based on a typical repayment mortgage model. Financial decisions should not be made based on these calculations and accuracy is not guaranteed. Always seek professional advice before making any financial decisions.

Directions

Willian Street / Lough Road, Lurgan.

Contact Agent

Contact Stewart Estate Agents

Contact Stewart Estate Agents

Request More Information
Requesting Info about...
Tallentire House, 102 William Street, Lurgan, BT66 6JB Tallentire House, 102 William Street, Lurgan, BT66 6JB

By registering your interest, you acknowledge our Privacy Policy
Ask Holmes
Ask Holmes
Let's find your next home

Are you sure you want to reset the chat?

Checking API...