Contact Agent

Contact Stewart Estate Agents

Contact Stewart Estate Agents

2 Bed Detached House

15A Tullydagan Road

Lurgan, BT67 9LJ

offers around £399,950
  • Status For Sale
  • Property Type Detached
  • Bedrooms 2
  • Receptions 1
  • Heating Solid Fuel
  • EPC Rating F34 / D66
  • Stamp Duty
    Higher amount applies when purchasing as buy to let or as an additional property
    £9,998 / £29,995*
  • Typical Mortgage
    Click price to use our mortgage calculator
EPC Rating

Description

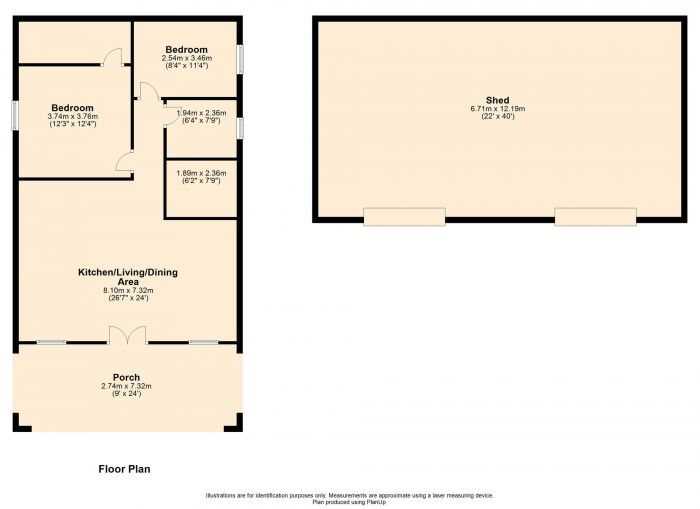
A wonderful opportunity for rural living, this delightful Log Cabin enjoys a pleasant countryside site, extending to approximately 1.7 acres and includes the gardens, paddock, yard area and a detached workshop / garages and some storage sheds. The property may have the potential for building sites, subject to all planning permissions and local authority consents.

The Tullydagan Road is convenient to the Cornakinnegar/Aghalee Road for Lurgan and Crumlin as well as neighbouring towns and villages including Aghagallon, Aghalee and Moira with its M1 interchange as well as Moira train Station.

 

Charming detached Log Cabin

Purposely designed accommodation including an open plan kitchen/dining and living room with cast iron wood burning stove

2 bedrooms 

Newly refitted contemporary style Shower room

Separate utility room with fitted units and door to the side

Impressive entrance with double gates

Site extends to approximately 1.7 acres

PVC triple glazed windows

Adjoining yard with detached garage or workshop with roller garage doors

Some storage sheds

 

 

 

Broadband Speed Availability

Superfast

Potential Speeds for 15a Tullydagan Road

Max Download
34
Mbps
Max Upload
5
Mbps
The speeds indicated represent the maximum estimated fixed-line speeds as predicted by Ofcom. Please note that these are estimates, and actual service availability and speeds may differ.

Property Location

Show Map

Mortgage Calculator

Disclaimer: The following calculations act as a guide only, and are based on a typical repayment mortgage model. Financial decisions should not be made based on these calculations and accuracy is not guaranteed. Always seek professional advice before making any financial decisions.

Directions

Off Cornakinnegar Road, Lurgan

Contact Agent

Contact Stewart Estate Agents

Contact Stewart Estate Agents

Request More Information
Requesting Info about...
15A Tullydagan Road, Lurgan, BT67 9LJ 15A Tullydagan Road, Lurgan, BT67 9LJ

By registering your interest, you acknowledge our Privacy Policy
Ask Holmes
Ask Holmes
Let's find your next home

Are you sure you want to reset the chat?

Checking API...