2 Bed Detached House
15A Tullydagan Road
Lurgan, BT67 9LJ
offers around
£175,000

Key Features & Description
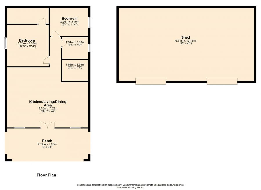
Charming detached Log Cabin
Purposely designed accommodation including an open plan kitchen/dining and living room with cast iron wood burning stove
Oak fitted kitchen with built in appliances
2 bedrooms
Shower room
Separate utility room with fitted units and space for washing machine and tumble dryer
Attractive entrance gates
Site/paddock in grass
PVC triple glazed windows
Adjoining yard with detached garage or workshop with roller garage doors
Some storage sheds
Additional land can be purchased by separate negotiation.
Description
A wonderful opportunity for rural living, this delightful Log Cabin enjoys a pleasant countryside site, extending to approximately 1 acre of paddock with the benefit of a yard with detached workshop / garages and some storage sheds.
The Tullydagan Road is convenient to the Cornakinnegar/Aghalee Road for Lurgan and Crumlin as well as neighbouring towns and villages including Aghagallon, Aghalee and Moira with its M1 interchange as well as Moira train Station
Broadband Speed Availability
Potential Speeds for 15A Tullydagan Road
Max Download
33
Mbps
Max Upload
6
MbpsThe speeds indicated represent the maximum estimated fixed-line speeds as predicted by Ofcom. Please note that these are estimates, and actual service availability and speeds may differ.
Property Location

Mortgage Calculator
Directions
Off Cornakinnegar Road, Lurgan
Contact Agent

Contact Stewart Estate Agents
Request More Information
Requesting Info about...
15A Tullydagan Road, Lurgan, BT67 9LJ
By registering your interest, you acknowledge our Privacy Policy

By registering your interest, you acknowledge our Privacy Policy