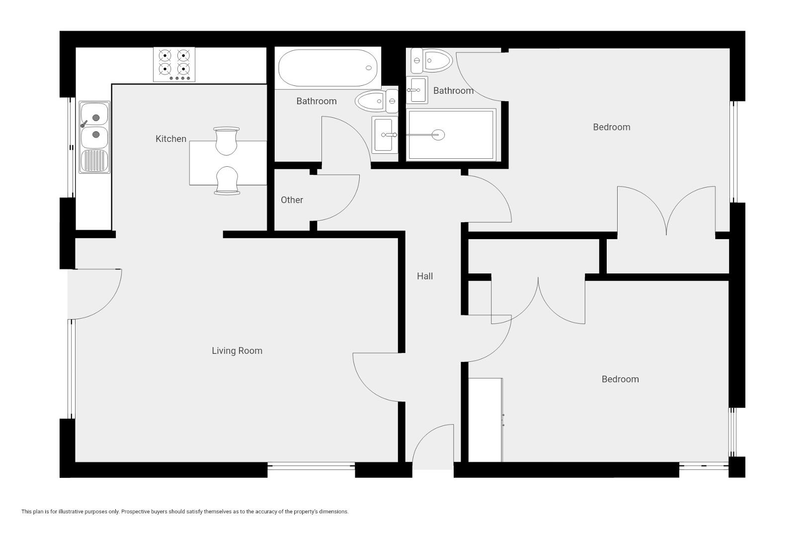
2 Bed Apartment
1 Silverwood Court
Lurgan, BT66 6RP
fixed price
£750pm
- Status For Rent
- Property Type Apartment
- Bedrooms 2
- Receptions 1
- Bathrooms 2
- Heating Gas
- Furnished Unfurnished
Key Features & Description
Two bedrooms
Ground floor
Gas heating
Open plan living area
Assigned parking space
Description
Beautifully finished throuhgout, this two bedroom ground floor apartment is ideally situated just a few minutes drive from both Lurgan town centre and the M1 motorway, making it ideal for anyone seeking a modern living space in a convenient location.
Beautifully finished throuhgout, this two bedroom ground floor apartment is ideally situated just a few minutes drive from both Lurgan town centre and the M1 motorway, making it ideal for anyone seeking a modern living space in a convenient location.
Broadband Speed Availability
Potential Speeds for 1 Silverwood Court
Max Download
1800
Mbps
Max Upload
220
MbpsThe speeds indicated represent the maximum estimated fixed-line speeds as predicted by Ofcom. Please note that these are estimates, and actual service availability and speeds may differ.
Property Location
Contact Agent
Contact Martin Anderson Property
Request More Information
Requesting Info about...
1 Silverwood Court, Lurgan, BT66 6RP
By registering your interest, you acknowledge our Privacy Policy
By registering your interest, you acknowledge our Privacy Policy