Contact Agent

Contact Joyce Clarke

Contact Joyce Clarke

4 Bed Detached House

30, Laurelmount Meadows

Kilvergan Road, Derrymacash, Lurgan, BT66 6LF

Price on Application
  • Status Sale Agreed
  • Property Type Detached
  • Bedrooms 4
  • Receptions 2
  • Bathrooms 3
  • Interior Area 1678 sq ft
  • Heating Gas
  • Typical Mortgage
    Click price to use our mortgage calculator

Description

4 BEDROOM DETACHED HOME
Floor area: 1678 sq ft approx
Floor area including Optional Garden Room: 1845 sq ft approx.
6 BEDROOM DETACHED HOME (optional extra second floor conversion)
Floor area including Optional Second Floor Conversion: 2106 sq ft approx

 

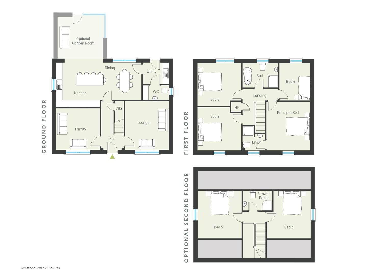
GROUND FLOOR

Entrance Hall with separate Cloakroom

Lounge ft 14’2” x 12’9” m 4.32 x 3.91

Family ft 12’9” x 12’1” m 3.91 x 3.67

Kitchen | Dining ft 24’8” x 12’10” m 7.55 x 3.95

Utility ft 7’7” x 6’3” m 2.32 x 1.90

Wc

Optional Garden Room ft 13’2” x 12’2” m 4.01 x 3.70

FIRST FLOOR

Principal Bedroom ft 14’2” x 12’8” m 4.32 x 3.88

Ensuite ft 6’6” x 4’9” m 2.00 x 1.47

Bedroom 2 ft 12’9” x 12’8” m 3.92 x 3.88

Bedroom 3 ft 12’8” x 12’8” m 3.90 x 3.88

Bedroom 4 ft 10’9” x 8’10” m 3.30 x 2.73

Bathroom ft 10’4” x 7’1” m 3.15 x 2.15

OPTIONAL SECOND FLOOR
Bedroom 5 ft 13’8” x 12’8” m 4.20 x 3.88
Bedroom 6 ft 13’8” x 12’8” m 4.20 x 3.88
Shower Room ft 8’6” x 5’8” m 2.60 x 1.75

Broadband Speed Availability

Unavailable

Potential Speeds for 30, 30, Laurelmount Meadows

Max Download
0
Mbps
Max Upload
0
Mbps
The speeds indicated represent the maximum estimated fixed-line speeds as predicted by Ofcom. Please note that these are estimates, and actual service availability and speeds may differ.

Property Location

Show Map

Contact Agent

Contact Joyce Clarke

Contact Joyce Clarke

Request More Information
Requesting Info about...
30, Laurelmount Meadows, Kilvergan Road, Derrymacash, Lurgan, BT66 6LF 30, Laurelmount Meadows, Kilvergan Road, Derrymacash, Lurgan, BT66 6LF

By registering your interest, you acknowledge our Privacy Policy
Ask Holmes
Ask Holmes
Let's find your next home

Are you sure you want to reset the chat?

Checking API...