Contact Agent

Contact Leonard Estate Agents

Contact Leonard Estate Agents

Land (Single Dwelling)

Knocks Road, Eshcarcoge

Lisnaskea, BT92 5AU

offers over £60,000
  • Status For Sale
  • Property Type Land (Single Dwelling)
  • Stamp Duty
    Higher amount applies when purchasing as buy to let or as an additional property
    £0 / £3,000*
  • Typical Mortgage
    Click price to use our mortgage calculator

Description

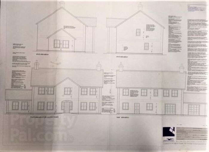
Leonard Estate Agents are delighted to present these two site's located in the Knocks to the Sale Market. Both of these sites would provide a substantial and well deisnged family home once built. Located in a good quiet location down a lane off of the Knocks Road and close to the town of Lisnaskea. This really is an excellent opportunity.

Features of these properties once built are as follows:

 

Site 1

  •        Detached

  •        Open plan Kitchen / Dining area

  •        Family Room

  •        Utility Room

  •        Downstairs W/C

  •        Sitting Room

  •        Playroom

  •        Large entrance hall

  •        Bedroom 1 – Built in wardrobes and en-suite

  •        Bedroom 2 – en-suite

  •        Bedroom 3

  •        Bedroom 4

  •        Computer / Office area on the landing

  •        Garage with pitched roof

  •        Footings are in place

     

    Site 2

  •        Detached

  •        Open plan Kitchen / Dining / Family Room

  •        Playroom

  •        Sitting Room

  •        Utility Room

  •        Downstairs WC

  •        Large Entrance Hall

  •        Bedroom 1 – Built in Wardrobes – en- suite

  •        Bedroom 2 – en-suite

  •        Bedroom 3

  •        Bedroom 4

  •        Bedroom 5

  •        Garage with pitched roof

  •        Footings are in place

     

    For further details please contact out office on 028 677 24242

     

    Mortgage: We are delighted to work with a highly experienced mortgage broker & we are happy to arrange an appointment so that you can discuss your requirements. 

    Leonard Estate Agents (NI) Limited (trading as Leonard Estate Agents) themselves and for the vendors or lessors of this property whose agents they are, give notice that: (A) The particulars are produced in good faith, are set out as a general guide only and do not constitute any part of a contract. (B) No person in the employment of Leonard Estate Agents have any authority to make or give any representation or warranty whatever in relation to this property.

  • Property Location

    Show Map

    Mortgage Calculator

    Disclaimer: The following calculations act as a guide only, and are based on a typical repayment mortgage model. Financial decisions should not be made based on these calculations and accuracy is not guaranteed. Always seek professional advice before making any financial decisions.

    Contact Agent

    Contact Leonard Estate Agents

    Contact Leonard Estate Agents

    Request More Information
    Requesting Info about...
    Knocks Road, Eshcarcoge, Lisnaskea, BT92 5AU Knocks Road, Eshcarcoge, Lisnaskea, BT92 5AU

    By registering your interest, you acknowledge our Privacy Policy
    Ask Holmes
    Ask Holmes
    Let's find your next home

    Are you sure you want to reset the chat?

    Checking API...