1 Bed Apartment
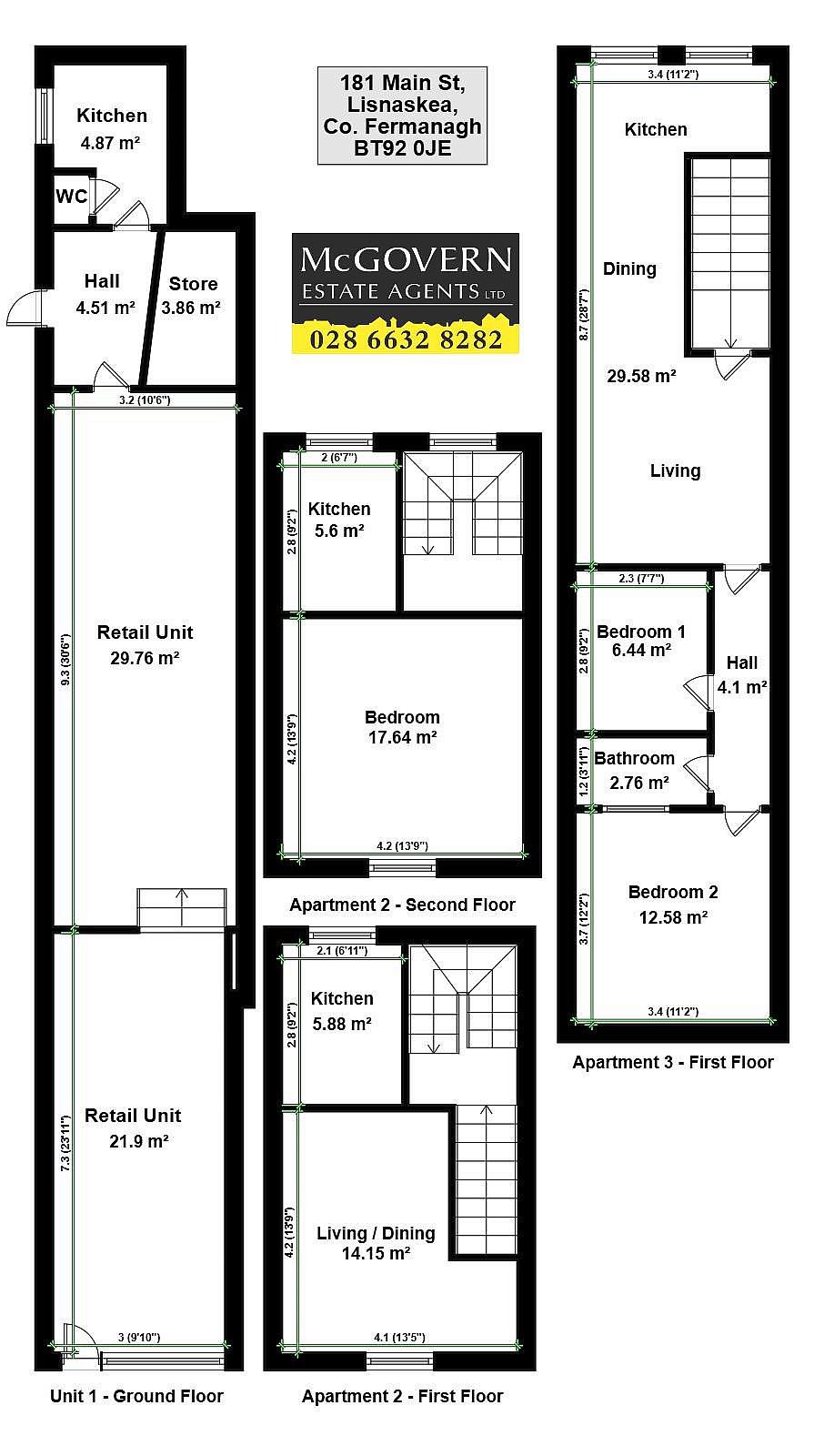
Apartment 2 Main Street
Lisnaskea, BT92 0JE
per week
£500
- Status For Rent
- Property Type Apartment
- Bedrooms 1
- Receptions 1
- Bathrooms 1
- Heating Electric Storage Heaters
Key Features & Description
Prime Investment Opportunity in Lisnaskea Town Centre
Three Units - commercial & residential
Ground floor available commercial multi-purpose unit
Description
TO LET - One-Bedroom Apartment:
Well-maintained and comfortable apartment in the heart of Lisnaskea town centre, split over two levels with a private entrance on the main st.
Electric to be paid by tenant.
Contact us today to obtain an application form.
Tel: 028 6632 8282
Email: info@mcgovernestateagents.com
Notice
All photographs are provided for guidance only.
Rates Payable
Fermanagh and Omagh District Council, For Period April 2025 To March 2026 £1.00
Utilities
Electric: Mains Supply
Gas: None
Water: Mains Supply
Sewerage: Mains Supply
Broadband: Unknown
Telephone: Unknown
Other Items
Heating: Electric Storage Heaters
Garden/Outside Space: No
Parking: No
Garage: No
TO LET - One-Bedroom Apartment:
Well-maintained and comfortable apartment in the heart of Lisnaskea town centre, split over two levels with a private entrance on the main st.
Electric to be paid by tenant.
Contact us today to obtain an application form.
Tel: 028 6632 8282
Email: info@mcgovernestateagents.com
Notice
All photographs are provided for guidance only.
Rates Payable
Fermanagh and Omagh District Council, For Period April 2025 To March 2026 £1.00
Utilities
Electric: Mains Supply
Gas: None
Water: Mains Supply
Sewerage: Mains Supply
Broadband: Unknown
Telephone: Unknown
Other Items
Heating: Electric Storage Heaters
Garden/Outside Space: No
Parking: No
Garage: No
Broadband Speed Availability
Potential Speeds for Apartment 2 Main Street
Max Download
1000
Mbps
Max Upload
300
MbpsThe speeds indicated represent the maximum estimated fixed-line speeds as predicted by Ofcom. Please note that these are estimates, and actual service availability and speeds may differ.
Property Location
Contact Agent
Contact McGovern Estate Agents
Request More Information
Requesting Info about...
Apartment 2 Main Street, Lisnaskea, BT92 0JE
By registering your interest, you acknowledge our Privacy Policy
By registering your interest, you acknowledge our Privacy Policy