3 Bed Townhouse
54 Llewellyn Avenue
Lisburn, BT27 4AG
offers in region of
£225,000
Description
A charming two storey red brick period townhouse situated in this mature, sought-after residential cul-de-sac just off the Belfast Road and benefitting from a good size Detached Garage to the rear with a private paved garden behind enjoying a sunny aspect.
The property offers tastefully presented, deceptively spacious accommodation and enjoys a number of retained original features including cornicing, panelled doors and fireplaces.
Conveniently placed close to the town centre, many amenities including Wallace Park, the train station, bus routes, schools, the Civic Centre and Lagan towpath are within easy reach.
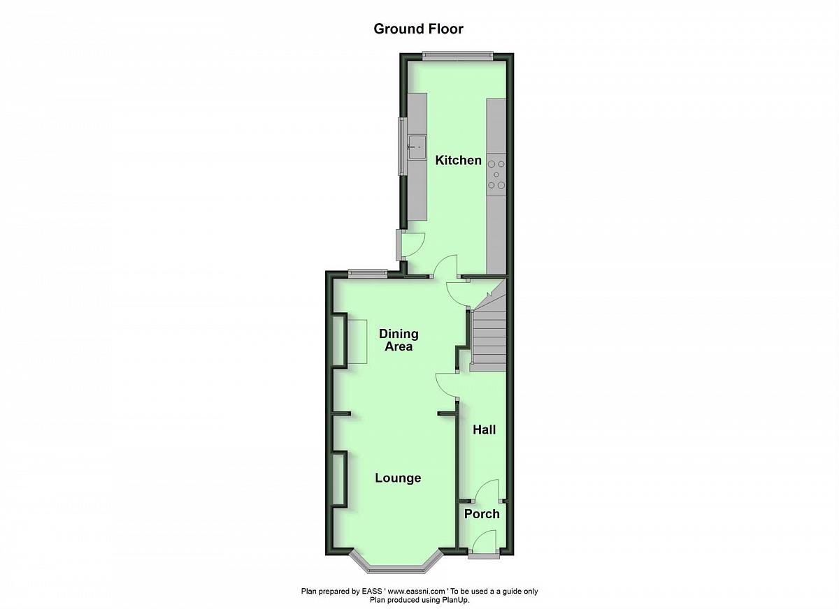
Accommodation comprises in brief:- Entrance Porch; Entrance Hall; Lounge open plan to Dining Room; Kitchen/Dining Area.
First floor: Split Landing; Bathroom; 3 Bedrooms.
Specification includes: Gas fired central heating; uPVC double glazed windows.
Outside: Enclosed rear yard. Detached Garage (7.7 x 3.49) (23'2" x 11'5") with up and over door, lighting, power and uPVC double glazed 'French' doors leading to private paved patio to rear with southerly facing aspect.
GROUND FLOOR
ENTRANCE PORCH
Entrance door with glazed top light over. Corniced ceiling. Original tiled floor.
ENTRANCE HALL
Internal entrance door with etched glass upper panel. Tiled floor. Corniced ceiling.
LOUNGE open plan to DINING ROOM - 7.55m (24'9") x 3.1m (10'2")
Corniced ceiling. Feature cast iron fireplace with tiled hearth. 'Oak' flooring. Understairs storage cupboard.
KITCHEN/DINING AREA - 5.43m (17'10") x 2.47m (8'1")
Range of high and low level 'Shaker' style cupboards. Granite worktops. 'Franke' large and small bowl stainless steel sink unit with mixer tap. Range cooker with gas hob and extractor fan over in stainless steel. Plumbed for washing machine and dishwasher. Integrated fridge/freezer. Tiled floor. Downlighters. uPVC double glazed side door.
FIRST FLOOR
SPLIT LANDING
Storage cupboard with gas boiler. Feature part exposed wall.
BEDROOM 3 - 2.49m (8'2") x 2.35m (7'9")
plus passageway.
BATHROOM
White suite comprising bath with electric shower over and shower screen; pedestal wash hand basin with mixer tap; low flush w.c. Tiled floor. Fully tiled walls. Downlighters.
BEDROOM 1 - 4.56m (15'0") x 4.12m (13'6")
Cast iron fireplace. Corniced ceiling. Bay window.
BEDROOM 2 - 3.03m (9'11") x 2.07m (6'9")
Cast iron fireplace.
Directions
LOCATION: Llewellyn Avenue is situated just off the Belfast Road, opposite Wallace Park.
what3words /// charge.fires.tamed
Notice
Please note we have not tested any apparatus, fixtures, fittings, or services. Interested parties must undertake their own investigation into the working order of these items. All measurements are approximate and photographs provided for guidance only.
Rates Payable
Lisburn And Castlereagh City Council, For Period April 2025 To March 2026 £1,137.00
Utilities
Electric: Mains Supply
Gas: None
Water: Mains Supply
Sewerage: None
Broadband: None
Telephone: None
Other Items
Heating: Gas Central Heating
Garden/Outside Space: Yes
Parking: No
Garage: Yes
The property offers tastefully presented, deceptively spacious accommodation and enjoys a number of retained original features including cornicing, panelled doors and fireplaces.
Conveniently placed close to the town centre, many amenities including Wallace Park, the train station, bus routes, schools, the Civic Centre and Lagan towpath are within easy reach.
Accommodation comprises in brief:- Entrance Porch; Entrance Hall; Lounge open plan to Dining Room; Kitchen/Dining Area.
First floor: Split Landing; Bathroom; 3 Bedrooms.
Specification includes: Gas fired central heating; uPVC double glazed windows.
Outside: Enclosed rear yard. Detached Garage (7.7 x 3.49) (23'2" x 11'5") with up and over door, lighting, power and uPVC double glazed 'French' doors leading to private paved patio to rear with southerly facing aspect.
GROUND FLOOR
ENTRANCE PORCH
Entrance door with glazed top light over. Corniced ceiling. Original tiled floor.
ENTRANCE HALL
Internal entrance door with etched glass upper panel. Tiled floor. Corniced ceiling.
LOUNGE open plan to DINING ROOM - 7.55m (24'9") x 3.1m (10'2")
Corniced ceiling. Feature cast iron fireplace with tiled hearth. 'Oak' flooring. Understairs storage cupboard.
KITCHEN/DINING AREA - 5.43m (17'10") x 2.47m (8'1")
Range of high and low level 'Shaker' style cupboards. Granite worktops. 'Franke' large and small bowl stainless steel sink unit with mixer tap. Range cooker with gas hob and extractor fan over in stainless steel. Plumbed for washing machine and dishwasher. Integrated fridge/freezer. Tiled floor. Downlighters. uPVC double glazed side door.
FIRST FLOOR
SPLIT LANDING
Storage cupboard with gas boiler. Feature part exposed wall.
BEDROOM 3 - 2.49m (8'2") x 2.35m (7'9")
plus passageway.
BATHROOM
White suite comprising bath with electric shower over and shower screen; pedestal wash hand basin with mixer tap; low flush w.c. Tiled floor. Fully tiled walls. Downlighters.
BEDROOM 1 - 4.56m (15'0") x 4.12m (13'6")
Cast iron fireplace. Corniced ceiling. Bay window.
BEDROOM 2 - 3.03m (9'11") x 2.07m (6'9")
Cast iron fireplace.
Directions
LOCATION: Llewellyn Avenue is situated just off the Belfast Road, opposite Wallace Park.
what3words /// charge.fires.tamed
Notice
Please note we have not tested any apparatus, fixtures, fittings, or services. Interested parties must undertake their own investigation into the working order of these items. All measurements are approximate and photographs provided for guidance only.
Rates Payable
Lisburn And Castlereagh City Council, For Period April 2025 To March 2026 £1,137.00
Utilities
Electric: Mains Supply
Gas: None
Water: Mains Supply
Sewerage: None
Broadband: None
Telephone: None
Other Items
Heating: Gas Central Heating
Garden/Outside Space: Yes
Parking: No
Garage: Yes
Broadband Speed Availability
Potential Speeds for 54 Llewellyn Avenue
Max Download
1800
Mbps
Max Upload
220
MbpsThe speeds indicated represent the maximum estimated fixed-line speeds as predicted by Ofcom. Please note that these are estimates, and actual service availability and speeds may differ.
Property Location
Mortgage Calculator
Contact Agent
Contact Taylor Patterson
Request More Information
Requesting Info about...
54 Llewellyn Avenue, Lisburn, BT27 4AG
By registering your interest, you acknowledge our Privacy Policy
By registering your interest, you acknowledge our Privacy Policy