4 Bed Townhouse
12 Park Parade
Lisburn, BT27 4AJ
offers in region of
£255,000
Description
A delightful extended Victorian townhouse situated close to the town centre and affording views over to Wallace Park.
The tasteful and sympathetic presentation throughout perfectly compliments the abundance of original period features, creating a truly charming home boasting spacious accommodation over its three floors and simply brimming with character.
An added bonus is the enclosed, cobble paved rear with timber double gates, providing private, secure parking if desired.
Conveniently placed, all amenities are on your doorstep including bus routes, the train station, Wallace Park, Castle Gardens, a number of schools and the town centre itself.
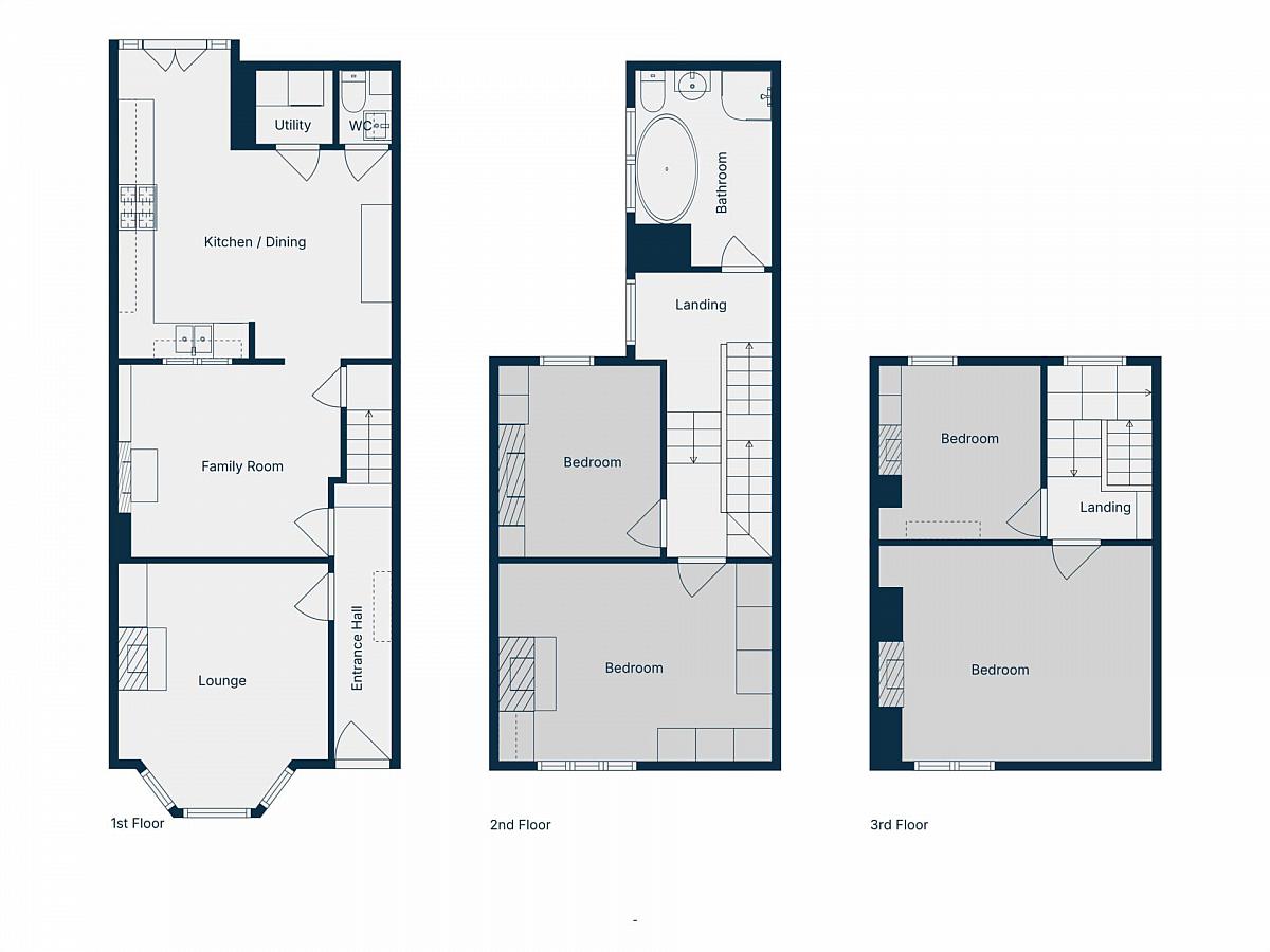
Accommodation comprises in brief:- Reception Hall; Lounge; Living Room; Kitchen/Dining Area; Utility; W.C.
First floor: 2 Bedrooms; spacious Bathroom with bath and shower.
Second floor: Bedrooms 3 & 4.
Specification includes: Gas fired central heating; uPVC double glazed windows; extended Kitchen; period features including fireplaces, cornicing and staircase with newel posts and balustrades; enclosed parking to rear.
Outside: Front garden in pebbles with hedge surround, pedestrian wrought iron gate and tiled path.
Enclosed cobble paved rear with timber fencing to sides and timber double gates to back boundary.
GROUND FLOOR
RECEPTION HALL
Part glazed entrance door with glazed top light over. Corniced ceiling and centre rose. Tiled floor.
LOUNGE - 4.69m (15'5") x 3.77m (12'4")
Cast iron fireplace with slate hearth. Corniced ceiling and centre rose. Laminate wooden floor.
LIVING ROOM - 3.54m (11'7") x 3.16m (10'4")
Fireplace of wooden surround with tiled inset and slate hearth. Fitted shelving. Understairs storage cupboard.
KITCHEN/DINING AREA - 4.85m (15'11") Max x 5.42m (17'9")
Range of high and low level cupboards with underlighting. Belfast sink with mixer tap. Integrated dishwasher and fridge. Range style cooker with extractor unit over. Downlighters. Feature radiator. uPVC double glazed 'French' doors.
UTILITY ROOM
Fitted cupboards. Plumbed for washing machine. Downlighters.
SEPARATE W.C.
Wash hand basin. Downlighters.
FIRST FLOOR
SPLIT LANDING
BATHROOM - 3.7m (12'2") x 2.48m (8'2")
Roll top claw foot bath with mixer tap and telephone shower attachment; pedestal wash hand basin; low flush w.c. and corner shower cubicle with drench head shower and hose attachment. Part tiled walls. Downlighters.
BEDROOM 1 - 5.06m (16'7") x 3.57m (11'9")
Cast iron fireplace. Corniced ceiling and centre rose.
BEDROOM 2 - 3.17m (10'5") x 3.14m (10'4")
Cast iron fireplace.
SECOND FLOOR
BEDROOM 3 - 5.09m (16'8") x 3.6m (11'10")
Cast iron fireplace.
BEDROOM 4 - 3.18m (10'5") x 3.16m (10'4")
Cast iron fireplace.
Directions
LOCATION: Park Parade is located where Seymour Street meets the Belfast Road, opposite Wallace Park.
what3words /// tame.tigers.factories
Notice
Please note we have not tested any apparatus, fixtures, fittings, or services. Interested parties must undertake their own investigation into the working order of these items. All measurements are approximate and photographs provided for guidance only.
Rates Payable
Lisburn And Castlereagh City Council, For Period April 2025 To March 2026 £682.35
Utilities
Electric: Unknown
Gas: Unknown
Water: Unknown
Sewerage: Unknown
Broadband: Unknown
Telephone: Unknown
Other Items
Heating: Gas Central Heating
Garden/Outside Space: Yes
Parking: Yes
Garage: No
The tasteful and sympathetic presentation throughout perfectly compliments the abundance of original period features, creating a truly charming home boasting spacious accommodation over its three floors and simply brimming with character.
An added bonus is the enclosed, cobble paved rear with timber double gates, providing private, secure parking if desired.
Conveniently placed, all amenities are on your doorstep including bus routes, the train station, Wallace Park, Castle Gardens, a number of schools and the town centre itself.
Accommodation comprises in brief:- Reception Hall; Lounge; Living Room; Kitchen/Dining Area; Utility; W.C.
First floor: 2 Bedrooms; spacious Bathroom with bath and shower.
Second floor: Bedrooms 3 & 4.
Specification includes: Gas fired central heating; uPVC double glazed windows; extended Kitchen; period features including fireplaces, cornicing and staircase with newel posts and balustrades; enclosed parking to rear.
Outside: Front garden in pebbles with hedge surround, pedestrian wrought iron gate and tiled path.
Enclosed cobble paved rear with timber fencing to sides and timber double gates to back boundary.
GROUND FLOOR
RECEPTION HALL
Part glazed entrance door with glazed top light over. Corniced ceiling and centre rose. Tiled floor.
LOUNGE - 4.69m (15'5") x 3.77m (12'4")
Cast iron fireplace with slate hearth. Corniced ceiling and centre rose. Laminate wooden floor.
LIVING ROOM - 3.54m (11'7") x 3.16m (10'4")
Fireplace of wooden surround with tiled inset and slate hearth. Fitted shelving. Understairs storage cupboard.
KITCHEN/DINING AREA - 4.85m (15'11") Max x 5.42m (17'9")
Range of high and low level cupboards with underlighting. Belfast sink with mixer tap. Integrated dishwasher and fridge. Range style cooker with extractor unit over. Downlighters. Feature radiator. uPVC double glazed 'French' doors.
UTILITY ROOM
Fitted cupboards. Plumbed for washing machine. Downlighters.
SEPARATE W.C.
Wash hand basin. Downlighters.
FIRST FLOOR
SPLIT LANDING
BATHROOM - 3.7m (12'2") x 2.48m (8'2")
Roll top claw foot bath with mixer tap and telephone shower attachment; pedestal wash hand basin; low flush w.c. and corner shower cubicle with drench head shower and hose attachment. Part tiled walls. Downlighters.
BEDROOM 1 - 5.06m (16'7") x 3.57m (11'9")
Cast iron fireplace. Corniced ceiling and centre rose.
BEDROOM 2 - 3.17m (10'5") x 3.14m (10'4")
Cast iron fireplace.
SECOND FLOOR
BEDROOM 3 - 5.09m (16'8") x 3.6m (11'10")
Cast iron fireplace.
BEDROOM 4 - 3.18m (10'5") x 3.16m (10'4")
Cast iron fireplace.
Directions
LOCATION: Park Parade is located where Seymour Street meets the Belfast Road, opposite Wallace Park.
what3words /// tame.tigers.factories
Notice
Please note we have not tested any apparatus, fixtures, fittings, or services. Interested parties must undertake their own investigation into the working order of these items. All measurements are approximate and photographs provided for guidance only.
Rates Payable
Lisburn And Castlereagh City Council, For Period April 2025 To March 2026 £682.35
Utilities
Electric: Unknown
Gas: Unknown
Water: Unknown
Sewerage: Unknown
Broadband: Unknown
Telephone: Unknown
Other Items
Heating: Gas Central Heating
Garden/Outside Space: Yes
Parking: Yes
Garage: No
Broadband Speed Availability
Potential Speeds for 12 Park Parade
Max Download
1800
Mbps
Max Upload
220
MbpsThe speeds indicated represent the maximum estimated fixed-line speeds as predicted by Ofcom. Please note that these are estimates, and actual service availability and speeds may differ.
Property Location
Mortgage Calculator
Contact Agent
Contact Taylor Patterson
Request More Information
Requesting Info about...