Contact Agent

Contact Simon Brien (South Belfast)

Contact Simon Brien (South Belfast)

3 Bed House

7 Larch Lane

Lisburn, County Down, BT28 2ZX

price £210,000
  • Status Sale Agreed
  • Property Type House
  • Bedrooms 3
  • EPC Rating B84 / B84
  • Stamp Duty
    Higher amount applies when purchasing as buy to let or as an additional property
    £1,700 / £12,200*
  • Typical Mortgage
    Click price to use our mortgage calculator
EPC Rating

Key Features & Description

  • Bright and deceptively spacious modern family home
  • Generous living room
  • Contemporary kitchen with a range of integrated appliances
  • Open plan dining/family room with access to the rear garden
  • Ground floor WC, first floor family bathroom
  • Three excellent bedrooms, principal with en suite shower room
  • Partially floored roofspace affording excellent storage
  • Mains gas central heating, uPVC double glazing
  • Delightful garden with a South-Westerly aspect
  • Description
    Conveniently located in the ever-popular Woodbrook development this fabulous home is therefore in close proximity to many amenities, nearby schools and offers ease of access to road networks throughout the country.

    The accommodation offers a generous living room, modern kitchen with a full range of integrated appliances, open plan dining area with double doors to the South-facing rear garden, ground floor WC, first floor family bathroom and three great bedrooms - principal with an en suite shower room. Of further note is the partially floored roofspace, mains gas heating, high level of insulation throughout and fabulous rear garden with a sunny outlook.

    With nothing to do but move in and enjoy we recommend an internal viewing at your convenience

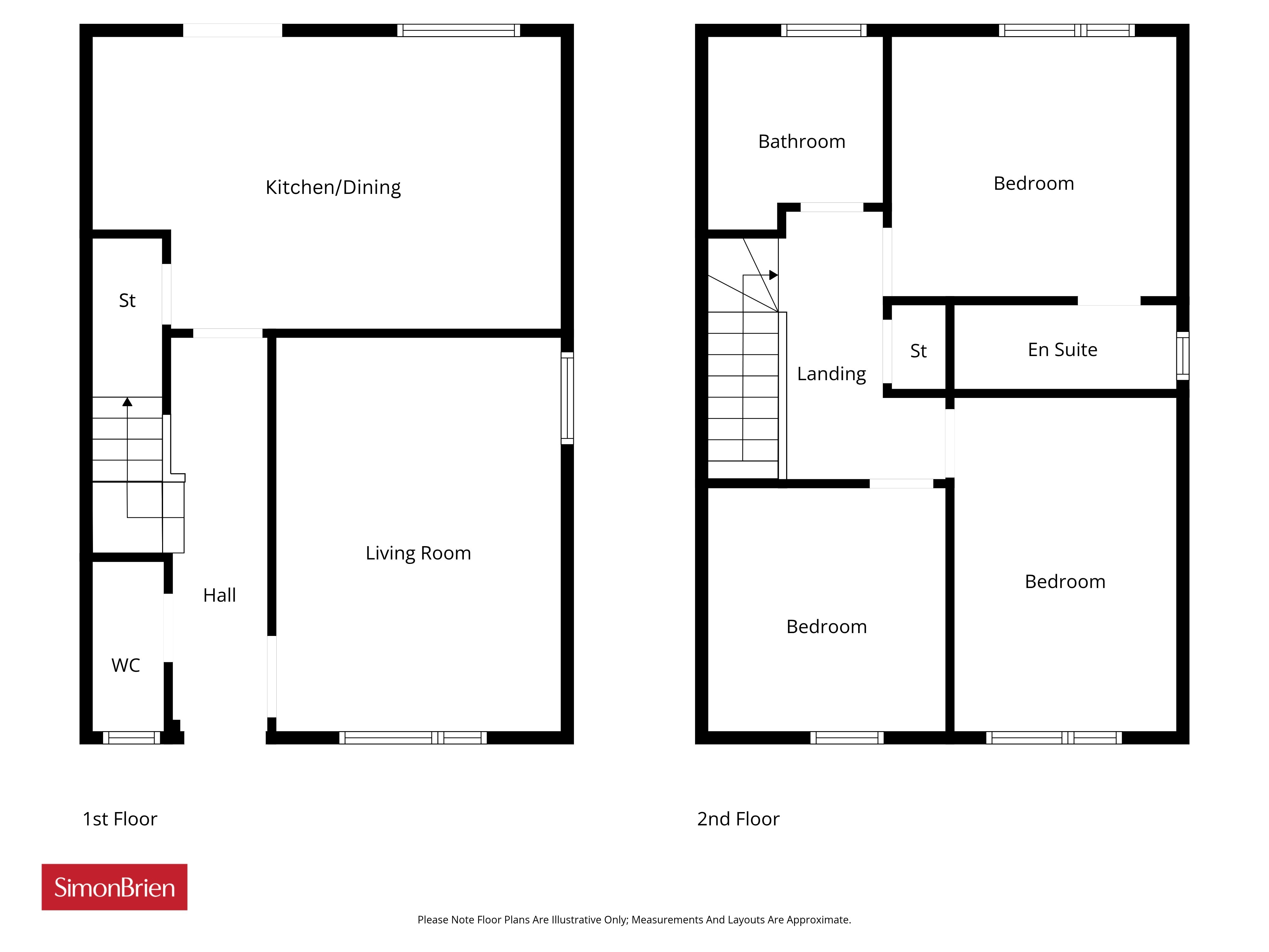
    Rooms

    Reception Hall Porcelain tiled floor
    Cloakroom Matching tiling, low flush suite
    Living Room 15'9" X 11'7" (4.80m X 3.53m)
    Kitchen / Dining 19'2" X 11'8" (5.84m X 3.56m) Contemporary fitted kitchen with excellent range of units, work surfaces, single drainer sink unit, integrated dishwasher, washing machine, fridge freezer, oven and hob.  Matching tiling, double doors to rear patio and garden.
    First Floor Landing Shelved airing cupboard.  Ladder to partially floored roofspace
    Bedroom One 11'9" X 10'8" (3.58m X 3.25m)
    En Suite 9'1" X 3'3" (2.77m X 1.00m) WC, wash hand basin with tiled splashback, corner shower cubicle, extractor fan and heated towel rail
    Bedroom Two 13'3" X 9'3" (4.04m X 2.82m)
    Bedroom Three 9'7" X 9'4" (2.92m X 2.84m)
    Bathroom 7'0" X 7'0" (2.13m X 2.13m) White suite comprising WC, wash hand basin, panelled bath with mixer tap and telephone hand shower.
    Outside Delightful, low-maintenance rear garden with an open aspect and a fabulous South-Westerly aspect.

    Broadband Speed Availability

    Superfast

    Potential Speeds for 7 Larch Lane

    Max Download
    71
    Mbps
    Max Upload
    18
    Mbps
    The speeds indicated represent the maximum estimated fixed-line speeds as predicted by Ofcom. Please note that these are estimates, and actual service availability and speeds may differ.

    Property Location

    Show Map

    Mortgage Calculator

    Disclaimer: The following calculations act as a guide only, and are based on a typical repayment mortgage model. Financial decisions should not be made based on these calculations and accuracy is not guaranteed. Always seek professional advice before making any financial decisions.

    Contact Agent

    Contact Simon Brien (South Belfast)

    Contact Simon Brien (South Belfast)

    Request More Information
    Requesting Info about...
    7 Larch Lane, Lisburn, County Down, BT28 2ZX 7 Larch Lane, Lisburn, County Down, BT28 2ZX

    By registering your interest, you acknowledge our Privacy Policy
    Ask Holmes
    Ask Holmes
    Let's find your next home

    Are you sure you want to reset the chat?

    Checking API...