3 Bed Terrace House
13 Limehurst Way
Lisburn, BT27 4YF
offers over
£125,000

Description
A most attractive 3 bedroom brick mid terrace home located in a most popular mature residential area close to local shops, schools and public transport. Having undergone improvements over the past number of years to include new kitchen and bathroom, this wonderful home is sure to appeal to a wide range of potential purchasers.
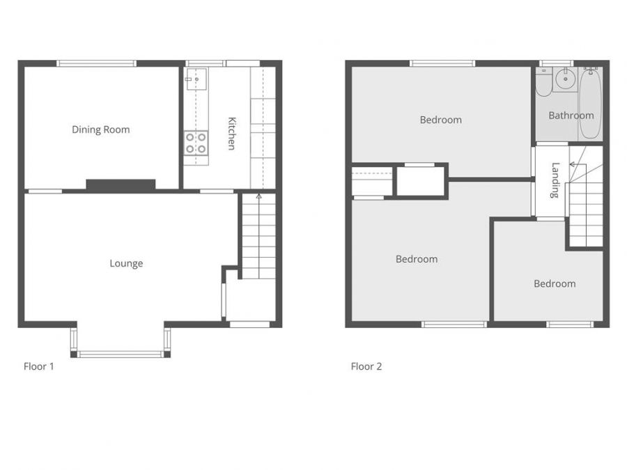
The accommodation comprises as follows:-
Ground floor - Hall, lounge with bay window, dining room, refitted kitchen.
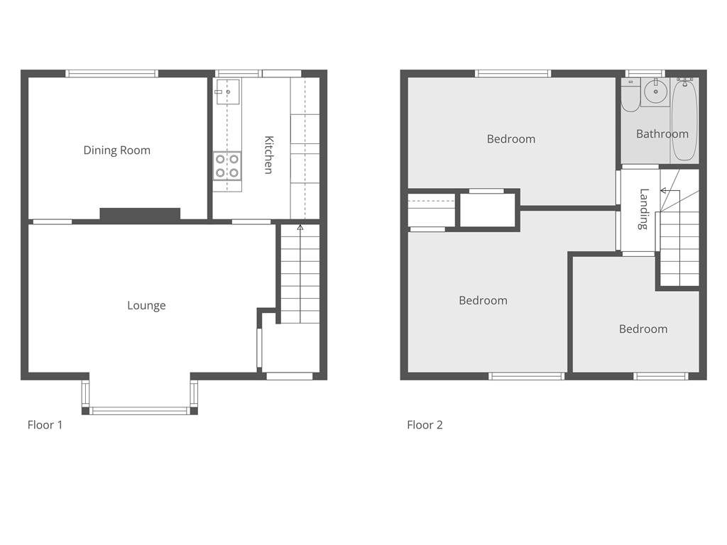
First floor- Landing, 3 bedrooms and refitted bathroom.
The property enjoys the benefit of oil-fired central heating and PVC double glazed windows.
Outside:
Front garden in lawn. Fully enclosed to rear with concrete and paved patio area. Astroturf. Brick built store with electric and plumbed for washing machine.
Outside light and tap.
The accommodation comprises as follows:-
Ground floor - Hall, lounge with bay window, dining room, refitted kitchen.
First floor- Landing, 3 bedrooms and refitted bathroom.
The property enjoys the benefit of oil-fired central heating and PVC double glazed windows.
Outside:
Front garden in lawn. Fully enclosed to rear with concrete and paved patio area. Astroturf. Brick built store with electric and plumbed for washing machine.
Outside light and tap.
Rooms
HALL:
Part glazed composite front door. Laminate floor.
LOUNGE: 15' 12" X 10' 3" (4.87m X 3.14m)
Laminate floor.
DINING ROOM: 9' 11" X 11' 0" (3.04m X 3.36m)
Laminate floor.
KITCHEN: 8' 4" X 7' 10" (2.54m X 2.39m)
Refitted kitchen with high gloss doors and contrasting granite effect worktop. Stainless steel sink unit with mixer tap and drainer. Space for cooker with stainless steel splashback and stainless steel extractor fan. Space for under counter freezer. Tiled between units. Laminate floor. PVC double glazed rear door.
LANDING:
Access to roofspace with Slingsby style ladder.
BEDROOM 1: 15' 4" X 8' 7" (4.68m X 2.62m)
Built-in wardrobe.
BEDROOM 2: 11' 8" X 10' 3" (3.56m X 3.13m)
Built-in wardrobe.
BEDROOM 3: 9' 8" X 7' 4" (2.94m X 2.22m)
REFITTED BATHROOM:
White suite comprising of panelled bath with mixer taps. 'Triton' electric shower unit over bath. Shower screen. Vanity wash hand basin with mixer tap. Low flush WC. PVC panelled walls and ceiling. Recessed spotlights.
Broadband Speed Availability
Potential Speeds for 13 Limehurst Way
Max Download
1800
Mbps
Max Upload
220
MbpsThe speeds indicated represent the maximum estimated fixed-line speeds as predicted by Ofcom. Please note that these are estimates, and actual service availability and speeds may differ.
Property Location

Mortgage Calculator
Directions
Off Low Road
.
.
Contact Agent

Contact Dalzell Property (Lisburn)
Request More Information
Requesting Info about...
13 Limehurst Way, Lisburn, BT27 4YF
By registering your interest, you acknowledge our Privacy Policy

By registering your interest, you acknowledge our Privacy Policy