5 Bed Detached Bungalow
41 Sheepwalk Road
Lisburn, BT28 3XQ
offers around
£425,000
Description
A well located detached rural property situated just off the main Lisburn to Glenavy Road in a pleasant countryside environment.
For those commuting Lisburn is about four miles, Belfast ten miles and the A26 five miles which provides quick access to the west and north of the province.
Situated on a most spacious mature level site and with the benefit of a small field to the side of the home with frontage onto the road.
The house provides most spacious flexible accommodation ideal to meet family needs.
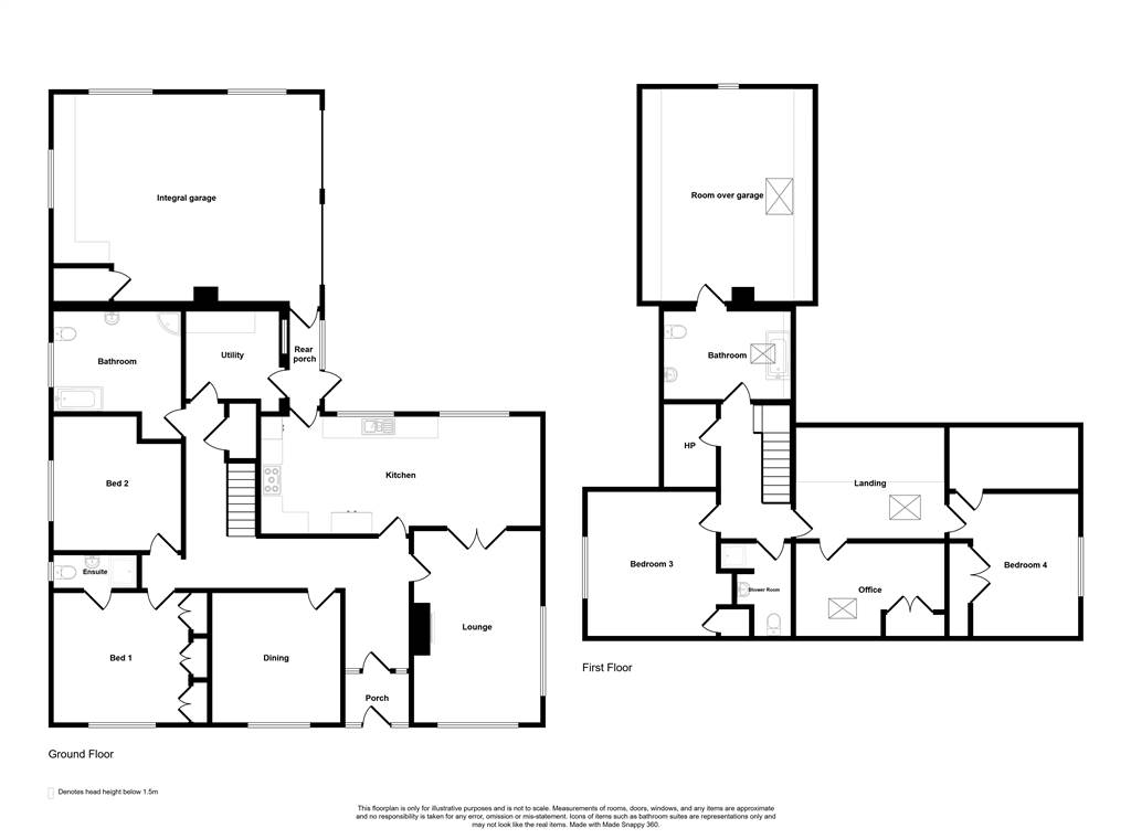
The accommodation comprises:
Ground Floor - Porch, reception hall, lounge with fireplace, dining room, open plan kitchen/family/dining area, utility room, 2 downstairs bedrooms - one with ensuite shower room and spacious deluxe bathroom with separate shower and bath. Access to double garage from rear porch.
First Floor - Landing, 3 further bedrooms - one with enclosed study/office/off, and bathroom leading to attic room which could be a further bedroom or play/games room.
The property enjoys the benefit of PVC double glazing, oil-fired central heating and PVC fascia and soffits.
Outside
Stoned driveway with brick pillars and remote control gates leading to stoned parking area to front and side and tarmac area to rear.
Integral double garage 25' 0" x 19' 7" (7.631m x 5.98m) with motorised roller doors, lights, power, and range of cupboards and drawers with one and a half stainless steel sink unit with mixer tap and drainer and WC. Front garden in lawn with variety of shrubs. Rear garden in lawn with laurel hedge surround.
For those commuting Lisburn is about four miles, Belfast ten miles and the A26 five miles which provides quick access to the west and north of the province.
Situated on a most spacious mature level site and with the benefit of a small field to the side of the home with frontage onto the road.
The house provides most spacious flexible accommodation ideal to meet family needs.
The accommodation comprises:
Ground Floor - Porch, reception hall, lounge with fireplace, dining room, open plan kitchen/family/dining area, utility room, 2 downstairs bedrooms - one with ensuite shower room and spacious deluxe bathroom with separate shower and bath. Access to double garage from rear porch.
First Floor - Landing, 3 further bedrooms - one with enclosed study/office/off, and bathroom leading to attic room which could be a further bedroom or play/games room.
The property enjoys the benefit of PVC double glazing, oil-fired central heating and PVC fascia and soffits.
Outside
Stoned driveway with brick pillars and remote control gates leading to stoned parking area to front and side and tarmac area to rear.
Integral double garage 25' 0" x 19' 7" (7.631m x 5.98m) with motorised roller doors, lights, power, and range of cupboards and drawers with one and a half stainless steel sink unit with mixer tap and drainer and WC. Front garden in lawn with variety of shrubs. Rear garden in lawn with laurel hedge surround.
Rooms
ENTRANCE PORCH:
Hardwood front door and matching glazed side panels. Tiled floor. Stained tongue and groove ceiling and recessed spotlight. Glazed inner door and matching side panels leading to hall.
HALL:
Solid wood floor with mat well. Telephone point. Built-in understairs storage.
LOUNGE: 17' 11" X 11' 11" (5.46m X 3.63m)
Twin feature bow windows. Fireplace with marble hearth surround and wooden mantle. TV point. Dimmer switch. French doors to kicthen/dining/living area.
OPEN PLAN KITCHEN/DINING/LIVING AREA: 26' 2" X 10' 11" (7.98m X 3.34m)
Range of high and low level golden oak units with contrasting granite worktops. Inset one and a half bow sink unit with mixer tap and granite drainer. Space for range style cooker with bottle gas connection and concealed extractor over. Space for fridge freezer. Plumbed for dishwasher. Electric kickboard heater. Tiled between units. Tiled floor. Recessed spotlights. Half glazed door to rear porch. Pull out twin baskets.
REAR PORCH:
Partly double glazed PVC door and matching side panels. Tiled floor. Door to double integral garage. Door to utility room.
UTILITY ROOM: 8' 11" X 8' 2" (2.71m X 2.50m)
Marble effect counter top. Plumbed for washing machine. Space for tumble dryer. Door to hallway.
DINING ROOM: 11' 10" X 11' 11" (3.61m X 3.63m)
BEDROOM 1: 12' 7" X 11' 10" (3.82m X 3.62m)
Range of built-in wall to wall wardrobes.
ENSUITE SHOWER ROOM:
PVC panelled shower cubicle with 'Aqualisa' Aquastream shower. Pedestal wash hand basin with mixer tap. Low flush WC. Half tiled walls.
BEDROOM 2: 11' 11" X 12' 5" (3.64m X 3.77m)
LARGE FAMILY BATHROOM: 11' 11" X 11' 10" (3.62m X 3.59m)
White suite comprising of panelled bath with mixer tap and telephone shower attachment. Pedestal wash hand basin with mixer tap. Low flush WC. Fully tiled corner shower with 'Mira Event' electric shower unit. Half tiled walls. Tiled floor. Spotlights.
LANDING:
Walk-in hotpress and walkway to Bedroom 3.
BEDROOM 3: 13' 3" X 11' 11" (4.03m X 3.64m)
Built-in wardrobes. Access to eaves storage.
OFFICE: 14' 3" X 8' 10" (4.33m X 2.69m)
Built-in storage.
BEDROOM 4: 11' 12" X 13' 6" (3.65m X 4.12m)
Built-in wardrobe.
SHOWER ROOM:
PVC shower cubcile with Mira Sport shower system, vanity wash hand basin with mixer tap and cupboard under. WC.
BATHROOM:
White suite comprising of panelled bath with chrome mixer tap and telephone shower attachment. Pedestal wash hand basin with tiled splashback. Low flush WC. Door to room over garage.
ROOM OVER GARAGE:: 19' 7" X 15' 11" (5.98m X 4.84m)
Built-in storage into the eaves.
Broadband Speed Availability
Potential Speeds for 41 Sheepwalk Road
Max Download
1800
Mbps
Max Upload
220
MbpsThe speeds indicated represent the maximum estimated fixed-line speeds as predicted by Ofcom. Please note that these are estimates, and actual service availability and speeds may differ.
Property Location
Mortgage Calculator
Directions
From Lisburn take the Glenavy Road for about 4 miles and Sheepwalk Road is off to the right-hand side. Proceed for 0.3 miles and the property is on the right-hand side.
Contact Agent
Contact Dalzell Property (Lisburn)
Request More Information
Requesting Info about...
41 Sheepwalk Road, Lisburn, BT28 3XQ
By registering your interest, you acknowledge our Privacy Policy
By registering your interest, you acknowledge our Privacy Policy