Apt 1, 13 Malone Avenue
Lisburn Road, Belfast, BT9 6EN

Key Features & Description
A spacious four bedroom apartment located on Malone Avenue just off the Malone and Lisburn Roads in South Belfast. The location is within walking distance to Queens University, Belfast City Hospital and the many amenities offered on the Lisburn and Malone Roads including shops, restaurants, bars and coffee shops. The motorway is easily accessible and the city centre five minutes drive away, alternatively there are frequent bus services less than a minutes walk away.
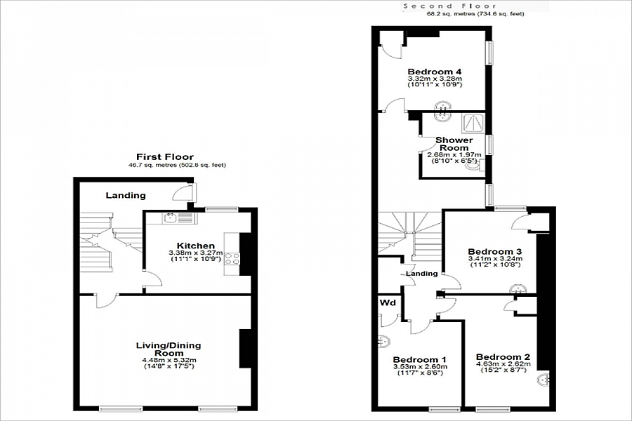
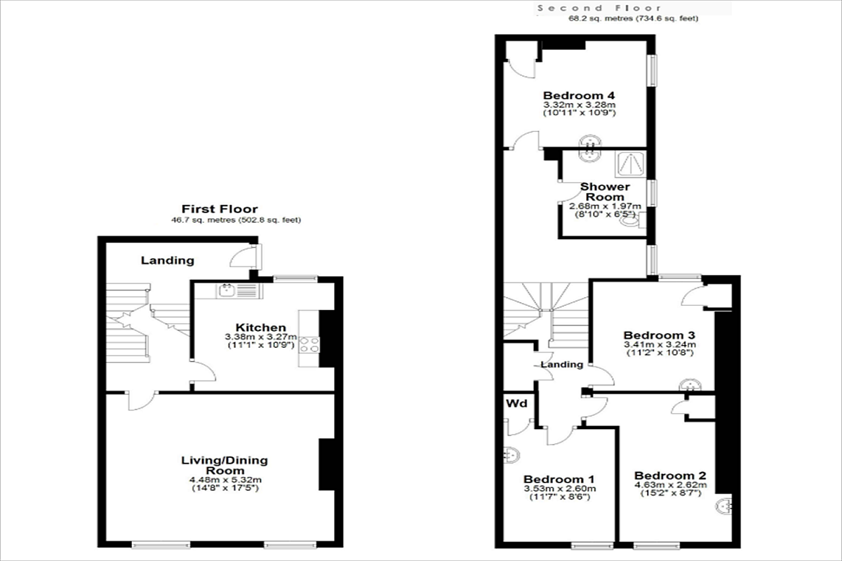
The property which is HMO registered breifly comprises; One large reception room, fitted kitchen with range of electrical appliances, four double bedrooms and a shower room with electric shower. The property also benefits from phoenix gas central heating and Upvc double glazing.
Rooms
Property Location

Contact Agent

Contact McGeowns

By registering your interest, you acknowledge our Privacy Policy