Contact Agent

Contact McGeowns

Contact McGeowns

4 Bed Apartment

Apt 1, 13 Malone Avenue

Lisburn Road, Belfast, BT9 6EN

asking price £345,000
  • Status Sale Agreed
  • Property Type Apartment
  • Bedrooms 4
  • Receptions 1
  • Stamp Duty
    Higher amount applies when purchasing as buy to let or as an additional property
    £7,250 / £24,500*
  • Typical Mortgage
    Click price to use our mortgage calculator

Key Features & Description

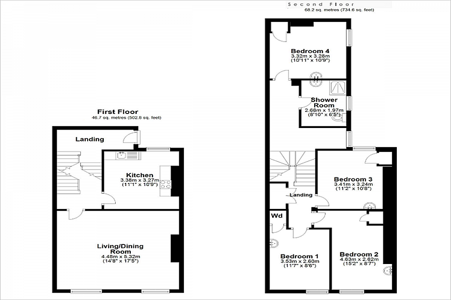
4 Bedroom HMO Apartment
4 Double Bedrooms, Living Room, Kitchen, Shower Room, Additional Separate W.C and Wash Hand Basin
All Complimented By Gas Fired Central Heating and Double Glazing
Floorplans - Please note separate W.C and wash hand basin have been added March 2025 to comply with HMO licence for 4 bedrooms.
Description

A spacious four bedroom apartment located on Malone Avenue just off the Malone and Lisburn Roads in South Belfast. The location is within walking distance to Queens University, Belfast City Hospital and the many amenities offered on the Lisburn and Malone Roads including shops, restaurants, bars and coffee shops. The motorway is easily accessible and the city centre five minutes drive away, alternatively there are frequent bus services less than a minutes walk away.

The property which is HMO registered breifly comprises; One large reception room, fitted kitchen with range of electrical appliances, four double bedrooms and a shower room with electric shower. The property also benefits from phoenix gas central heating and Upvc double glazing.

Rooms

Property Location

Show Map

Mortgage Calculator

Disclaimer: The following calculations act as a guide only, and are based on a typical repayment mortgage model. Financial decisions should not be made based on these calculations and accuracy is not guaranteed. Always seek professional advice before making any financial decisions.

Contact Agent

Contact McGeowns

Contact McGeowns

Request More Information
Requesting Info about...
Apt 1, 13 Malone Avenue, Lisburn Road, Belfast, BT9 6EN Apt 1, 13 Malone Avenue, Lisburn Road, Belfast, BT9 6EN

By registering your interest, you acknowledge our Privacy Policy
Ask Holmes
Ask Holmes
Let's find your next home

Are you sure you want to reset the chat?

Checking API...