Contact Agent

Contact Templeton Robinson (Lisburn)
3 Bed Semi-Detached House
11 Linen Mews
Lisburn City, Lisburn, BT28 3WU
offers around
£259,950

Key Features & Description
Beautifully Presented 3-Bedroom Semi-Detached Home in a Sought-After Location Near Lisburn City Centre
Close to Highly Regarded Local Schools and Convenient for Belfast International Airport
Excellent Transport Links to Both Belfast and Lisburn City Centres
Short Drive to Lisburn Golf Club, Sprucefield Shopping Centre, and the Historic Hillsborough Village
Three Well-Proportioned Bedrooms, Including a Principal Bedroom with En-Suite Shower Room
Bright and Spacious Living Room with Open-Plan Kitchen and Dining Area
Modern Ground Floor WC for Added Convenience
Contemporary Family Bathroom with Stylish White Suite
Gas-Fired Central Heating and uPVC Double Glazing Throughout
Ample Storage Solutions Including Under-Stair and Landing Cupboards
Fully Enclosed and Private Rear Garden - Ideal for Entertaining or Family Life
Driveway Parking with Potential for Multiple Vehicles
Perfect for First-Time Buyers, Young Families, or Those Looking to Downsize
Early Viewing is Strongly Recommended to Avoid Disappointment
Description
We are delighted to present to the market this beautifully maintained 3-bedroom semi-detached home, ideally situated in a highly convenient location just minutes from Lisburn City Centre. This attractive property offers comfortable, modern living with easy access to local shops, schools, eateries, and excellent transport links to both Lisburn and Belfast - making it perfect for families, professionals, and commuters alike.
Internally, the accommodation is both spacious and practical. The ground floor comprises a welcoming entrance hall, a bright and airy living room, a modern kitchen with open-plan dining space, and a convenient downstairs WC. Upstairs, you"ll find three well-proportioned bedrooms, including a principal bedroom with an en-suite shower room, as well as a contemporary family bathroom with modern white suite.
The home further benefits from gas-fired central heating, uPVC double glazing, and ample storage throughout. Externally, the property boasts a roomy tarmac driveway and a superb enclosed rear garden offering excellent privacy - perfect for children at play, outdoor entertaining, or simply relaxing in a peaceful setting.
With its sought-after location, generous layout, and move-in-ready condition, this home is sure to appeal to a wide range of buyers. Early viewing is highly recommended to avoid disappointment.
We are delighted to present to the market this beautifully maintained 3-bedroom semi-detached home, ideally situated in a highly convenient location just minutes from Lisburn City Centre. This attractive property offers comfortable, modern living with easy access to local shops, schools, eateries, and excellent transport links to both Lisburn and Belfast - making it perfect for families, professionals, and commuters alike.
Internally, the accommodation is both spacious and practical. The ground floor comprises a welcoming entrance hall, a bright and airy living room, a modern kitchen with open-plan dining space, and a convenient downstairs WC. Upstairs, you"ll find three well-proportioned bedrooms, including a principal bedroom with an en-suite shower room, as well as a contemporary family bathroom with modern white suite.
The home further benefits from gas-fired central heating, uPVC double glazing, and ample storage throughout. Externally, the property boasts a roomy tarmac driveway and a superb enclosed rear garden offering excellent privacy - perfect for children at play, outdoor entertaining, or simply relaxing in a peaceful setting.
With its sought-after location, generous layout, and move-in-ready condition, this home is sure to appeal to a wide range of buyers. Early viewing is highly recommended to avoid disappointment.
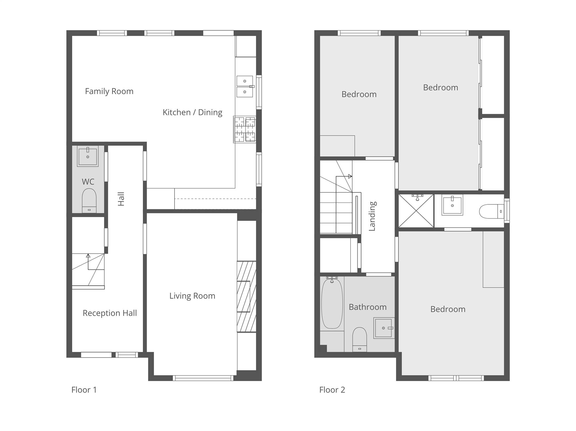
Rooms
Small front garden laid in lawns, patio walkway to front door.
Composite front door with glass toplight and side light to . . .
RECEPTION HALL:
Tiled floor.
DOWNSTAIRS W.C.:
White suite comprising low flush wc, matt grey radiator, built-in vanity unit with chrome mixer tap, fully tiled walls, tiled floor, extractor fan and light.
LIVING ROOM: 15' 2" X 10' 2" (4.62m X 3.10m)
Outlook to front, Chevron style laminate wood effect flooring, media unit and built-in shelving with wooden panelled wall, low voltage recessed spotlights.
KITCHEN: 16' 2" X 10' 2" (4.93m X 3.10m)
Range of high and low level units, laminate worktops, inset sink unit with side drainer and mixer tap, four ring stainless steel gas hob with built-in stainless steel extractor fan above, built-in oven and grill below, glass splashback, worktops with upstands, built-in dishwasher, built-in fridge freezer, built-in washing machine, access to gas boiler. Open to . . .
LIVING/DINING AREA: 9' 10" X 6' 11" (3.00m X 2.11m)
Outlook to rear, tiled floor, uPVC double glazed door to rear garden, low voltage spotlights.
LANDING:
Access hatch to roofspace via Slingsby ladder, built-in hotpress with additional built-in storage and shelving.
BATHROOM:
White suite comprising low flush wc with push button, floating wash hand basin with chrome mixer tap and built-in vanity unit below, chrome heated towel rail, panelled bath with chrome mixer tap, electric shower with telephone attachment, part tiled walls, tiled floor, frosted glass window, extractor fan.
BEDROOM (1): 14' 5" X 7' 5" (4.39m X 2.26m)
Laminate wood effect flooring, outlook to front.
ENSUITE SHOWER ROOM:
White suite comprising low flush wc, floating wash hand basin with chrome mixer tap and built-in vanity unit below, corner shower unit with glass sliding door, shower with chrome thermostatic control valve, telephone attachment and rainfall shower head, part tiled walls, tiled floor, extractor fan, frosted glass window.
BEDROOM (2): 13' 6" X 9' 10" (4.11m X 3.00m)
Laminate wood effect flooring, outlook to rear, range of built-in fitted Silderobes with mirrored doors and additional built-in storage.
BEDROOM (3): 11' 3" X 6' 11" (3.43m X 2.11m)
Laminate wood effect flooring, outlook to rear.
Tarmac driveway with off street parking for 2-3 cars, bin storage, access gate to side. Extensive enclosed private rear garden with excellent degree of privacy, part patio, part laid in lawn with raised decking area, surrounding wooden fencing and lighting, outside tap, power supply and light.
Broadband Speed Availability
Potential Speeds for 11 Linen Mews
Max Download
1800
Mbps
Max Upload
220
MbpsThe speeds indicated represent the maximum estimated fixed-line speeds as predicted by Ofcom. Please note that these are estimates, and actual service availability and speeds may differ.
Property Location

Mortgage Calculator
Directions
Linen Mews is located off Pond Park Road, number 11 is located at the bottom of the cul-de-sac on the right hand side.
Contact Agent

Contact Templeton Robinson (Lisburn)
Request More Information
Requesting Info about...
11 Linen Mews, Lisburn City, Lisburn, BT28 3WU
By registering your interest, you acknowledge our Privacy Policy

By registering your interest, you acknowledge our Privacy Policy