Contact Agent

Contact Stewart Estate Agents

Contact Stewart Estate Agents

3 Bed Semi-Detached House

8 Millvale

Lisburn Area, Ballinderry Lower, BT28 2FA

offers over £179,950
  • Status Sale Agreed
  • Property Type Semi-Detached
  • Bedrooms 3
  • Receptions 2
  • Heating OFCH
  • EPC Rating D66 / C69
  • Stamp Duty
    Higher amount applies when purchasing as buy to let or as an additional property
    £1,099 / £10,097*
  • Typical Mortgage
    Click price to use our mortgage calculator
EPC Rating

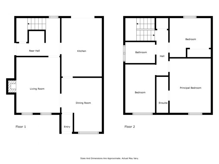
Key Features & Description

Stunning semi detached home at the end of a quiet cul-de-sac
Three spacious bedrooms all with fitted wardrobes, master with refitted en suite shower room
Entrance porch leading to the Dining Room
Spacious Drawing room with feature wood burning stove
Beautiful kitchen with high and low level storage, built in appliances, feature lighting and patio doors to the rear garden
Rear hall with a door to the driveway, fitted utility area, storage and stairs to the first floor
Bright bathroom on the first floor
Feature Oak internal doors throughout
Enclosed, courtyard style rear garden with brick paving and grass
Front garden in lawn with brick paved path to the front door
Extensive use of exterior lighting
Gravel driveway to the front and site leading to the garage
Oil fired central heating
PVC double glazed windows & external doors
Immaculate presentation throughout
Description

A beautiful addition to the current market, this semi detached home has been meticulously maintained and upgraded by the current vendors. Close to neighbouring towns and villages for all amenities and within walking distance of Ballinderry Primary School, Ballinderry Lower is popular with families and commuters alike.

Positioned at the end of a quiet cul-de-sac this house offers three good bedrooms, all with fitted furniture newly upgraded en suite shower room and stunning refitted kitchen from the renowned Classic Kitchens. The lucky new owners will have little to do other than enjoy their new home. Viewing a must!

Broadband Speed Availability

Ultrafast

Potential Speeds for 8 Millvale

Max Download
1000
Mbps
Max Upload
1000
Mbps
The speeds indicated represent the maximum estimated fixed-line speeds as predicted by Ofcom. Please note that these are estimates, and actual service availability and speeds may differ.

Property Location

Show Map

Mortgage Calculator

Disclaimer: The following calculations act as a guide only, and are based on a typical repayment mortgage model. Financial decisions should not be made based on these calculations and accuracy is not guaranteed. Always seek professional advice before making any financial decisions.

Directions

Millvale is located off the Crumlin Road in Ballinderry Lower

Contact Agent

Contact Stewart Estate Agents

Contact Stewart Estate Agents

Request More Information
Requesting Info about...
8 Millvale, Lisburn Area, Ballinderry Lower, BT28 2FA 8 Millvale, Lisburn Area, Ballinderry Lower, BT28 2FA

By registering your interest, you acknowledge our Privacy Policy