Contact Agent

Contact Daniel Henry Estate Agents (Limavady)

Contact Daniel Henry Estate Agents (Limavady)

Site

Development Site at, 189 Irish Green Street

Limavady, BT49 9AR

guide price £500,000
  • Status For Sale
  • Property Type Site
  • Stamp Duty
    Higher amount applies when purchasing as buy to let or as an additional property
    £15,000 / £40,000*
  • Typical Mortgage
    Click price to use our mortgage calculator

Key Features

Residential Development Opportunity
Edge of Town Location
Within Walking Distance of Local Amenities
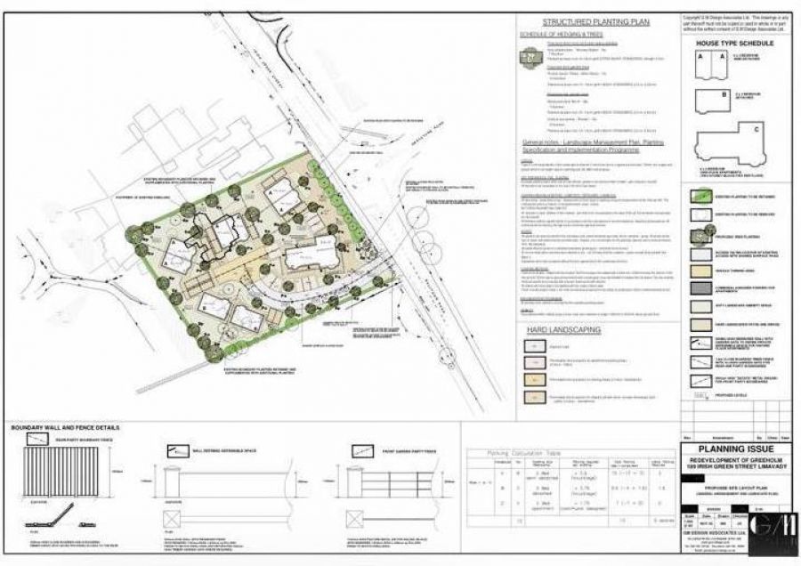
Planning Permission for 12 Homes
Range of Detached Houses, Semi-Detached Houses and Apartments

Rooms

DESCRIPTION OF PROPOSAL: Demolition of existing dwelling and construction of housing development comprising:

2 x 3 bedroom two storey detached dwellings.
6 x 3 bedroom two storey semi-detached dwellings.
4 x 2 bedroom own door apartments within 2 storey block.

Alteration and relocation of existing access and associated landscaping and parking.
FOR SALE: Residential Development Site of 12 Homes We have been instructed to offer for sale, this prime development with full planning permission. It is located just on the edge of Limavady Town Centre within close proximity of all local amenities. The site comprises of an excellent range of detached and semi-detached homes, together with a small block of two bedroom apartments.

For further details, please contact our Limavady office on 028 7776 2558 / Email: limavady@danielhenry.co.uk

Broadband Speed Availability

Ultrafast

Potential Speeds for 189 Irish Green Street

Max Download
1800
Mbps
Max Upload
220
Mbps
The speeds indicated represent the maximum estimated fixed-line speeds as predicted by Ofcom. Please note that these are estimates, and actual service availability and speeds may differ.

Property Location

Show Map

Mortgage Calculator

Disclaimer: The following calculations act as a guide only, and are based on a typical repayment mortgage model. Financial decisions should not be made based on these calculations and accuracy is not guaranteed. Always seek professional advice before making any financial decisions.

Contact Agent

Contact Daniel Henry Estate Agents (Limavady)

Contact Daniel Henry Estate Agents (Limavady)

Request More Information
Requesting Info about...
Development Site at, 189 Irish Green Street, Limavady, BT49 9AR Development Site at, 189 Irish Green Street, Limavady, BT49 9AR

By registering your interest, you acknowledge our Privacy Policy
Ask Holmes
Ask Holmes
Let's find your next home

Are you sure you want to reset the chat?

Checking API...