Contact Agent

Contact DMC Properties & Mortgages

Contact DMC Properties & Mortgages

3 Bed Detached Bungalow

Rose Cottage, 17 Lomond Road

Limavady, BT49 9DZ

asking price £199,950
  • Status For Sale
  • Property Type Detached Bungalow
  • Bedrooms 3
  • Receptions 3
  • Bathrooms 2
  • Rates
    Rate information is for guidance only and may change as sources are updated.
    £1,535.00
  • Heating Oil
  • EPC Rating E47 / D57 -
  • Stamp Duty
    Higher amount applies when purchasing as buy to let or as an additional property
    £1,499 / £11,497*
  • Typical Mortgage
    Click price to use our mortgage calculator
EPC Rating

Property Financials

  • Asking Price £199,950
  • Rates £1,535.00

Key Features & Description

Charming Detached Cottage Situated On A Mature, Landscaped Site, In A Picturesque Rural Location. In Need Of Some Repairs.
Three Reception Rooms Including; Living Room, Sun Room and Dining Room.
Three Good Bedrooms, Two With Dressing Rooms and Master Bedrooms With Ensuite Bathroom.
Shower Room Comprising White 3 Piece Suite.
Kitchen With Excellent Range Of Chestnut Units.
Key Features Include; Oil Fired Central Heating System, Double Glazed Windows and Doors In uPVC Frames. Concrete Driveway, Large Detached Garage, Wash House/Storage Shed, Mature, Landscaped Gardens.
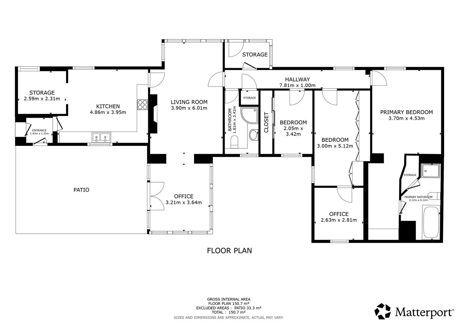
Description

Accommodation :

................


Reception Porch :

7'4 x 3'6 uPVC front door with double glazed centre light. Solid Oak floor. Wood panelled walls and ceiling.


Entrance Hall :

Glass panelled vestibule door with side screen. Honey Oak floor. Shelved Hotpress with willis type immersion heater.


Living Room :

18'6 x 12'8 Feature Claudy stone fireplace with open fire, quarry slate hearth and driftwood mantle. Honey Oak floor. Large bay window. Exposed timber beam to ceiling. Ceiling cornicing. Opening leading into Sun Room with Oak casing.


Sun Room :

11'4 x 9'8 High vaulted ceiling. Honey Oak floor. uPVC French doors leading out into landscaped rear garden.


Kitchen :

12'6 x 12'6 Excellent range of Chestnut units with matching worktops. Stainless steel sink unit and single drainer with chrome mixer taps. Part tiled walls. Tiled floor. Exposed timber beams to ceiling with recessed lights. Display units and window pelmet. Radiator cover. Plumbed for washing machine. Plumbed for dishwasher. Canopy housing concealed extractor fan.


Dining Room :

8'4 x 7'6 Excellent range of Contemporary Shaker Style with larder unit, drawer sets and integral fridge/freezer. Honey Oak floor.


Rear Porch :

4'8 x 4'6 Tiled floor. uPVC rear door with double glazed centre light.


Wash Room :

4'8 x 2'10 Tiled floor. Open shelving.


Master Bedroom [1] With Dressing Room :

And Ensuite Bathroom: 14'6 x 12'8 Natural Oak floor.


Dressing Room :

13'2 x 5'4 Natural Oak floor.


Ensuite Bathroom :

13'10 x 6'4 White 4 Piece suite comprising bath. Vanity unit with wash hand basin. Low flush w.c. Large walk-in shower unit with REDRING EXPRESSIONS Electric shower. Half tiled walls. Tiled floor. Shelved Linen Cupboard.


Bedroom [2] With Dressing Room Off :

16'4 x 8'8 Excellent range of Built in Oak units including robes, storage lockers, bedside cabinets with display shelving. Honey Oak floor.


Dressing Room / Study :

8'8 x 8'6 Carpet flooring.


Bedroom [3] :

11'2 x 6'8 Excellent range of built in sliding robes. Honey Oak floor.


Shower Room :

8'4 x 5'6 White 3 Piece suite comprising large corner shower unit with REDRING PLUS Electric shower. Vanity unit with wash hand basin. Low flush w.c. Redwood storage lockers and drawer sets. Wall mirror with display shelved. Half tiled walls. Tiled floor. Redwood ceiling with recessed lights.


Exterior :

Mature, landscaped gardens to front, side and rear of dwelling laid out in lawns, plants, shrubs and trees enclosed by fencing, wall and gates. Concrete driveway leading to Detached Garage. Patio area to rear garden. Outside lights and water tap. Greenhouse and wash house. Oil fired condensing boiler. PVC oil tank. Septic tank.


Detached Garage :

22'6 x 21'10 Roller door. Light and power points.


Wash House :

10'2 x 8'8 Worktop with stainless steel sink unit and single drainer. Cold water supply. Plumbed for washing machine.


Rates :

£1,535.00 Per annum as at February, 2026.


EPC Rating: :

E47/D57

Virtual Tour

Broadband Speed Availability

Ultrafast

Potential Speeds for 17 Lomond Road

Max Download
1800
Mbps
Max Upload
220
Mbps
The speeds indicated represent the maximum estimated fixed-line speeds as predicted by Ofcom. Please note that these are estimates, and actual service availability and speeds may differ.

Property Location

Show Map

Mortgage Calculator

Disclaimer: The following calculations act as a guide only, and are based on a typical repayment mortgage model. Financial decisions should not be made based on these calculations and accuracy is not guaranteed. Always seek professional advice before making any financial decisions.

Contact Agent

Contact DMC Properties & Mortgages

Contact DMC Properties & Mortgages

Request More Information
Requesting Info about...
Rose Cottage, 17 Lomond Road, Limavady, BT49 9DZ Rose Cottage, 17 Lomond Road, Limavady, BT49 9DZ

By registering your interest, you acknowledge our Privacy Policy