4 Bed Terrace House
6 Chelmsford Place
Larne, BT40 1AF
offers over
£179,950
Key Features & Description
Period, Bay-Fronted Terrace Property
Four Bedroom; Three Reception
Modern Fitted Kitchen
Deluxe Bathroom
Separate Furnished Cloakroom
Oil Heating
PVC Double Glazing
Low Maintenance Gardens
Enclosed Utility/Yard
Many Original Features Throughout
Description
Well presented, spacious, four bedroom/three reception, bay-fronted period terrace property, occupying a cul-de-sac position off Chaine Memorial Road, Larne.
The property comprises entrance porch, entrance hall, lounge, family room, dining room, separate modern fitted kitchen, four well-proportioned bedrooms, deluxe bathroom, and separate furnished cloakroom.
Externally, the property enjoys enclosed utility/yard, and low maintenance gardens front and rear.
Other attributes include oil heating, PVC double glazing (bar dining room), and many original features throughout.
Early viewing highly recommended.
Well presented, spacious, four bedroom/three reception, bay-fronted period terrace property, occupying a cul-de-sac position off Chaine Memorial Road, Larne.
The property comprises entrance porch, entrance hall, lounge, family room, dining room, separate modern fitted kitchen, four well-proportioned bedrooms, deluxe bathroom, and separate furnished cloakroom.
Externally, the property enjoys enclosed utility/yard, and low maintenance gardens front and rear.
Other attributes include oil heating, PVC double glazing (bar dining room), and many original features throughout.
Early viewing highly recommended.
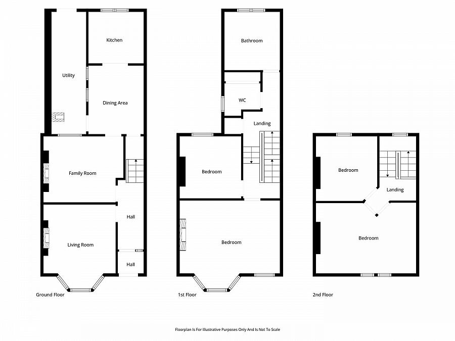
Rooms
ACCOMMODATION
ENTRANCE PORCH
Hardwood panelled front door with fanlight over. Tiled floor. Feature height ceiling, continuing throughout remainder of home. PVC double glazed door with matching side screen and fanlight over leading to:
ENTRANCE HALL
Wood laminate floor covering. Stairwell to first floor.
LOUNGE 14'0" X 11'11" (wps) (4.28m X 3.64m (wps))
Bay window to front elevation. Cast iron wood burning stove with cast iron fireplace, tiled hearth and timber surround. Wood laminate floor covering.
FAMILY ROOM 12'9" X 10'7" (3.89m X 3.23m)
Cast iron, focal point fireplace with tiled hearth. Fitted storage unit with shelving. Wood laminate floor covering. Glass panelled door leading to:
DINING ROOM 11'3" X 8'10" (3.45m X 2.71m)
Access to under stairs store. PVC double glazed door to utility/yard and rear garden. Open arch leading to:
KITCHEN 8'10" X 8'6" (2.70m X 2.60m)
Modern fitted kitchen with range of high and low level storage units with contrasting granite effect melamine work surface. Stainless steel 1.5 bowl sink unit with draining bay. Cooker point with extractor hood over. Integrated under counter fridge. Splashback tiling to walls.
FIRST FLOOR
LANDING
Access to hot press. Stairwell to second floor.
BEDROOM 1 16'6" X 14'0" (wps) (5.03m X 4.28m (wps))
Bay window to front elevation. Cast iron focal point fireplace with tiled inset, tiled hearth and timber surround.
BEDROOM 2 10'6" X 10'1" (3.21m X 3.09m)
DELUXE BATHROOM
Contemporary, white, four piece suite comprising free standing bath, separate fully tiled shower enclosure, vanity unit and WC. Electric shower. Towel radiator. Tiled floor.
FURNISHED CLOAKROOM
Contemporary, white, two piece suite comprising pedestal wash hand basin and WC. Built in storage unit in sliding doors.
SECOND FLOOR
LANDING
BEDROOM 3 16'5" X 11'6" (wps) (5.02m X 3.53m (wps))
BEDROOM 4 10'7" X 10'0" (3.24m X 3.07m)
EXTERNAL
Low maintenance front garden finished in decorative stone and paving.
Fully enclosed rear yard with perspex roof with power, light, oil fired central heating boiler and plumbed for automatic washing machine.
Fully enclosed rear garden finished in paved patio area, lawn, timber decking and tree bark.
Garden shed.
Outside tap.
Fully enclosed rear yard with perspex roof with power, light, oil fired central heating boiler and plumbed for automatic washing machine.
Fully enclosed rear garden finished in paved patio area, lawn, timber decking and tree bark.
Garden shed.
Outside tap.
IMPORTANT NOTE TO ALL POTENTIAL PURCHASERS
Every care has been taken with the preparation of these particulars, but complete accuracy cannot be guaranteed. If there is any point, which is of particular importance to you, please obtain professional confirmation. Alternatively, we will be pleased to check the information for you. All measurements quoted are approximate. The Fixtures, Fittings & Appliances have not been tested and therefore no guarantee can be given that they are in working order. Photographs are reproduced for general information and it cannot be inferred that any item shown is included in the sale.
Broadband Speed Availability
Potential Speeds for 6 Chelmsford Place
Max Download
1800
Mbps
Max Upload
220
MbpsThe speeds indicated represent the maximum estimated fixed-line speeds as predicted by Ofcom. Please note that these are estimates, and actual service availability and speeds may differ.
Property Location
Mortgage Calculator
Contact Agent
Contact Colin Graham Residential
Request More Information
Requesting Info about...
6 Chelmsford Place, Larne, BT40 1AF
By registering your interest, you acknowledge our Privacy Policy
By registering your interest, you acknowledge our Privacy Policy