6 Bed Terrace House
25 The Roddens
Larne, BT40 1QX
offers over
£194,950
Description
An exceptional SIX bedroom terrace with lots of original features - oh did I mention fireplaces ??
This is just one of those houses that feels warm and welcoming from the minute you open the door. Freshly painted throughout and loads of space, this is just crying out for its next family to move in
Excellent Mid Terrace Property with character features throughout
Exceptionally spacious
Two reception rooms with Fireplaces
Kitchen / Dining with stove
Six bedrooms over floors two and three
Family Bathroom
Shower Room
Utility / Laundry Room
Raised enclosed patio area from kitchen. - ideal for entertaining
Large Garden laid in lawn with outbuilding
Minute proximity to Larne Town Centre
Walking distance to many schools, bus train etc
Electricity supply: Mains
Heating: Gas Mains
Water supply: Mains
Sewerage: Mains
Ground Floor
Front Porch
Attractive Panelling. Feature tiled flooring. PVC door with side panels leading to
Entrance hall
Large bright hallway with original wood flooring and feature staircase
Lounge w: 6.63m x l: 4.19m (w: 21' 9" x l: 13' 9")
(measurement into Bay )
Beautiful large family room with bay window providing lots of natural light. High ceilings with Cornicing and coving. Original marble effect fireplace, Black cast iron inset, feature tiling and tiled hearth. Attractive brick chimney breast. Wall lights. Wood strip flooring
Living room w: 3.83m x l: 3.76m (w: 12' 7" x l: 12' 4")
Another fab family room with coving and cornicing. Feature fireplace with stove inset, black tiled hearth. Decorative wall lighting. Natural tiled flooring.
Kitchen w: 5.94m x l: 3.66m (w: 19' 6" x l: 12' )
Very spacious kitchen / Dining room with another feature stove. Good range of high and low level cream units with laminate work surfaces. One and half bowl stainless steel sink. Eye level double oven, four ring hob and black extractor over. Integrated Fridge freezer, integrated dishwasher. Pull out larder. Ample space for dining. Built in seating area. Lots of light from dual aspect windows and a glazed side door to the patio. Under stairs storage. Part tiled walls and tiled flooring.
FIRST FLOOR:
Landing
Stairs to first and second floors with feature sweeping staircase with beautiful ornate mahogany balustrade and spindles.
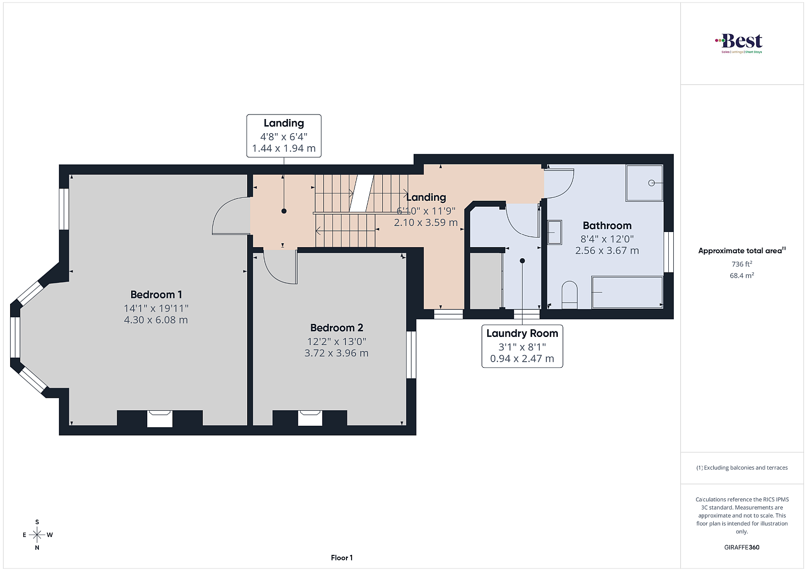
Bathroom w: 3.7m x l: 2.82m (w: 12' 2" x l: 9' 3")
White suite comprising low flush WC, pedestal wash hand basin with chrome taps, attractive panelled bath with mixer tap and telephone shower head. Separate shower quadrant with red ring electric shower. Tiled shower cubicle, part tiled walls and tiled flooring.
Utility w: 2.47m x l: 1.75m (w: 8' 1" x l: 5' 9")
situated conveniently on the first floor landing this space is plumbed for washing machine, houses gas boiler and has ample storage and shelving for traditional hotpress items to serve all bedrooms
Landing
Bedroom 1 w: 6.11m x l: 4.34m (w: 20' 1" x l: 14' 3")
Absolutely beautiful room with dual windows including another big bay. Features a decorative marble effect fireplace and original features again. Very large and bright room
Bedroom 2 w: 3.98m x l: 3.74m (w: 13' 1" x l: 12' 3")
Great room. Brick Chimney with feature decorative fire surround
Landing
Shower Room w: 2.47m x l: 2.09m (w: 8' 1" x l: 6' 10")
White suite comprising low flush WC, pedestal wash hand basin, corner shower cubicle with Mira electric shower.
Access to attic
Bedroom 3 w: 3.7m x l: 2.57m (w: 12' 2" x l: 8' 5")
Landing
Bedroom 4 w: 4.05m x l: 3.45m (w: 13' 3" x l: 11' 4")
Bedroom 5 w: 4.59m x l: 2.62m (w: 15' 1" x l: 8' 7")
L shape. Second attic access
Bedroom 6 w: 3.49m x l: 3.42m (w: 11' 5" x l: 11' 3")
Outside
Front Garden
Fully enclosed laid in stone with concrete pathay.
Rear
paved area fully enclosed with plant pots and beds. Providing a raised terrace for chilling, eating or entertaining.
Steps down to a right of way leading to a very large rear garden laid in lawn. Decking.
Outbuilding / Store area below
PLEASE NOTE: We have not tested any appliances or systems at this property. Every effort has been taken to ensure the accuracy of the details provided and the measurements and information given are deemed to be accurate however all purchasers should carry out necessary checks as appropriate and instruct their own surveying/ legal representative prior to completion.
This is just one of those houses that feels warm and welcoming from the minute you open the door. Freshly painted throughout and loads of space, this is just crying out for its next family to move in
Excellent Mid Terrace Property with character features throughout
Exceptionally spacious
Two reception rooms with Fireplaces
Kitchen / Dining with stove
Six bedrooms over floors two and three
Family Bathroom
Shower Room
Utility / Laundry Room
Raised enclosed patio area from kitchen. - ideal for entertaining
Large Garden laid in lawn with outbuilding
Minute proximity to Larne Town Centre
Walking distance to many schools, bus train etc
Electricity supply: Mains
Heating: Gas Mains
Water supply: Mains
Sewerage: Mains
Ground Floor
Front Porch
Attractive Panelling. Feature tiled flooring. PVC door with side panels leading to
Entrance hall
Large bright hallway with original wood flooring and feature staircase
Lounge w: 6.63m x l: 4.19m (w: 21' 9" x l: 13' 9")
(measurement into Bay )
Beautiful large family room with bay window providing lots of natural light. High ceilings with Cornicing and coving. Original marble effect fireplace, Black cast iron inset, feature tiling and tiled hearth. Attractive brick chimney breast. Wall lights. Wood strip flooring
Living room w: 3.83m x l: 3.76m (w: 12' 7" x l: 12' 4")
Another fab family room with coving and cornicing. Feature fireplace with stove inset, black tiled hearth. Decorative wall lighting. Natural tiled flooring.
Kitchen w: 5.94m x l: 3.66m (w: 19' 6" x l: 12' )
Very spacious kitchen / Dining room with another feature stove. Good range of high and low level cream units with laminate work surfaces. One and half bowl stainless steel sink. Eye level double oven, four ring hob and black extractor over. Integrated Fridge freezer, integrated dishwasher. Pull out larder. Ample space for dining. Built in seating area. Lots of light from dual aspect windows and a glazed side door to the patio. Under stairs storage. Part tiled walls and tiled flooring.
FIRST FLOOR:
Landing
Stairs to first and second floors with feature sweeping staircase with beautiful ornate mahogany balustrade and spindles.
Bathroom w: 3.7m x l: 2.82m (w: 12' 2" x l: 9' 3")
White suite comprising low flush WC, pedestal wash hand basin with chrome taps, attractive panelled bath with mixer tap and telephone shower head. Separate shower quadrant with red ring electric shower. Tiled shower cubicle, part tiled walls and tiled flooring.
Utility w: 2.47m x l: 1.75m (w: 8' 1" x l: 5' 9")
situated conveniently on the first floor landing this space is plumbed for washing machine, houses gas boiler and has ample storage and shelving for traditional hotpress items to serve all bedrooms
Landing
Bedroom 1 w: 6.11m x l: 4.34m (w: 20' 1" x l: 14' 3")
Absolutely beautiful room with dual windows including another big bay. Features a decorative marble effect fireplace and original features again. Very large and bright room
Bedroom 2 w: 3.98m x l: 3.74m (w: 13' 1" x l: 12' 3")
Great room. Brick Chimney with feature decorative fire surround
Landing
Shower Room w: 2.47m x l: 2.09m (w: 8' 1" x l: 6' 10")
White suite comprising low flush WC, pedestal wash hand basin, corner shower cubicle with Mira electric shower.
Access to attic
Bedroom 3 w: 3.7m x l: 2.57m (w: 12' 2" x l: 8' 5")
Landing
Bedroom 4 w: 4.05m x l: 3.45m (w: 13' 3" x l: 11' 4")
Bedroom 5 w: 4.59m x l: 2.62m (w: 15' 1" x l: 8' 7")
L shape. Second attic access
Bedroom 6 w: 3.49m x l: 3.42m (w: 11' 5" x l: 11' 3")
Outside
Front Garden
Fully enclosed laid in stone with concrete pathay.
Rear
paved area fully enclosed with plant pots and beds. Providing a raised terrace for chilling, eating or entertaining.
Steps down to a right of way leading to a very large rear garden laid in lawn. Decking.
Outbuilding / Store area below
PLEASE NOTE: We have not tested any appliances or systems at this property. Every effort has been taken to ensure the accuracy of the details provided and the measurements and information given are deemed to be accurate however all purchasers should carry out necessary checks as appropriate and instruct their own surveying/ legal representative prior to completion.
Broadband Speed Availability
Potential Speeds for 25 The Roddens
Max Download
1800
Mbps
Max Upload
220
MbpsThe speeds indicated represent the maximum estimated fixed-line speeds as predicted by Ofcom. Please note that these are estimates, and actual service availability and speeds may differ.
Property Location
Mortgage Calculator
Contact Agent
Contact Best Lets and Sales NI
Request More Information
Requesting Info about...