Retail
74 Main Street
Larne, BT40 1SP
offers around
£89,950
- Status For Sale
- Property Type Retail
- Heating Economy 7
-
Stamp Duty
Higher amount applies when purchasing as buy to let or as an additional property£0 / £4,498*
Key Features & Description
PROMINENTLY POSITIONED RETAIL UNIT
ELECTRICAL CENTRAL HEATING
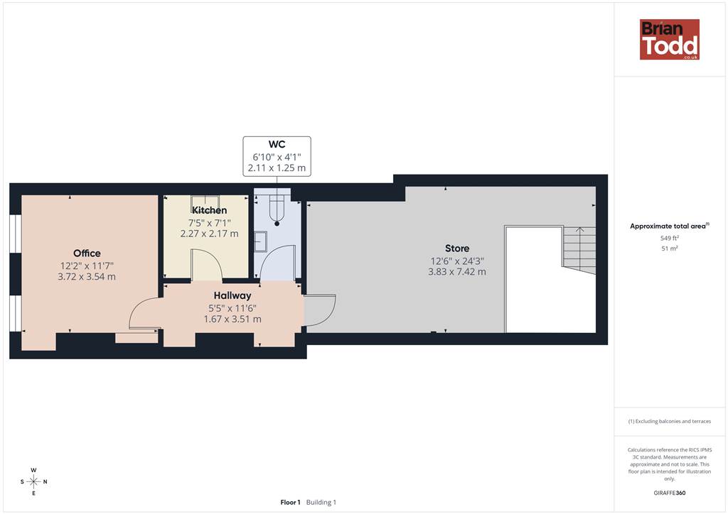
FIRST FLOOR KITCHEN, W.C., OFFICE AND STORAGE
LAND TO THE REAR
EXCELLENT FOOTFALL
CLOSE TO OTHER MAJOR RETAILERS
WELL PRESENTED THROUGHOUT
Description
Occupying a prominent position on Larne Main Street with excellent passing footfall, this well presented two storey retail unit offers an excellent opportunity for purchasers seeking a centrally located commercial property.
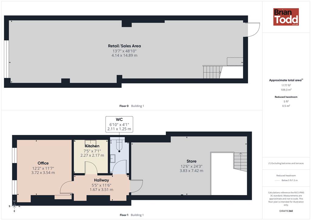
The ground floor comprises a spacious retail area, providing a flexible layout suitable for a variety of retail or service-based businesses. The first floor includes additional accommodation with a kitchen, W.C.,office and storage, offering practical facilities for staff and day to day operations.
The property benefits from electrical central heating and also includes an area of land to the rear, which may offer additional potential subject to all relevant and statutory approvals.
Further details and viewing arrangements can be made through the selling agents.
Occupying a prominent position on Larne Main Street with excellent passing footfall, this well presented two storey retail unit offers an excellent opportunity for purchasers seeking a centrally located commercial property.
The ground floor comprises a spacious retail area, providing a flexible layout suitable for a variety of retail or service-based businesses. The first floor includes additional accommodation with a kitchen, W.C.,office and storage, offering practical facilities for staff and day to day operations.
The property benefits from electrical central heating and also includes an area of land to the rear, which may offer additional potential subject to all relevant and statutory approvals.
Further details and viewing arrangements can be made through the selling agents.
Rooms
RETAIL /SALES AREA:
KITCHEN:
W.C.:
OFFICE:
STORE ROOM:
LAND TO REAR:
Virtual Tour
Broadband Speed Availability
Potential Speeds for 74 Main Street
Max Download
1800
Mbps
Max Upload
220
MbpsThe speeds indicated represent the maximum estimated fixed-line speeds as predicted by Ofcom. Please note that these are estimates, and actual service availability and speeds may differ.
Property Location
Mortgage Calculator
Directions
Larne
Contact Agent
Contact Brian Todd Estate Agents
Request More Information
Requesting Info about...