4 Bed Detached House
14 Porter Crescent
Larne, BT40 2TZ
offers around
£249,950
Key Features & Description
DETACHED CHALET STYLE VILLA
OIL FIRED CENTRAL HEATING
UPVC DOUBLE GLAZING
LOUNGE - HIGH MANTLE FIREPLACE
MODERN FITTED KITCHEN - INTEGRATED APPLIANCES
CASUAL DINING AREA
SEPARATE UTILITY ROOM
DOWNSTAIRS GUEST W.C.
BATHROOM - MODERN WHITE SUITE
FOUR BEDROOMS
ENSUITE SHOWER ROOM
ENCLOSED REAR GARDEN IN LAWN WITH FEATURE PATIO
TARMAC DRIVEWAY TO THE SIDE
FRONT GARDEN IN LAWN
MUCH SOUGHT AFTER RESIDENTIAL LOCATION
WELL PRESENTED AND DECORATED THROUGHOUT
Description
For those in search of a beautifully presented and tastefully decorated family home, this contemporary style property is sure to impress.
Located in a highly sought after residential area of Larne, the home is just a short drive from the town centre and offers convenient access to the main A8 carriageway, providing an easy commute towards Belfast.
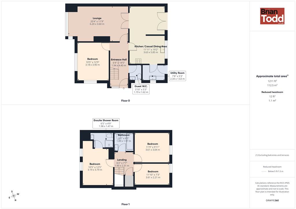
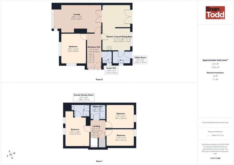
Internally, the property offers deceptively spacious and well planned living accommodation. The ground floor comprises of a lounge, a modern fitted kitchen complete with integrated appliances, casual dining area, a separate utility room, and a convenient downstairs guest W.C. A fourth bedroom, located on the ground floor, provides flexible living options ideal for guests or multi-generational family needs.
Upstairs, there are three further well proportioned bedrooms, including a principal bedroom with ensuite shower room, along with a contemporary family bathroom finished with a white suite.
Externally, the home benefits from an enclosed rear garden laid in lawn, complemented by a feature patio area and garden shed perfect for relaxing or entertaining. To the front, there is a neat lawned garden and a tarmac driveway to the side, offering ample off-street parking.
Early viewing is highly recommended to fully appreciate the quality and space this excellent family home has to offer.
Viewing is strictly by appointment through the Agents.
For those in search of a beautifully presented and tastefully decorated family home, this contemporary style property is sure to impress.
Located in a highly sought after residential area of Larne, the home is just a short drive from the town centre and offers convenient access to the main A8 carriageway, providing an easy commute towards Belfast.
Internally, the property offers deceptively spacious and well planned living accommodation. The ground floor comprises of a lounge, a modern fitted kitchen complete with integrated appliances, casual dining area, a separate utility room, and a convenient downstairs guest W.C. A fourth bedroom, located on the ground floor, provides flexible living options ideal for guests or multi-generational family needs.
Upstairs, there are three further well proportioned bedrooms, including a principal bedroom with ensuite shower room, along with a contemporary family bathroom finished with a white suite.
Externally, the home benefits from an enclosed rear garden laid in lawn, complemented by a feature patio area and garden shed perfect for relaxing or entertaining. To the front, there is a neat lawned garden and a tarmac driveway to the side, offering ample off-street parking.
Early viewing is highly recommended to fully appreciate the quality and space this excellent family home has to offer.
Viewing is strictly by appointment through the Agents.
Rooms
ENTRANCE HALL:
GUEST W.C.:
Modern white suite incorporating W.C. and wash hand basin.
LOUNGE:
High mantle fireplace. Laminate wood flooring. French style doors through to:
DINING ROOM:
Laminate wood flooring. Patio door feature.
KITCHEN:
Modern range of fitted upper and lower level units. Integrated electric hob, oven and extractor fan. One and half bowled sink unit. Plumbed for automatic washing machine and dishwasher.
UTILITY ROOM:
Fitted units.
BATHROOM:
Modern white suite incorporating W.C., wash hand basin and panelled bath. Velux window.
BEDROOM (1):
Laminate wood flooring.
ENSUITE SHOWER ROOM:
Modern white suite incorporating W.C., wash hand basin and panelled bath. Velux style window. Towel radiator.
BEDROOM (2):
Laminate wood flooring.
BEDROOM (3):
Laminate wood flooring.
GARDENS:
Enclosed rear garden in lawn with feature patio and shed.
Front garden in lawn.
Tarmac driveway to the side.
Virtual Tour
Broadband Speed Availability
Potential Speeds for 14 Porter Crescent
Max Download
1800
Mbps
Max Upload
220
MbpsThe speeds indicated represent the maximum estimated fixed-line speeds as predicted by Ofcom. Please note that these are estimates, and actual service availability and speeds may differ.
Property Location
Mortgage Calculator
Directions
Larne
Contact Agent
Contact Brian Todd Estate Agents
Request More Information
Requesting Info about...
14 Porter Crescent, Larne, BT40 2TZ
By registering your interest, you acknowledge our Privacy Policy
By registering your interest, you acknowledge our Privacy Policy