Contact Agent
Contact Brian Todd Estate Agents
2 Bed Townhouse
56 Mill Brae
Larne, BT40 2DE
guide price
£49,950
Key Features & Description
TRADITIONAL STYLE MID TOWN HOUSE
OIL FIRED CENTRAL HEATING
SINGLE GLAZING
GREAT SCOPE FOR FURTHER IMPROVEMENT
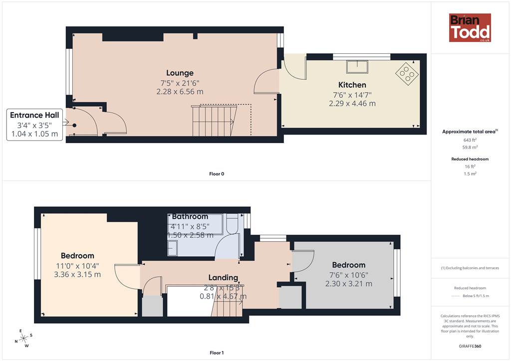
LOUNGE
FITTED KITCHEN
COLOURED BATHROOM SUITE
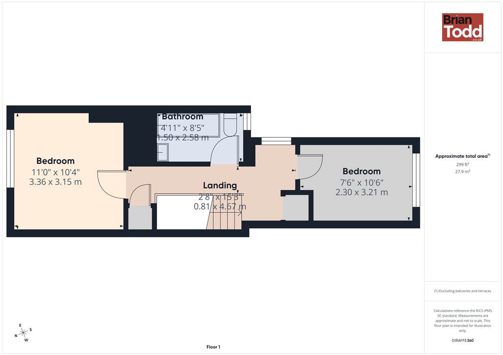
TWO BEDROOMS
PEDESTRIAN RIGHT OF WAY TO REAR
POPULAR CENTRAL LOCATION
CHAIN FREE
Description
For sale by Brian A Todd & Co Ltd via the iamsold Bidding Platform
Please note this property will be offered by online auction (unless sold prior). For auction date and time please visit iamsoldni.com. Vendors may decide to accept pre-auction bids so please register your interest with us to avoid disappointment.
Situated in a popular and convenient central location within Larne town, this traditional mid terrace townhouse presents an excellent opportunity for purchasers seeking a well located home with potential for further enhancement.
The accommodation comprises a lounge, fitted kitchen, bathroom with coloured suite, and two bedrooms. Externally, the property benefits from a pedestrian right of way to the rear.
Ideally positioned within walking distance of the town centre and a range of local amenities, the property is offered chain free.
Viewing is strictly by appointment through the selling agents.
Auctioneers Comments:
This property is for sale under Traditional Auction terms. Should you view, offer or bid on the property, your information will be shared with the Auctioneer, iamsold.
With this auction method, an immediate exchange of contracts takes place with completion of the purchase required to take place within 28 days from the date of exchange of contracts.
The buyer is also required to make a payment of a non-refundable, part payment 10% Contract Deposit to a minimum of £6,000.00.
In addition to their Contract Deposit, the Buyer must pay an Administration Fee to the Auctioneer of 1.80% of the final agreed sale price including VAT, subject to a minimum of £2,400.00 including VAT for conducting the auction.
Buyers will be required to go through an identification verification process with iamsold and provide proof of how the purchase would be funded.
Terms and conditions apply to the traditional auction method and you are required to check the Buyer Information Pack for any special terms and conditions associated with this lot.
The property is subject to an undisclosed Reserve Price with both the Reserve Price and Starting Bid being subject to change.
For sale by Brian A Todd & Co Ltd via the iamsold Bidding Platform
Please note this property will be offered by online auction (unless sold prior). For auction date and time please visit iamsoldni.com. Vendors may decide to accept pre-auction bids so please register your interest with us to avoid disappointment.
Situated in a popular and convenient central location within Larne town, this traditional mid terrace townhouse presents an excellent opportunity for purchasers seeking a well located home with potential for further enhancement.
The accommodation comprises a lounge, fitted kitchen, bathroom with coloured suite, and two bedrooms. Externally, the property benefits from a pedestrian right of way to the rear.
Ideally positioned within walking distance of the town centre and a range of local amenities, the property is offered chain free.
Viewing is strictly by appointment through the selling agents.
Auctioneers Comments:
This property is for sale under Traditional Auction terms. Should you view, offer or bid on the property, your information will be shared with the Auctioneer, iamsold.
With this auction method, an immediate exchange of contracts takes place with completion of the purchase required to take place within 28 days from the date of exchange of contracts.
The buyer is also required to make a payment of a non-refundable, part payment 10% Contract Deposit to a minimum of £6,000.00.
In addition to their Contract Deposit, the Buyer must pay an Administration Fee to the Auctioneer of 1.80% of the final agreed sale price including VAT, subject to a minimum of £2,400.00 including VAT for conducting the auction.
Buyers will be required to go through an identification verification process with iamsold and provide proof of how the purchase would be funded.
Terms and conditions apply to the traditional auction method and you are required to check the Buyer Information Pack for any special terms and conditions associated with this lot.
The property is subject to an undisclosed Reserve Price with both the Reserve Price and Starting Bid being subject to change.
Rooms
ENTRANCE HALL:
LOUNGE:
KITCHEN:
Range of fitted upper and lower level units.
BATHROOM:
Coloured suite incorporating W.C., wash hand basin and panelled bath.
BEDROOM (1):
BEDROOM (2):
Right of way to rear.
Broadband Speed Availability
Potential Speeds for 56 Mill Brae
Max Download
1800
Mbps
Max Upload
220
MbpsThe speeds indicated represent the maximum estimated fixed-line speeds as predicted by Ofcom. Please note that these are estimates, and actual service availability and speeds may differ.
Property Location
Mortgage Calculator
Directions
Larne
Contact Agent
Contact Brian Todd Estate Agents
Request More Information
Requesting Info about...