Contact Agent

Contact Brian Todd Estate Agents

Contact Brian Todd Estate Agents

3 Bed Detached House

54 Huntersbuoy

Larne, BT40 2HH

offers around £229,950
  • Status Sale Agreed
  • Property Type Detached
  • Bedrooms 3
  • Receptions 1
  • Heating OFCH
  • EPC Rating E52 / C78
  • Stamp Duty
    Higher amount applies when purchasing as buy to let or as an additional property
    £2,099 / £13,597*
  • Typical Mortgage
    Click price to use our mortgage calculator
EPC Rating

Key Features & Description

DETACHED BUNGALOW
OIL FIRED CENTRAL HEATING
UPVC DOUBLE GLAZING
FAR REACHING COASTAL VIEWS
LOUNGE WITH HIGH MANTLE FIREPLACE
MODERN FITTED KITCHEN
SEPARATE UTILITY ROOM
THREE BEDROOMS - ONE WITH BUILT IN WARDROBES AND OVERHEAD STORAGE
BATHROOM - MODERN WHITE SUITE
GARAGE WITH ROLLER DOOR
FRONT GARDEN IN LAWN
DECORATIVE BLOCK PAVIOUR DRIVEWAY TO THE SIDE
REAR GARDEN IN LAWN
MUCH SOUGHT AFTER RESIDENTIAL LOCATION
CHAIN FREE
Description
Occupying a mature site within this highly regarded residential location, it is a pleasure to offer for sale this excellent detached bungalow.
Affording far reaching coastal views, the property comprises of a lounge, modern fitted kitchen, separate utility room, three bedrooms and bathroom with modern white suite.
Externally, the property benefits from a garage, decorative block paviour driveway, to the side, and, rear garden in lawn.
Chain free, viewing is highly recommended and is strictly by appointment only through Agents.

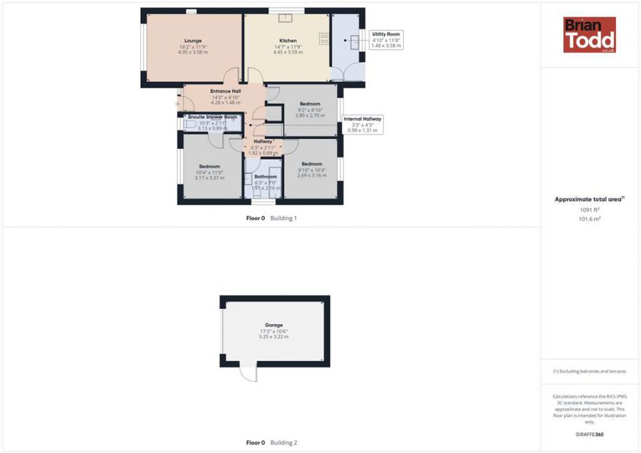
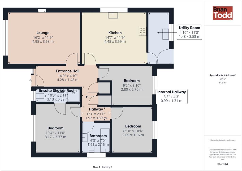
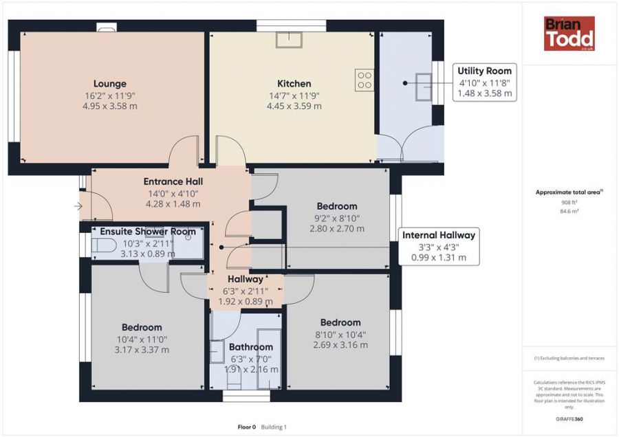
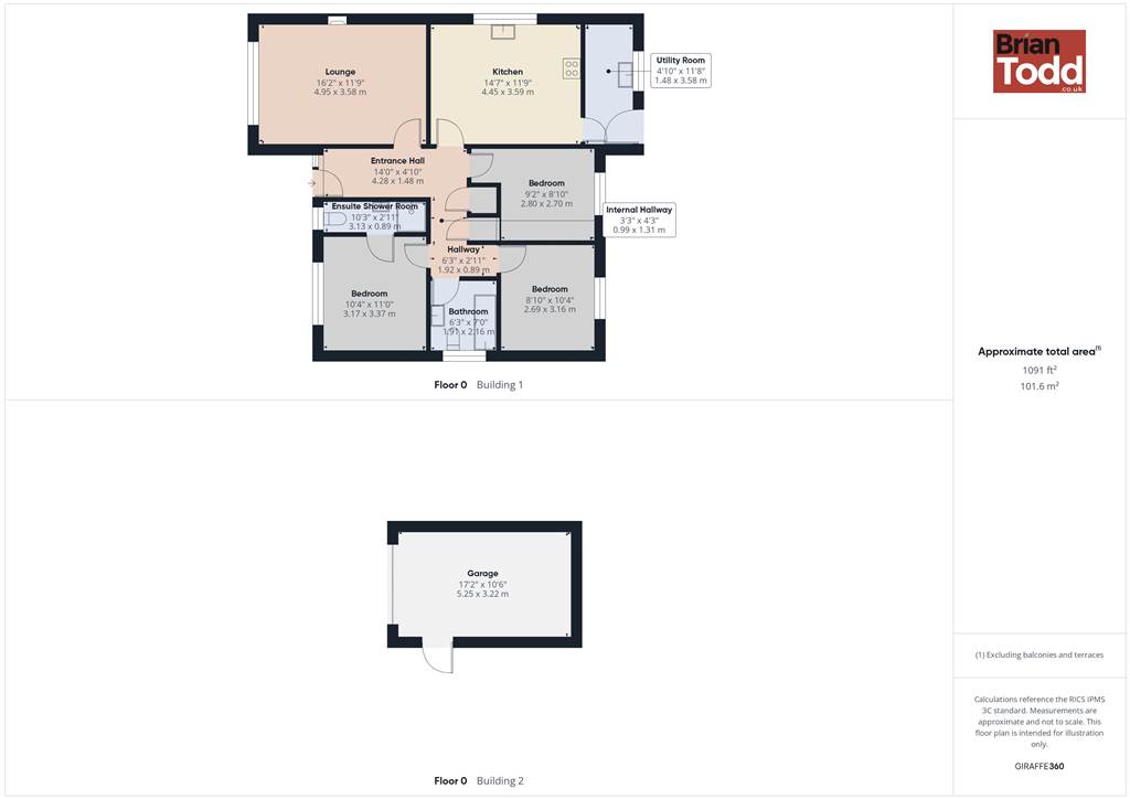
Rooms

ENTRANCE HALL:
LOUNGE: Feature high mantle fireplace. Decorative ceiling cornice.
KITCHEN: Modern range of fitted upper and lower level units. Integrated extractor fan. Stainless steel sink unit. Plumbed for dishwasher. Floor tiling. Part wall tiling.
UTILITY ROOM: Fitted units. Stainless steel sink unit. Plumbed for automatic washing machine.
BEDROOM (1):
ENSUITE SHOWER ROOM:
BEDROOM (2): Built in wardrobes and overhead storage.
BEDROOM (3):
BATHROOM: Modern white suite incorporating low level W.C., pedestal wash hand basin and panelled bath. Floor and wall tiling.
GARAGE: With roller door.
GARDENS: Front garden in lawn. Decorative block paviour driveway to the side. Enclosed rear garden in lawn, complete with stunning far reaching coastal views.

Virtual Tour

Broadband Speed Availability

Ultrafast

Potential Speeds for 54 Huntersbuoy

Max Download
1800
Mbps
Max Upload
220
Mbps
The speeds indicated represent the maximum estimated fixed-line speeds as predicted by Ofcom. Please note that these are estimates, and actual service availability and speeds may differ.

Property Location

Show Map

Mortgage Calculator

Disclaimer: The following calculations act as a guide only, and are based on a typical repayment mortgage model. Financial decisions should not be made based on these calculations and accuracy is not guaranteed. Always seek professional advice before making any financial decisions.

Directions

Larne

Contact Agent

Contact Brian Todd Estate Agents

Contact Brian Todd Estate Agents

Request More Information
Requesting Info about...
54 Huntersbuoy, Larne, BT40 2HH 54 Huntersbuoy, Larne, BT40 2HH

By registering your interest, you acknowledge our Privacy Policy