3 Bed Townhouse
20 Upper Waterloo Road
Larne, BT40 1HD
offers around
£94,950
- Status For Sale
- Property Type Townhouse
- Bedrooms 3
- Receptions 1
- Heating GFCH
-
Stamp Duty
Higher amount applies when purchasing as buy to let or as an additional property£0 / £4,748*
Key Features & Description
WELL DECORATED AND MAINTAINED MID TOWN HOUSE
GAS FIRED CENTRAL HEATING
UPVC DOUBLE GLAZING
LOUNGE
MODERN FITTED KITCHEN/CASUAL DINING AREA
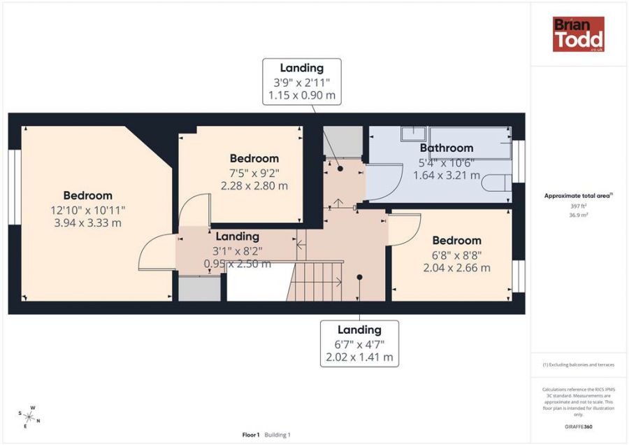
THREE BEDROOMS
BATHROOM - WHITE SUITE
GARAGE TO REAR
LOW MAINTENANCE FRONT AND REAR GARDENS
POPULAR RESIDENTIAL LOCATION
CHAIN FREE
Description
This well presented and tastefully decorated mid townhouse offers an excellent opportunity for first time buyers and investors alike, ideally located in a popular residential area of Larne.
Conveniently situated within walking distance of the town centre, the property also benefits from close proximity to a range of local amenities including schools, parks, and the scenic seafront promenade.
The bright and comfortable accommodation comprises of a lounge, a modern fitted kitchen with casual dining area, a bathroom complete with white suite, and three bedrooms.
Externally, the property boasts a garage along with low maintenance, gardens to the front and rear, perfect for easy upkeep.
Offered to the market chain free, this home is sure to appeal to a wide range of purchasers.
Early viewing is highly recommended and strictly by appointment through the selling agents.
This well presented and tastefully decorated mid townhouse offers an excellent opportunity for first time buyers and investors alike, ideally located in a popular residential area of Larne.
Conveniently situated within walking distance of the town centre, the property also benefits from close proximity to a range of local amenities including schools, parks, and the scenic seafront promenade.
The bright and comfortable accommodation comprises of a lounge, a modern fitted kitchen with casual dining area, a bathroom complete with white suite, and three bedrooms.
Externally, the property boasts a garage along with low maintenance, gardens to the front and rear, perfect for easy upkeep.
Offered to the market chain free, this home is sure to appeal to a wide range of purchasers.
Early viewing is highly recommended and strictly by appointment through the selling agents.
Rooms
ENTRANCE PORCH:
ENTRANCE HALL:
LOUNGE:
Laminate wood flooring.
KITCHEN/DINING AREA:
Modern range of fitted upper and lower level units. Integrated extractor fan. Plumnbed for automatic washing machine. Laminate wood flooring. Casual dining area.
BATHROOM:
Modern white suite incorporating push button W.C., pedestal wash hand basin and panelled bath. Splashback tiling.
BEDROOM (1):
BEDROOM (2):
Laminate wood flooring.
BEDROOM (3):
Laminate wood flooring. Velux window.
GARAGE:
GARDENS:
Low maintenance walled front garden.
Small yard area with pedestrian right of way.
Low maintenance rear garden with a small shrub area.
Pedestrian and vehicular access.
Virtual Tour
Broadband Speed Availability
Potential Speeds for 20 Upper Waterloo Road
Max Download
1000
Mbps
Max Upload
100
MbpsThe speeds indicated represent the maximum estimated fixed-line speeds as predicted by Ofcom. Please note that these are estimates, and actual service availability and speeds may differ.
Property Location
Mortgage Calculator
Directions
Larne
Contact Agent
Contact Brian Todd Estate Agents
Request More Information
Requesting Info about...
20 Upper Waterloo Road, Larne, BT40 1HD
By registering your interest, you acknowledge our Privacy Policy
By registering your interest, you acknowledge our Privacy Policy