Contact Agent

Contact Brian Todd Estate Agents

Contact Brian Todd Estate Agents

Retail

18 Main Street

Larne, BT40 1SS

yearly £18,000
  • Status For Rent
  • Property Type Retail
  • Available From 28/11/2025
  • Rates
    Rate information is for guidance only and may change as sources are updated.
    Exc Rates
  • Furnished Unfurnished
  • EPC Rating D82
  • Typical Mortgage
    Click price to use our mortgage calculator
EPC Rating

Property Financials

  • Yearly £18,000
  • Rates Exc Rates
  • Lease 12 Months

Key Features & Description

EXCELLENT, TOWN CENTRE LOCATION
LARGE COMMERCIAL UNIT
AVAILABLE IMMEDIATELY
Description
Commercial unit, situated in Larne town centre, close to Boots, Dunnes, Clarks, Superdrug and other large retailers.
Excellent unit suitable for retail, office, restaurant premises. (Subject to Planning Approval)

Contact Mark Clark on 028 28 279477 for further details.

Rooms

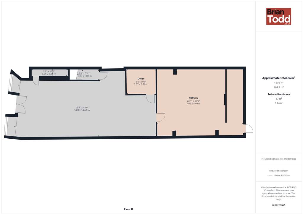
COMMERCIAL UNIT 36' 9" X 18' 6" (11.20m X 5.64m) RETAIL UNIT
Storage 23' 0" X 23' 0" (7.01m X 7.01m)
OFFICE: 23' 3" X 23' 3" (7.09m X 7.09m) Office/Kitchen & WC AREA
Storage Suitable for storage or other uses.

Virtual Tour

Broadband Speed Availability

Ultrafast

Potential Speeds for 18 MAIN STREET

Max Download
1800
Mbps
Max Upload
220
Mbps
The speeds indicated represent the maximum estimated fixed-line speeds as predicted by Ofcom. Please note that these are estimates, and actual service availability and speeds may differ.

Property Location

Show Map

Directions

Larne

Contact Agent

Contact Brian Todd Estate Agents

Contact Brian Todd Estate Agents

Request More Information
Requesting Info about...
18 Main Street, Larne, BT40 1SS 18 Main Street, Larne, BT40 1SS

By registering your interest, you acknowledge our Privacy Policy
Ask Holmes
Ask Holmes
Let's find your next home

Are you sure you want to reset the chat?

Checking API...