Contact Agent

Contact Brian Todd Estate Agents

Contact Brian Todd Estate Agents

2 Bed Townhouse

84 Bank Road

Larne, BT40

monthly £600pm
  • Status For Rent
  • Property Type Townhouse
  • Available From 20/10/2025
  • Bedrooms 2
  • Receptions 1
  • Rates
    Rate information is for guidance only and may change as sources are updated.
    Inc rates
  • Heating OFCH
  • Furnished Part Furnished
  • EPC Rating F29 / E45
EPC Rating

Property Financials

  • Monthly £600pm
  • Rates Inc rates
  • Lease 12 Months

Key Features & Description

CONVENIENT LOCATION, CLOSE TO THE TOWN CENTRE
THREE BEDROOMS
TWO RECEPTION ROOMS
MODERN KITCHEN
OIL FIRE CENTRAL HEATING
Description
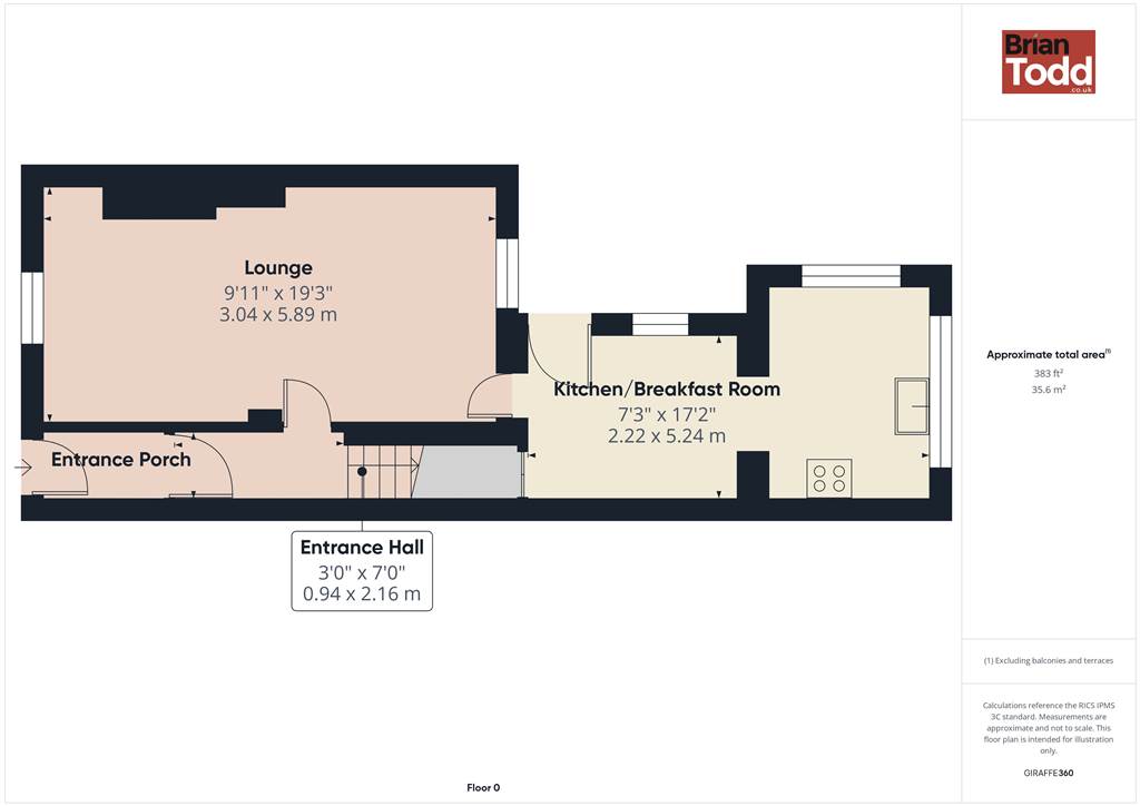
Situated in this popular convenient area of Larne, within easy reach of the Town Centre and all local amenities, this is a two bedroom townhouse.
Well presented throughout the property comprises of two reception rooms, two bedrooms, modern fitted kitchen and bathroom.
Oil Fire central heating.
NO PETS/SMOKERS
AVAILABLE IMMEDIATELY
(Furnishings in photographs are not included with rental)

Virtual Tour

Property Location

Show Map

Directions

Larne

Contact Agent

Contact Brian Todd Estate Agents

Contact Brian Todd Estate Agents

Request More Information
Requesting Info about...
84 Bank Road, Larne, BT40 84 Bank Road, Larne, BT40

By registering your interest, you acknowledge our Privacy Policy