Contact Agent

Contact Michael Chandler Estate Agents

Contact Michael Chandler Estate Agents

4 Bed Detached Bungalow

1 Ascot Park

Knock, Belfast, BT5 6LW

asking price £325,000
  • Status Sale Agreed
  • Property Type Detached Bungalow
  • Bedrooms 4
  • Receptions 1
  • Bathrooms 1
  • Interior Area 957 sqft
  • Heating Gas
  • EPC Rating C69 / C72 -
  • Stamp Duty
    Higher amount applies when purchasing as buy to let or as an additional property
    £6,250 / £22,500*
  • Typical Mortgage
    Click price to use our mortgage calculator
EPC Rating

Key Features & Description

  • A delightful four bedroom detached home located just off the Knock Road in East Belfast
  • Bright and spacious entrance hall with convenient storage cupboard
  • Modern living & dining room complete with a feature fireplace and dual aspect windows
  • Kitchen complete with high and low units, plumbed for white goods and a breakfast counter
  • Three well proportioned double bedrooms on the ground floor - one with built in storage
  • A further spacious double bedroom on the first floor complete with built in wardrobes
  • Luxury family bathroom benefitting from a stylish four piece suite including separate bath & shower
  • Gas fired central heating and double glazed throughout
  • Spacious front garden laid in lawn with beautiful mature shrubs
  • Rear garden laid in lawn with patio area to the side - allowing a perfect space to relax
  • Detached garage with light, power and roller door - perfect for additional storage options
  • Off street parking to the rear of the property access via Knock Road
  • Within catchment to a range of leading primary and secondary schools in the area
  • Excellent transport links to and from Belfast city centre nearby
  • A fantastic ranger of local amenities including bars, cafés and restaurants just a short walk away
  • Description
    A superb four-bedroom detached chalet bungalow offering versatile accommodation, beautifully maintained gardens, and an enviable location just off the Knock Road. This property is sure to appeal to a range of buyers including families and downsizers alike seeking a home with space, character, and convenience in East Belfast.

    As you step inside the home you are greeted by a bright and welcoming hallway with a useful storage cupboard. The spacious living and dining room is the heart of the home, featuring dual aspect windows that flood the space with natural light and a beautiful feature fireplace - perfect for family gatherings or entertaining guests. The kitchen is fitted with a range of high and low level units, complete with breakfast bar, and is plumbed for white goods - ideal for modern family living. Three well-proportioned double bedrooms are located on the ground floor, one benefiting from built-in storage and a stylish family bathroom boasts a contemporary four-piece suite, including a separate bath and shower. A spiral staircase leads to the first floor, where a further double bedroom with built-in storage provides an ideal space for a guest room, home office, or teenager´s retreat.

    Outside, the property enjoys extensive gardens laid in lawn to the front complemented by mature shrubs with a spacious garden laid in lawn and patio area to the rear providing the perfect setting for outdoor dining with friends and family. The detached garage offers excellent storage or workshop potential and with off street parking to the rear, this home caters perfectly to family living.

    As far as location goes, it genuinely does not get much better, you are within walking distance of Ballyhackamore and Stormont and you are within the catchment area for some of the provinces leading schools with excellent transport links are also nearby.

    Your Next Move...

    Thinking of selling, it would be a pleasure to offer you a FREE VALUATION of your property.

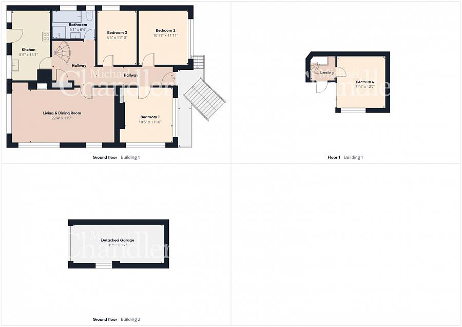
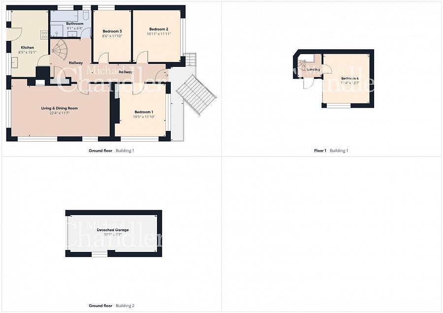
    Rooms

    Entrance Hall
    Living & Dining Room 22'4 X 11'7 (6.81m X 3.53m)
    Kitchen 8'5 X 15'1 (2.57m X 4.60m)
    Bedroom 1 10'5 X 11'10 (3.18m X 3.61m)
    Bedroom 2 10'11 X 11'11 (3.33m X 3.63m)
    Bedroom 3 8'6 X 11'10 (2.59m X 3.61m)
    Bathroom 9'1 X 11'10 (2.77m X 3.61m)
    Landing
    Bedroom 4 11'4 X 12'7 (3.45m X 3.84m)
    Detached Garage 19'9 X 8'7 (6.02m X 2.62m)
    Michael Chandler Estate Agents have endeavoured to prepare these sales particulars as accurately and reliably as possible for the guidance of intending purchasers or lessees. These particulars are given for general guidance only and do not constitute any part of an offer or contract. The seller and agents do not give any warranty in relation to the property. We would recommend that all information contained in this brochure is verified by yourself or your professional advisors. Services, fittings and equipment referred to in the sales details have not been tested and no warranty is given to their condition, nor does it confirm their inclusion in the sale. All measurements contained within this brochure are approximate.
    As an estate agency, we are required to verify the identity of both the vendor and the purchaser in accordance with Money Laundering Regulations 2017. In order to purchase a property in the United Kingdom, all agents have a legal obligation to conduct identity checks on all customers involved in the transaction to comply with Anti-Money Laundering regulations.
    We outsource these checks to a third-party provider and a charge of £20 + VAT per person will apply for this service.

    Virtual Tour

    Broadband Speed Availability

    Ultrafast

    Potential Speeds for 1 Ascot Park

    Max Download
    1800
    Mbps
    Max Upload
    220
    Mbps
    The speeds indicated represent the maximum estimated fixed-line speeds as predicted by Ofcom. Please note that these are estimates, and actual service availability and speeds may differ.

    Property Location

    Show Map

    Mortgage Calculator

    Disclaimer: The following calculations act as a guide only, and are based on a typical repayment mortgage model. Financial decisions should not be made based on these calculations and accuracy is not guaranteed. Always seek professional advice before making any financial decisions.

    Contact Agent

    Contact Michael Chandler Estate Agents

    Contact Michael Chandler Estate Agents

    Request More Information
    Requesting Info about...
    1 Ascot Park, Knock, Belfast, BT5 6LW 1 Ascot Park, Knock, Belfast, BT5 6LW

    By registering your interest, you acknowledge our Privacy Policy
    Ask Holmes
    Ask Holmes
    Let's find your next home

    Are you sure you want to reset the chat?

    Checking API...