Contact Agent
Contact John Minnis Estate Agents (Donaghadee)
5 Bed House
59C Gransha Road
Kircubbin, Newtownards, BT22 1AJ
offers around
£584,950
Key Features & Description
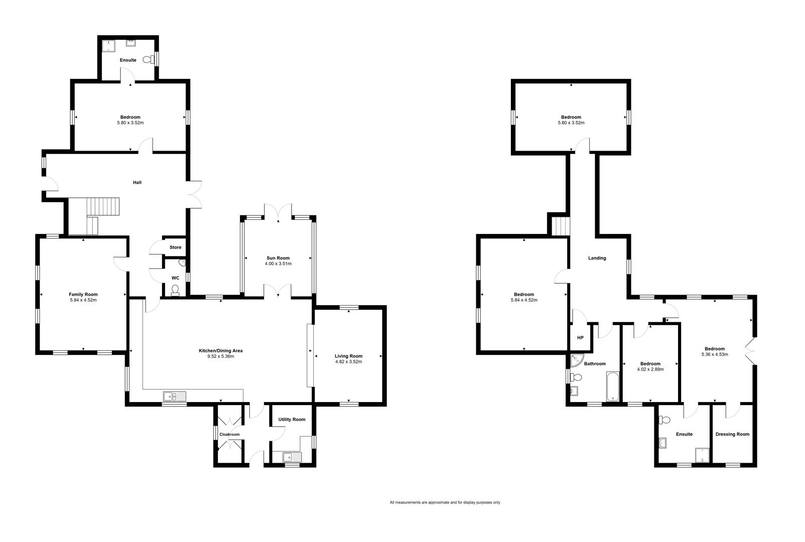
Outstanding Detached Family Home of Around 3,200 Square Feet
Idyllic Semi Rural Site of Around an Acre with Picturesque Country Aspect
Approached via Private Laneway where Only a Handful of Properties are Accessed
Excellent Degree of Privacy
Versatile and Flexible Accommodation
Living Room with Solid Oak Floor, Attractive Polished Limestone Fireplace and Open Fire
Superb Modern Fitted Kitchen Open Plan to Casual Dining/Family Area
Family Room with Feature Vaulted Ceiling and Cast Iron Wood Burning Stove on Brick Recess
Sun Room with Feature Vaulted Ceiling and French Doors onto the Garden
Utility Room
Five Well Proportioned Bedrooms Including Bedroom One with Dressing Room, En Suite Shower Room and French Doors Leading to Minstrel Gallery Overlooking Family Room
Ground Floor Guest Bedroom with En Suite Wet Room
First Floor Bathroom with Four Piece White Suite to Include Bath and Separate Shower
Ground Floor WC
Oil Fired Central Heating
ouPVC Double Glazed Windows, Guttering and Soffits
Solar Panels- Battery operated - located in the workshop
Pressurised Water System
Mature Gardens in Lawns with Vast Array of Colourful Flowers, Plants, Trees and Shrubs
Picturesque Outlook and Excellent Degree of Privacy
Rear Garden with South Westerly Aspect Making an Ideal Space for Children at Play or Outdoor Entertaining
Driveway and Parking Facilities with Space for Numerous Vehicles to Include Cars, Caravans, Boats and Horse Boxes, etc
Large Workshop with Two Roller Shutter Doors, Ideal Space to Run a Business from or Refurbishing Boats and Vehicles, etc
Ballyhalbert, Greyabbey and Kircubbin Easily Accessible
Picturesque Country Views can be Enjoyed from Ground Floor, First Floor Level and Externally
o*Please note that some images in this listing have been virtually staged using AI for Illustrative purposes.
Description
Occupying an idyllic semi-rural site of around an acre, this substantial detached family home extends to approximately 3,200 sq ft and is finished to an exceptional standard, leaving little to do but move in and enjoy. Tucked away down a private laneway shared by only a handful of properties, the setting offers a picturesque country aspect, excellent privacy, and convenient access to Kircubbin, Ballyhalbert, and the scenic coast road.
The accommodation is bright, spacious, and flexible across two floors. The ground floor includes a welcoming living room with solid oak flooring, a polished limestone fireplace, and open fire. A superb modern fitted kitchen opens into a casual dining and family area, while a separate family room features a large cast iron wood-burning stove set in a brick recess. There is also a sun room with a striking vaulted ceiling, plus a guest bedroom with en suite shower room.
Upstairs, a spacious landing with solid oak flooring incorporates a study area. There are four well-proportioned bedrooms, including a main bedroom with dressing room, en suite shower room, and French doors leading to a minstrel gallery overlooking the family room. A fully tiled bathroom includes a four-piece suite with panelled bath and separate shower cubicle. Additional features include oil-fired central heating, uPVC double glazing, a downstairs WC, utility room, boot room, and pressurised water system.
Externally, mature gardens are beautifully maintained with lawns, colourful planting, and a high degree of privacy. An extensive timber decked terrace provides the perfect spot to enjoy the stunning views, while the south-westerly facing rear garden is ideal for children, entertaining, or relaxing outdoors. A loose stone driveway offers ample parking for multiple vehicles, caravans, boats, or horse boxes, and leads to a large workshop with two roller doors, loft storage, office, and toilet-ideal for business use or hobby projects. Early viewing is highly recommended.
Occupying an idyllic semi-rural site of around an acre, this substantial detached family home extends to approximately 3,200 sq ft and is finished to an exceptional standard, leaving little to do but move in and enjoy. Tucked away down a private laneway shared by only a handful of properties, the setting offers a picturesque country aspect, excellent privacy, and convenient access to Kircubbin, Ballyhalbert, and the scenic coast road.
The accommodation is bright, spacious, and flexible across two floors. The ground floor includes a welcoming living room with solid oak flooring, a polished limestone fireplace, and open fire. A superb modern fitted kitchen opens into a casual dining and family area, while a separate family room features a large cast iron wood-burning stove set in a brick recess. There is also a sun room with a striking vaulted ceiling, plus a guest bedroom with en suite shower room.
Upstairs, a spacious landing with solid oak flooring incorporates a study area. There are four well-proportioned bedrooms, including a main bedroom with dressing room, en suite shower room, and French doors leading to a minstrel gallery overlooking the family room. A fully tiled bathroom includes a four-piece suite with panelled bath and separate shower cubicle. Additional features include oil-fired central heating, uPVC double glazing, a downstairs WC, utility room, boot room, and pressurised water system.
Externally, mature gardens are beautifully maintained with lawns, colourful planting, and a high degree of privacy. An extensive timber decked terrace provides the perfect spot to enjoy the stunning views, while the south-westerly facing rear garden is ideal for children, entertaining, or relaxing outdoors. A loose stone driveway offers ample parking for multiple vehicles, caravans, boats, or horse boxes, and leads to a large workshop with two roller doors, loft storage, office, and toilet-ideal for business use or hobby projects. Early viewing is highly recommended.
Rooms
Reception hall
Front door with double glazed inset and double glazed side panel to bright and spacious reception hall.
uPVC double glazed French doors to timber decked terrace, fully tiled floor, vaulted ceiling, cloakroom with built in cupboard storage
uPVC double glazed French doors to timber decked terrace, fully tiled floor, vaulted ceiling, cloakroom with built in cupboard storage
Downstairs WC
Two piece white suite comprising low flush WC, wash hand basin with mixer tap, storage beneath, fully tiled floor, extractor fan.
Bedroom Two 19'0" X 11'6" (5.80m X 3.52m)
Picturesque country views.
En Suite Shower Room
Three piece suite comprising large shower cubicle, pedestal wash hand basin with mixer tap, low flush WC, fully tiled floor, part tiled walls, extractor fan.
En Suite Shower Room
Three piece suite comprising large shower cubicle, pedestal wash hand basin with mixer tap, low flush WC, fully tiled floor, part tiled walls, extractor fan.
Family Room 19 X 14'10 (5.79m X 4.52m)
Solid oak floor, attractive fireplace surround, cast iron inset, slate hearth, open fire.
Kitchen/Dining Area 31'2" X 17'7" (9.52m X 5.36m)
Range of high and low level Shaker style units, laminate work surfaces, double bowl sink unit with mixer tap, recess and plumbed for ice dispensing fridge freezer, integrated Neff double oven, integrated Neff microwave, integrated dishwasher, larder cupboard, large island unit with additional storage cupboards, quartz work surfaces, Neff five ring induction hob, draw-down extractor fan, breakfast bar, fully tiled floor, glass display cabinets with built-in lighting, open plan to family room.
Living Room 15'9" X 11'6" (4.82m X 3.52m)
Laminate wood effect floor, Mourne cast iron wood burning stove, brick recess, slate hearth, wooden sleeper mantel, picturesque country views, feature vaulted ceiling.
Sun Room 13'1" X 11'6" (4.00m X 3.51m)
Stunning country views, fully tiled floor, uPVC double glazed French doors to outside.
Rear Hall
Fully tiled floor, door to outside.
Boot Room
With storage and boiler.
Utility Room
Range of high and low level storage cupboards, granite effect work surfaces, single bowl single drainer stainless steel sink unit with mixer tap, plumbed for washing machine, space for tumble dryer, fully tiled floor, extractor fan.
oak staircase to first floor
Landing
Bright and spacious landing with solid oak floor, study area, shelved airing cupboard with pressurised water system.
Bedroom One 17'7" X 14'10" (5.36m X 4.53m)
French doors and Juliet balcony overlooking the family room, stunning country views.
En Suite Shower Room
Three piece suite comprising built-in fully tiled shower cubicle, wash hand basin with mixer tap, tiled splashback, storage beneath, low flush WC, fully tiled floor, extractor fan.
Dressing Room With built-in shelving and hanging rails.
En Suite Shower Room
Three piece suite comprising built-in fully tiled shower cubicle, wash hand basin with mixer tap, tiled splashback, storage beneath, low flush WC, fully tiled floor, extractor fan.
Dressing Room With built-in shelving and hanging rails.
Bedroom Four 13'2" X 9'5" (4.02m X 2.89m)
Picturesque country views
Bedroom Three 19'1" X 14'9" (5.84m X 4.52m)
Picturesque country views
Bedroom Five 19'0" X 11'6" (5.80m X 3.52m)
Access to roofspace.
Bathroom
Four piece suite comprising tiled panelled bath, separate built-in fully tiled shower cubicle, pedestal wash hand basin, mixer tap, low flush WC, fully tiled floor, fully tiled walls, chrome heated towel rail, extractor fan.
Outside
Idyllic semi rural country site of around an acre with mature gardens in lawns, vast array of colourful flowers, plants, trees and shrubs, picturesque country views, excellent degree of privacy, extensive timber decked terrace to take in the stunning views. The rear garden has a south westerly aspect making it the ideal space for children at play or outdoor entertaining. Driveway in loose stones with ample parking for cars, caravans, boats and horse boxes, etc, leading to additional parking area in loose stones with more parking for cars, caravans, boats and horse boxes, etc, and workshop.
Workshop 48'4 X 30'10 (14.73m X 9.40m)
Two large roller doors, power and light, loft storage, work bench, office and WC with low flush WC, wash hand basin, fully tiled floor and extractor fan. An ideal space to run a business from or for those who have an interest in refurbishing boats or vehicles, etc
Kircubbin is a small village on the shores of Strangford Lough in County Down, Northern Ireland, offers a peaceful and scenic lifestyle. The village has a close-knit community feel, with friendly locals and a slower pace of life. Surrounded by beautiful countryside and coastal views, it's ideal for those who enjoy nature and outdoor activities. Despite its rural charm, Kircubbin has essential amenities like shops, cafes, and schools, and it's within reasonable distance of larger towns for commuting or additional services.
Broadband Speed Availability
Potential Speeds for 59C Gransha Road
Max Download
1800
Mbps
Max Upload
220
MbpsThe speeds indicated represent the maximum estimated fixed-line speeds as predicted by Ofcom. Please note that these are estimates, and actual service availability and speeds may differ.
Property Location
Mortgage Calculator
Contact Agent
Contact John Minnis Estate Agents (Donaghadee)
Request More Information
Requesting Info about...
59C Gransha Road, Kircubbin, Newtownards, BT22 1AJ
By registering your interest, you acknowledge our Privacy Policy
By registering your interest, you acknowledge our Privacy Policy