Contact Agent
Contact Tim Martin & Co (Comber)
4 Bed Townhouse
83 The Old Mill
Killyleagh, BT30 9GZ
offers around
£155,000
Key Features & Description
Spacious 3 Storey Townhouse Situated in the Heart of Killyleagh Village and Close to Strangford Lough
Four Excellent Sized Bedrooms Including the Principal Bedroom Ensuite
Two Reception Rooms
Fitted Kitchen with Casual Dining Area and Separate Utility Room
Bathroom Fitted with a White Suite
Oil Fired Central Heating and Double Glazing
Easily Maintained Rear Garden Providing Excellent Entertaining Space
Within Walking Distance to Many Local Amenities, Public Transport and Strangford Lough
Convenient Commuting Distance to Downpatrick, Ballynahinch, Newtownards and Belfast
Perfect for the First Time Buyer, Families or Those Wanting a Holiday Home
Description
Situated in the heart of Killyleagh village, this spacious 3 storey townhouse is ideal for the first time buyer, families or those wanting a holiday home close to the shores of Strangford Lough.
The property, fitted with oil fired central heating and double glazing, boasts a flexible layout with the ground floor comprising of a lounge, which is open through to the kitchen with casual dining and a utility room. The first floor enjoys a further living room and principal bedroom with an ensuite shower room, whilst the third floor boasts three further bedrooms and a bathroom fitted with a white suite.
Outside, the rear garden allows for excellent entertaining space.
Many local boutiques, coffee shops and restaurants are all within walking distance as too is public transport and the local primary school. Strangford Lough boasts a wealth of water sports and beautiful coastal walks, whilst Delamont Country Park is only a short distance away - perfect for a family day out! Downpatrick, Newtownards, and Belfast are all within a convenient commute, making this the ideal location for many.
Situated in the heart of Killyleagh village, this spacious 3 storey townhouse is ideal for the first time buyer, families or those wanting a holiday home close to the shores of Strangford Lough.
The property, fitted with oil fired central heating and double glazing, boasts a flexible layout with the ground floor comprising of a lounge, which is open through to the kitchen with casual dining and a utility room. The first floor enjoys a further living room and principal bedroom with an ensuite shower room, whilst the third floor boasts three further bedrooms and a bathroom fitted with a white suite.
Outside, the rear garden allows for excellent entertaining space.
Many local boutiques, coffee shops and restaurants are all within walking distance as too is public transport and the local primary school. Strangford Lough boasts a wealth of water sports and beautiful coastal walks, whilst Delamont Country Park is only a short distance away - perfect for a family day out! Downpatrick, Newtownards, and Belfast are all within a convenient commute, making this the ideal location for many.
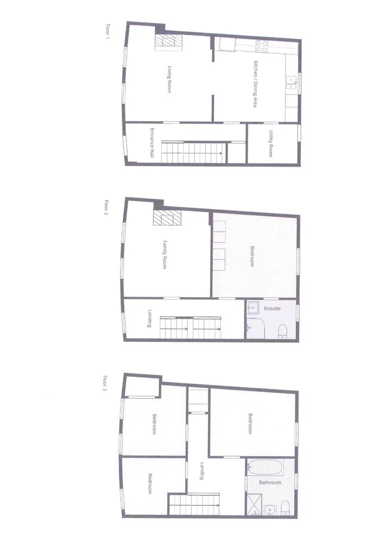
Rooms
Entrance Hall
Tiled floor; under stairs storage cupboard.
Lounge 13'8 X 13'3 (4.17m X 4.04m)
Painted wood fire surround; tiled hearth; wooden floor; recessed spotlights; open through to:-
Kitchen 13'3 X 12'1 (4.04m X 3.68m)
Good range of wood laminate high and low level cupboards and drawers incorporating 1½ tub stainless steel sink unit with mixer tap; integrated electric under oven with 4 ring ceramic hob; extractor hood over; granite worktops; tiled splashback; wooden floor; recessed spotlights.
Utility Room 7'7 X 6'1 (2.31m X 1.85m)
Space and plumbing for washing machine; tiled floor.
First Floor / Landing
Living Room 15'1 X 13'5 (4.60m X 4.09m)
Painted wood fire surround; tiled hearth; tv and telephone connection points.
Bedroom 1 13'2 X 11'2 (4.01m X 3.40m)
En Suite Shower Room 7'7 X 6'1 (2.31m X 1.85m)
White suite comprising tiled shower cubicle with Triton electric shower unit and wall mounted telephone shower attachment; wall mounted wash hand basin with mono mixer tap and vanity unit under; close coupled wc.
Second Floor / Landing
Access to roofspace; hotpress with insulated copper cylinder.
Bedroom 2 9'11 X 9'5 (3.02m X 2.87m)
(maximum measurements)
Bedroom 3 9'11 X 9'11 (3.02m X 3.02m)
Built-in wardrobes with cupboards over.
Bedroom 4 13'2 X 10'5 (4.01m X 3.18m)
Bathroom 7'9 X 7'3 (2.36m X 2.21m)
White suite comprising panelled bath with mixer tap; tiled shower cubicle with thermostatically controlled shower unit; pedestal wash hand basin with mono mixer tap; close coupled wc; part tiled walls; tiled floor; recessed spotlights.
Outside
Decorative gravelled area; patio area; enclosed oil fired boiler; Pvc oil storage tank.
Capital Rateable Value
£135,000. Rates Payable = £1371.06 per annum (approx)
Tenure
Freehold
Broadband Speed Availability
Potential Speeds for 83 The Old Mill
Max Download
1800
Mbps
Max Upload
300
MbpsThe speeds indicated represent the maximum estimated fixed-line speeds as predicted by Ofcom. Please note that these are estimates, and actual service availability and speeds may differ.
Property Location
Mortgage Calculator
Contact Agent
Contact Tim Martin & Co (Comber)
Request More Information
Requesting Info about...
83 The Old Mill, Killyleagh, BT30 9GZ
By registering your interest, you acknowledge our Privacy Policy
By registering your interest, you acknowledge our Privacy Policy