Cuan Hills Farm, 39 Killinakin Road
Killinchy, BT23 6PS
offers around
£875,000
Key Features & Description
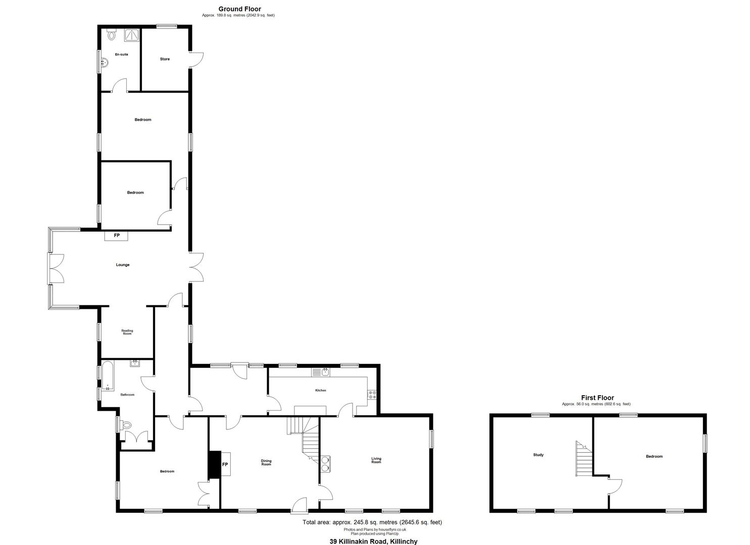
Excellent Opportunity to Acquire this Country Residence, Range of Outbuildings Set in its Own Grounds Extending to Circa 23.95 Acres
Three Beautifully Appointed Reception Rooms Plus Home Office
Three Bedrooms (Including Principal Bedroom Ensuite) on the Ground Floor and Two on the First Floor
Fitted Kitchen and Family Bathroom
Oil Fired Central Heating and Partial Double Glazing and Partial Original Sash Windows
Range of Outbuildings to Include Stables, Stores, Office and Workshop
Agricultural Lands Extending to Approximately 22 Acres or Thereabouts
Spacious Gardens and Patio Area with Views Over the Surrounding Countryside and Strangford Lough
Close To Killinchy and Balloo with Ease of Access to Downpatrick and Belfast
Excellent Choice of Local Primary and Secondary Schools Close By
Description
An excellent opportunity to acquire this spacious detached country residence with a good range of outbuildings / stabling set in its own grounds extending to 23.95 acres or thereabouts.
The residence occupies an elevated site which enjoys superb views over the surrounding countryside and Strangford Lough. Internally the property does require modernisation, however, provides the opportunity to create your own dream home in this beautiful rural setting. The ground floor comprises of a welcoming reception hall leading to the spacious lounge, dining room and kitchen. The side hallway makes way to three excellent sized bedrooms including the principal bedroom with an ensuite shower room, a family bathroom, home office, and a beautifully appointed drawing room with double doors opening out to the gardens. Upstairs, there are two further bedrooms.
Outside, the courtyard comprises of a range of outbuildings to include a range of stables, stores, office, workshop and machinery shed. The agricultural lands enjoy access from the courtyard and Killinakin Road. Gardens are laid out in lawn with a paved patio area with fabulous views of Strangford Lough.
Enjoying this enviable rural location, this superb property is situated close to Killinchy and Balloo, where you can indulge in the renowned Balloo House pub and restaurant, Crafty Fox gift shop and McCanns general store. An excellent choice of schools are serviced by public transport at Balloo, serving schools in the local towns and East Belfast with renowned Killinchy Primary a short drive away.
An excellent opportunity to acquire this spacious detached country residence with a good range of outbuildings / stabling set in its own grounds extending to 23.95 acres or thereabouts.
The residence occupies an elevated site which enjoys superb views over the surrounding countryside and Strangford Lough. Internally the property does require modernisation, however, provides the opportunity to create your own dream home in this beautiful rural setting. The ground floor comprises of a welcoming reception hall leading to the spacious lounge, dining room and kitchen. The side hallway makes way to three excellent sized bedrooms including the principal bedroom with an ensuite shower room, a family bathroom, home office, and a beautifully appointed drawing room with double doors opening out to the gardens. Upstairs, there are two further bedrooms.
Outside, the courtyard comprises of a range of outbuildings to include a range of stables, stores, office, workshop and machinery shed. The agricultural lands enjoy access from the courtyard and Killinakin Road. Gardens are laid out in lawn with a paved patio area with fabulous views of Strangford Lough.
Enjoying this enviable rural location, this superb property is situated close to Killinchy and Balloo, where you can indulge in the renowned Balloo House pub and restaurant, Crafty Fox gift shop and McCanns general store. An excellent choice of schools are serviced by public transport at Balloo, serving schools in the local towns and East Belfast with renowned Killinchy Primary a short drive away.
Rooms
Entrance Hall 13'4 X 8'4 (4.06m X 2.54m)
Glazed hardwood entrance door; tiled floor.
Lounge 16'1 X 15'8 (4.90m X 4.78m)
Maximum Measurements
Inglenook style fireplace with wood burning stove on a slate hearth.
Inglenook style fireplace with wood burning stove on a slate hearth.
Dining Room 19'4 X 16'2 (5.89m X 4.93m)
Oil fired AGA; wood strip floor; bullseye spot lighting.
Kitchen 19'0 X 7'10 (5.79m X 2.39m)
Good range of high and low level cupboards and drawers incorporating a 1½ tub stainless steel sink unit with mixer taps; space for electric cooker; fridge; space and plumbing for washing machine and tumble dryer; laminate worktops.
Side Hallway
Leading to:-
Bedroom 1 17'3 X 15'5 (5.26m X 4.70mLShaped)
Built in wardrobes with cupboards over.
Bathroom 12'9 X 9'1ma (3.89m X 2.77ma)
White suite comprising tongue and groove panelled bath; pedestal wash hand basin; low flush WC; part tongue and groove panelled walls; recessed spot lighting; hotpress with lagged copper cylinder; wiring for wall lights.
Living Room 23'6 X 13'0 (7.16m X 3.96m)
Inglenook style fireplace; slate hearth; glazed doors to gardens; built in shelving; through to:-
Snug / Office 9'10 X 5'10 (3.00m X 1.78m)
Bedroom 2 12'1 X 11'11 (3.68m X 3.63m)
Bedroom 3 15'7 X 11'10 (4.75m X 3.61m)
Built in storage cupboard.
En Suite Shower Room 11'0 X 6'9 (3.35m X 2.06m)
White suite comprising separate shower cubicle with Mira Go electric shower unit and wall mounted telephone shower attachement; low flush WC; pedestal wash hand basin; towel radiator; part tongue and groove wall panelling.
Stairs to First Floor / Landing
Study / Bedroom 5 17'6 X 16'7 (5.33m X 5.05m)
Maximum Measurements
Access to under eaves storage; pine wood strip floor; Velux windows.
Access to under eaves storage; pine wood strip floor; Velux windows.
Bedroom 4 19'7 X 16'5 (5.97m X 5.00m)
Pine wood strip floor; Velux window.
Outside
Stone entrance pillars and driveway leading to the rear of the house and to the courtyard with a range of outbuildings to include:-
Barn
Comprising of:-
Stable 1 13'0 X 7'9 (3.96m X 2.36m)
Light point.
Stable 2 13'0 X 7'9 (3.96m X 2.36m)
Light point.
Stable 3 13'0 X 7'9 (3.96m X 2.36m)
Light point.
Stable 4 13'0 X 11'7 (3.96m X 3.53m)
Light point.
Loft Over
Store 15'9 X 13'9 (4.80m X 4.19m)
Wood Store 18'2 X 14'1 (5.54m X 4.29m)
Light point and power points.
Store 14'6 X 11'5 (4.42m X 3.48m)
Oil fired boiler; oil storage tank; light and power points.
Office 10'11 X 7'5 (3.33m X 2.26m)
Maximum Measurements
Light and power points; telephone connection point.
Light and power points; telephone connection point.
Store 17'7 X 8'10 (5.36m X 2.69m)
Average Measurements
Barn / Worshop 30'3 X 27'4 (9.22m X 8.33m)
Concrete floor; light and power points; side access.
Open Fronted Machinery Shed 49'6 X 26'0 (15.09m X 7.92m)
Gardens
Mature gardens laid out in lawn and planted with a wonderful selection of ornamental and flowering shrubs and mature trees; paved patio area; stunning views over Strangford Lough; outside lights and water tap.
Agricultural Lands
The agricultural lands are into convenient sized fields and are laid down to grass and are thought suitable for cutting and / or grazing. The lands can be accssed from the courtyard and Killinakin Road.
Capital / Rateable Value
£400,000. Rates Payable = £3815.00 Per Annum (Approx)
Broadband Speed Availability
Potential Speeds for 39 Killinakin Road
Max Download
1000
Mbps
Max Upload
300
MbpsThe speeds indicated represent the maximum estimated fixed-line speeds as predicted by Ofcom. Please note that these are estimates, and actual service availability and speeds may differ.
Property Location
Mortgage Calculator
Contact Agent
Contact Tim Martin & Co (Comber)
Request More Information
Requesting Info about...
Cuan Hills Farm, 39 Killinakin Road, Killinchy, BT23 6PS
By registering your interest, you acknowledge our Privacy Policy
By registering your interest, you acknowledge our Privacy Policy