5 Bed Detached House
65C Kilgad Road
Kells, BT42 3HX
offers over
£495,000
- Status For Sale
- Property Type Detached
- Bedrooms 5
- Receptions 2
- Bathrooms 3
- Interior Area 2700 sqft
- Heating Oil & Underfloor Heating
-
Stamp Duty
Higher amount applies when purchasing as buy to let or as an additional property£14,750 / £39,500*
Key Features & Description
New Build Detached Home (c.2,700 Sq Ft)
Adaptable & Generous Accommodation
5 Bed; 2+ Rec or 4 Bed; 3+ Rec
£41,000 Allowance Towards Turnkey Specification
Open Plan Kitchen Through Living / Dining
Family Bathroom; Two En Suite; Furnished Cloakroom
Oil Heating; Underfloor Heating To Both Floors
PV Solar Panels With Battery Storage
Private Driveway; Matching Detached Garage
Gardens Top Soiled & Seeded; Rural Aspect
Description
Opportunity to purchase one (of only two), impressive, detached, new build, family homes, extending to c.2,700 sq ft, plus large matching detached garage, occupying a generous sized site enjoying rural aspects, situated off the Kilgad Road, Kells, Ballymena.
The property will be finished to a generous turnkey specification to include a PC sum of £41,000 towards kitchen, utility room, sanitary ware, floor coverings, and tiling.
Offering adaptable accommodation, the property will comprise entrance hall, lounge with wood burning/gas stove, separate family room/bedroom five, large open plan kitchen through living / dining room with open arch into sun lounge with wood burning/gas stove, utility room, furnished cloakroom, four well proportioned first floor bedrooms, to include principal and guest bedrooms both with en suite shower room, and separate family bathroom with four piece suite.
Externally the property enjoys a generous sized private driveway area finished in bitmac, large matching detached garage, front garden area top soiled and seeded for lawn, and large rear garden top soiled and seeded for lawn with a paved patio area.
Other attributes include oil fired central heating with Wi-Fi enabled heating controls (underfloor heating to ground and first floor), PVC double glazing, PV solar panels with battery storage, and rural aspects front and rear.
Early viewing highly recommended to avoid disappointment.
Opportunity to purchase one (of only two), impressive, detached, new build, family homes, extending to c.2,700 sq ft, plus large matching detached garage, occupying a generous sized site enjoying rural aspects, situated off the Kilgad Road, Kells, Ballymena.
The property will be finished to a generous turnkey specification to include a PC sum of £41,000 towards kitchen, utility room, sanitary ware, floor coverings, and tiling.
Offering adaptable accommodation, the property will comprise entrance hall, lounge with wood burning/gas stove, separate family room/bedroom five, large open plan kitchen through living / dining room with open arch into sun lounge with wood burning/gas stove, utility room, furnished cloakroom, four well proportioned first floor bedrooms, to include principal and guest bedrooms both with en suite shower room, and separate family bathroom with four piece suite.
Externally the property enjoys a generous sized private driveway area finished in bitmac, large matching detached garage, front garden area top soiled and seeded for lawn, and large rear garden top soiled and seeded for lawn with a paved patio area.
Other attributes include oil fired central heating with Wi-Fi enabled heating controls (underfloor heating to ground and first floor), PVC double glazing, PV solar panels with battery storage, and rural aspects front and rear.
Early viewing highly recommended to avoid disappointment.
Rooms
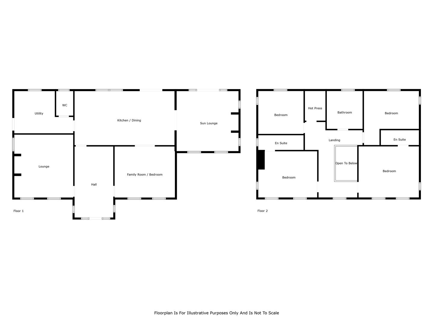
ACCOMMODATION
ENTRANCE HALL
Composite, double glazed front entrance door with twin PVC double glazed side screens. Dual aspect windows. Open string stairwell with oak treads and handrail, leading to first floor.
LOUNGE 16'3" X 15'6" (4.97m X 4.73m)
Recess for wood burning or gas stove. Dual aspect windows with twin windows to front elevation.
FAMILY ROOM / BEDROOM 5 15'7" X 13'2" (4.75m X 4.03m)
Twin windows to front elevation. Access into:
KITCHEN THROUGH DINING ROOM 26'4" X 14'1" (8.03m X 4.30m)
PVC double glazed French patio doors to rear garden. Open arch into:
SUN LOUNGE 15'8" X 14'8" (4.78m X 4.48m)
Recess for wood burning or gas stove. Dual aspect windows with twin windows to front elevation. PVC double glazed French patio doors with matching side screens leading to rear garden.
UTILITY ROOM 15'5" X 11'4" (wps) (4.71m X 3.46m (wps))
Composite, double glazed door leading to driveway.
FURNISHED CLOAKROOM
Plumbed for white two piece suite.
FIRST FLOOR
GALLERY STYLE LANDING
Access to roof space and large hot press store.
PRINCIPAL BEDROOM 15'7" X 13'4" (4.75m X 4.07m)
Dual aspect windows with twin windows to front elevation enjoying rural views.
EN SUITE SHOWER ROOM 9'11" X 3'10" (3.03m X 1.19m)
Plumbed for three piece suite comprising shower enclosure, wash hand basin and WC.
GUEST BEDROOM 15'5" X 12'0" (wps) (4.71m X 3.68m (wps))
Dual aspect windows with twin windows to front elevation enjoying rural views.
EN SUITE SHOWER ROOM 11'10" X 3'9" (3.63m X 1.15m)
Plumbed for three piece suite comprising shower enclosure, wash hand basin and WC.
BEDROOM 3 14'4" X 14'4" (wps) (4.38m X 4.38m (wps))
Dual aspect windows enjoying rural views.
BEDROOM 4 11'10" X 11'4" (3.63m X 3.47m)
Dual aspect windows enjoying rural views.
FAMILY BATHROOM 10'0" X 9'7" (3.07m X 2.93m)
Plumbed for four piece suite comprising panelled bath, separate shower enclosure, wash hand basin and WC.
EXTERNAL
Twin pillars leading to generous sized private driveway area finished in bitmac.
Front garden area top soiled and seeded for lawn.
Large rear garden top soiled and seeded for lawn with paved patio area.
Rural aspects front and rear.
PVC oil storage tank.
PV Solar panels with battery storage.
External lighting.
Hot and cold outside taps.
Front garden area top soiled and seeded for lawn.
Large rear garden top soiled and seeded for lawn with paved patio area.
Rural aspects front and rear.
PVC oil storage tank.
PV Solar panels with battery storage.
External lighting.
Hot and cold outside taps.
LARGE DETACHED MATCHING GARAGE 19'8" X 16'2" (6.00m X 4.93m)
PVC coated roller shutter door to front. Separate PVC service door. Oil fired central heating boiler. Light and power.
SPECIFICATION
KITCHEN AND UTILITY ROOM
Generous PC sum of £20,000 to choose your luxury kitchen and utility from Nobel Kitchens. Space for freestanding appliances in utility room.
BATHROOM, EN SUITE & FURNISHED CLOAKROOM
Generous PC sum of £6,000 has been allowed to use with any sanitary ware supplier of your choice.
FLOOR COVERING & TILING
Generous PC sum of £15,000 has been allowed to select your own tile and carpet options.
ELECTRICAL
Comprehensive range of electrical outlets.
TV points in lounge, kitchen / dining and principal bedroom.
CAT5e point to lounge and bedrooms.
Smoke, heat and carbon monoxide detectors.
Prewired for security alarm and broadband.
Downlighters in kitchen, bathroom and ensuite.
Cabling installed to entrance to enable you to fit your own electric gates.
TV points in lounge, kitchen / dining and principal bedroom.
CAT5e point to lounge and bedrooms.
Smoke, heat and carbon monoxide detectors.
Prewired for security alarm and broadband.
Downlighters in kitchen, bathroom and ensuite.
Cabling installed to entrance to enable you to fit your own electric gates.
HEATING
Oil fired heating system with Wi-Fi enabled heating controls.
Underfloor heating to both ground and first floor.
MVHR - Heat recovery system.
Underfloor heating to both ground and first floor.
MVHR - Heat recovery system.
INTERNAL FEATURES
Wood burning stove and gas stove supplied.
Solid internal doors with quality ironmongery.
White open string stairwell with oak treads and handrail.
Insulated to new building standards with extremely high SAP ratings.
Solid internal doors with quality ironmongery.
White open string stairwell with oak treads and handrail.
Insulated to new building standards with extremely high SAP ratings.
EXTERNAL FEATURES
Composite front and rear doors.
UPVC double glazed windows.
Bitmac driveways.
Front and rear gardens seeded.
Timber fencing side and rear.
Feature external lighting to front door.
Rear outside hot and cold water supply.
Paved patio area.
Metal estate fencing to the front of the dwellings.
PV Solar panels with battery storage.
UPVC double glazed windows.
Bitmac driveways.
Front and rear gardens seeded.
Timber fencing side and rear.
Feature external lighting to front door.
Rear outside hot and cold water supply.
Paved patio area.
Metal estate fencing to the front of the dwellings.
PV Solar panels with battery storage.
BUILDING WARRANTY
Each home will be issued with an NHBC 10 year warranty certificate giving quality assurance to homeowners.
IMPORTANT NOTE TO ALL POTENTIAL PURCHASERS
We have not tested the services or systems in this property. Purchasers should make/commission their own inspections if they feel it is necessary. Images are for illustrative purposes only. Additional options/extras may be considered but they can only be incorporated into the property if a binding contract is in existence between all parties at the requisite stage of construction. This specification is for guidance only and may be subject to variation. Although every care has been taken to ensure the accuracy of all information given, these contents do not form part of or constitute a representation, warranty, or part of, any contract. The right is reserved to alter or amend any details.
Broadband Speed Availability
Potential Speeds for 65C Kilgad Road
Max Download
1800
Mbps
Max Upload
220
MbpsThe speeds indicated represent the maximum estimated fixed-line speeds as predicted by Ofcom. Please note that these are estimates, and actual service availability and speeds may differ.
Property Location

Mortgage Calculator
Contact Agent

Contact Colin Graham Residential
Request More Information
Requesting Info about...