4 Bed Land
24 Market Street
Keady, BT60 3RP
guide price
£29,950
- Status For Sale
- Property Type Land
- Bedrooms 4
- Receptions 2
- Bathrooms 4
Description
For sale by CPS property via the iamsold Bidding Platform
Please note this property will be offered by online auction (unless sold prior). For auction date and time please visit www.iamsoldni.com. Vendors may decide to accept pre-auction bids so please register your interest with us to avoid disappointment.
We are duly appointed to offer to the open market this development site formerly known as the "Social Club" of Keady O’Dwyers Gealic Football Club which is located within the centre of Keady town.
The development is within a few minute walk of all local amenities Keady has to offer as well as close proximity to all local bus routes and stops.
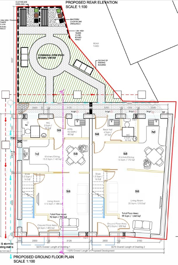
The property would be seen as an ideal purchase for investors and the likes as it has passed planning permission for two new semi-detached residential homes.
The planning permission was granted on the 30th September 2021 and the reference number is LA08/2021/1429/F.
An investment opportunity of this stature rarely presents itself to the open market.
To access the legal pack, please copy and paste the link below
http://www.iamsoldni.com/properties/09fce6b856ec4301af9e87a2e2fe34e2/auction-pack
TO VIEW OR MAKE A BID Contact CPS property or iamsold NI, www.iamsoldni.com
Please note this property will be offered by online auction (unless sold prior). For auction date and time please visit www.iamsoldni.com. Vendors may decide to accept pre-auction bids so please register your interest with us to avoid disappointment.
We are duly appointed to offer to the open market this development site formerly known as the "Social Club" of Keady O’Dwyers Gealic Football Club which is located within the centre of Keady town.
The development is within a few minute walk of all local amenities Keady has to offer as well as close proximity to all local bus routes and stops.
The property would be seen as an ideal purchase for investors and the likes as it has passed planning permission for two new semi-detached residential homes.
The planning permission was granted on the 30th September 2021 and the reference number is LA08/2021/1429/F.
An investment opportunity of this stature rarely presents itself to the open market.
To access the legal pack, please copy and paste the link below
http://www.iamsoldni.com/properties/09fce6b856ec4301af9e87a2e2fe34e2/auction-pack
TO VIEW OR MAKE A BID Contact CPS property or iamsold NI, www.iamsoldni.com
Property Location
Mortgage Calculator
Contact Agent
Contact iamsold NI
Request More Information
Requesting Info about...