3 Bed Chalet - Detached
16 Lenamore Drive
Jordanstown, BT37 0PQ
offers over
£375,000
Key Features & Description
Detached chalet style home in area of Townscape character
Through lounge with fireplace
Kitchen with built in appliances
3 Bedrooms
Double glazing in uPVC frames
Oil fired central heating
Utility room
Ground floor bathroom and first floor shower room
Generous mature site
Integrated garage
Description
This impressive detached chalet-style home sits in a charming area of streetscape and benefits from a generous plot, offering both presence and privacy. Inside, there are three comfortable bedrooms and two versatile reception rooms, ideal for modern family living. Bright, well-laid-out interiors create a welcoming atmosphere throughout, while the flexible spaces allow for dining, entertaining, or quiet relaxation. Outside, the ample gardens provide excellent room for outdoor activities or simply enjoying the surroundings. Conveniently located, the property is close to public transport, reputable schools, and a variety of local shops, making daily life straightforward and accessible. Combining a desirable location, spacious accommodation, and attractive outdoor space, this home offers an ideal balance of comfort, style, and practicality, perfectly suited for families or anyone seeking a well-connected yet peaceful residential setting.
This impressive detached chalet-style home sits in a charming area of streetscape and benefits from a generous plot, offering both presence and privacy. Inside, there are three comfortable bedrooms and two versatile reception rooms, ideal for modern family living. Bright, well-laid-out interiors create a welcoming atmosphere throughout, while the flexible spaces allow for dining, entertaining, or quiet relaxation. Outside, the ample gardens provide excellent room for outdoor activities or simply enjoying the surroundings. Conveniently located, the property is close to public transport, reputable schools, and a variety of local shops, making daily life straightforward and accessible. Combining a desirable location, spacious accommodation, and attractive outdoor space, this home offers an ideal balance of comfort, style, and practicality, perfectly suited for families or anyone seeking a well-connected yet peaceful residential setting.
Rooms
GROUND FLOOR
RECEPTION HALL
Ceramic tiled flooring, built in storage, hot press
LOUNGE 26'11" X 14'4" (8.20m X 4.37m)
Brick fireplace, laminate wood flooring, pine panelled ceiling
DINING ROOM 9'11" X 10'1" (3.02m X 3.07m)
Polished wood flooring, Velux windows, door to front and rear
KITCHEN 12'7" X 10'0" (3.84m X 3.05m)
Range of high and low level units, round edge worksurfaces, single drainer stainless steel sink unit with mixer tap and vegetable sink, inlaid hob unit, twin under oven, wine rack, dishwasher, ceramic tiled flooring, downlighters
UTILITY ROOM
Built in units, ceramic tiled flooring, oil fired boiler, picture rail
BEDROOM (1) 10'2" X 11'0" (3.10m X 3.35m)
Built in robes
BATHROOM
White suite, panelled bath with mixer tap, telephone hand shower, low flush W/C, built in units, wash hand basin, mirrors, downlighters
FIRST FLOOR
LANDING
Velux window, built in robe
BEDROOM (2) 13'9" X 15'0" (4.19m X 4.57m)
Built in storage, twin Velux window, access to shower room
SHOWER ROOM
Low flush W/C, vanity unit, shower unit with overhead rain shower, tiling
BEDROOM (3) 15'0" X 15'0" (4.57m X 4.57m)
Twin built in robes, 2x separate built in robes
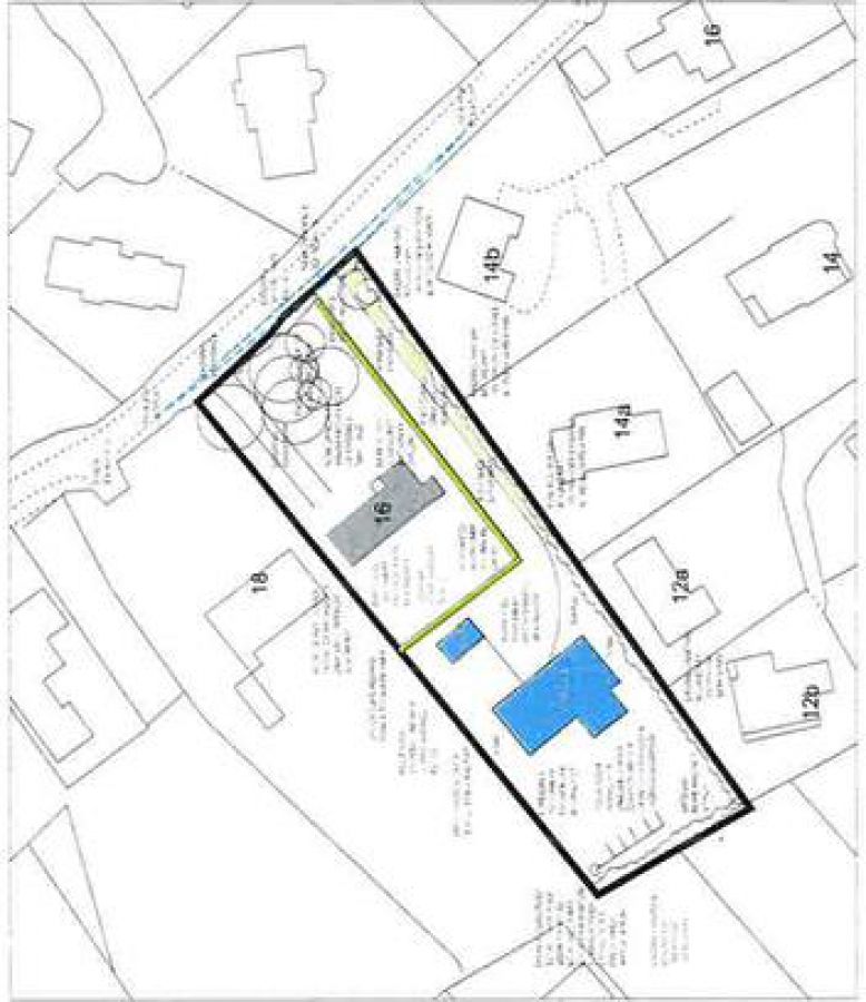
OUTSIDE
Front: spacious lawn to front, mature trees, generous driveway and car parking space
Rear: in lawn, PVC oil storage tank
Please note there is a building site to the rear of the property that has been sold separately and has planning permission for one dwelling.
Rear: in lawn, PVC oil storage tank
Please note there is a building site to the rear of the property that has been sold separately and has planning permission for one dwelling.
GARAGE 22'0" X 10'5" (6.71m X 3.18m)
Up and over door, light and power
The information contained within these particulars is intended as a guide only. Although prepared with care, its accuracy cannot be guaranteed and it does not form part of any contract. Interested parties should rely on their own enquiries and seek professional advice where necessary. We are happy to provide clarification on any specific points upon request. All measurements are given as approximate. Fixtures, fittings, and appliances have not been tested, and no warranty is offered regarding their condition or operation. Photographs are for illustrative purposes only and should not be assumed to represent items included in the sale unless specifically stated.
Broadband Speed Availability
Potential Speeds for 16 Lenamore Drive
Max Download
1800
Mbps
Max Upload
220
MbpsThe speeds indicated represent the maximum estimated fixed-line speeds as predicted by Ofcom. Please note that these are estimates, and actual service availability and speeds may differ.
Property Location
Mortgage Calculator
Contact Agent
Contact McMillan McClure
Request More Information
Requesting Info about...
16 Lenamore Drive, Jordanstown, BT37 0PQ
By registering your interest, you acknowledge our Privacy Policy
By registering your interest, you acknowledge our Privacy Policy