Contact Agent

Contact McMillan McClure

Contact McMillan McClure

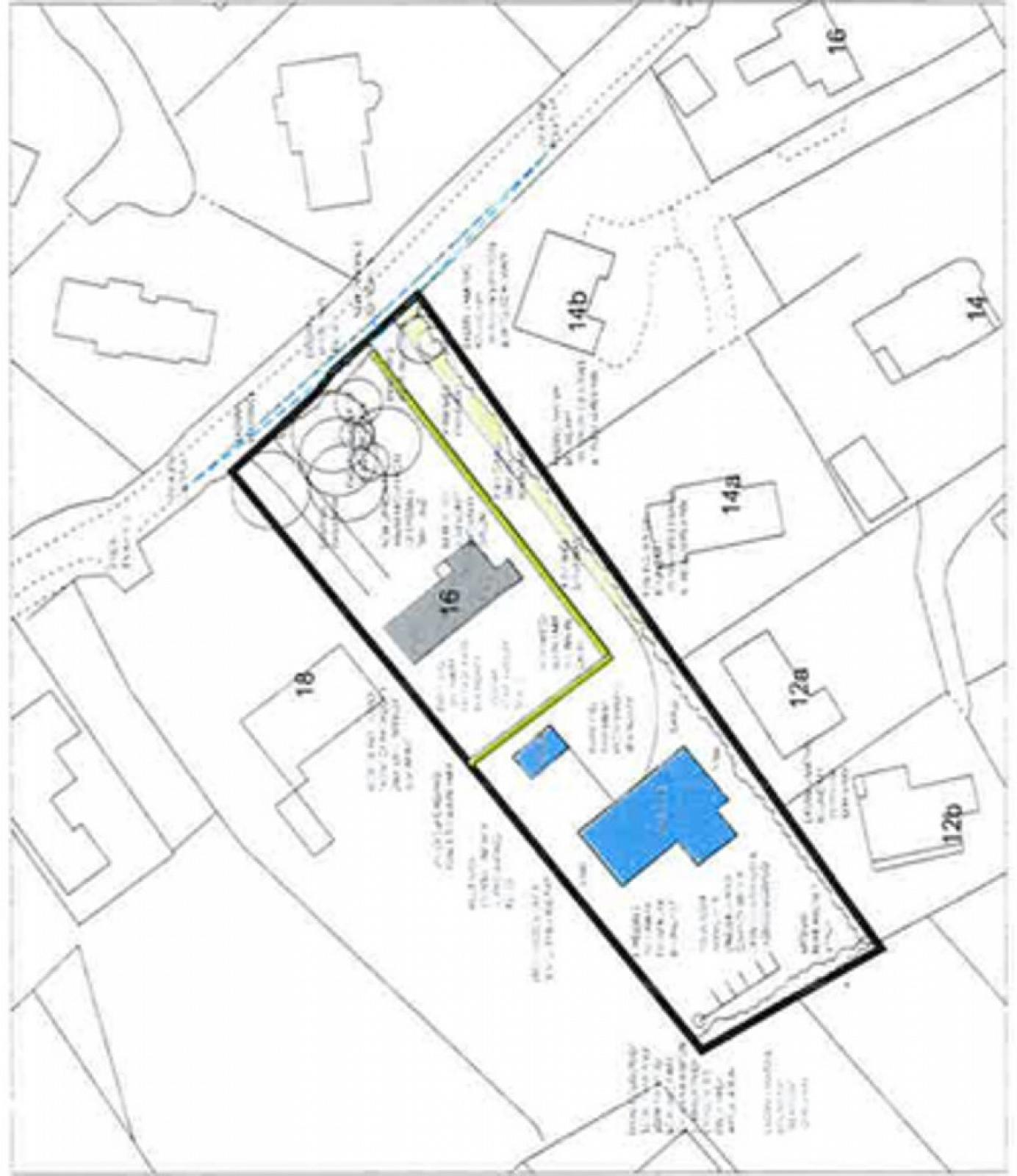
Site

16 Lenamore Drive

Jordanstown, BT37 0PQ

offers in region of £175,000
  • Status Sale Agreed
  • Property Type Site
  • Stamp Duty
    Higher amount applies when purchasing as buy to let or as an additional property
    £1,000 / £9,750*
  • Typical Mortgage
    Click price to use our mortgage calculator

Key Features & Description

Residential building site
Planning reference LA03/2025/0229/O
Planning application date 4th April 2025
Planning approval date 25th July 2025
A copy of the planning and condition are attached
The approximate dimensions are 50m x 31m, Area: 1,550 m² (not including the lane)
The overall size of the site is approximately 0.383 acres
Property will also come on the market at the start of 2026
Description
A residential building site in a highly regarded residential area of Jordanstown. The area is recognised as an area of Townscape character.

Broadband Speed Availability

Ultrafast

Potential Speeds for Residential building site adjacent to, 16 Lenamore Drive

Max Download
1800
Mbps
Max Upload
220
Mbps
The speeds indicated represent the maximum estimated fixed-line speeds as predicted by Ofcom. Please note that these are estimates, and actual service availability and speeds may differ.

Property Location

Show Map

Mortgage Calculator

Disclaimer: The following calculations act as a guide only, and are based on a typical repayment mortgage model. Financial decisions should not be made based on these calculations and accuracy is not guaranteed. Always seek professional advice before making any financial decisions.

Contact Agent

Contact McMillan McClure

Contact McMillan McClure

Request More Information
Requesting Info about...
16 Lenamore Drive, Jordanstown, BT37 0PQ 16 Lenamore Drive, Jordanstown, BT37 0PQ

By registering your interest, you acknowledge our Privacy Policy