Contact Agent
Contact John Minnis Estate Agents (Holywood)
5 Bed Detached House
2 Kintyre Avenue
Holywood, BT18 0LY
offers around
£699,950
Key Features & Description
Stylish detached home set on private corner site in Holywood
Stunning panoramic views over Belfast Lough towards the Co Antrim Hills
Recently remodelled and modernised in recent years
Electrically operated entrance gates leading to parking and turning spaces
Granite steps and pathways leading around the house and to the front door and patio
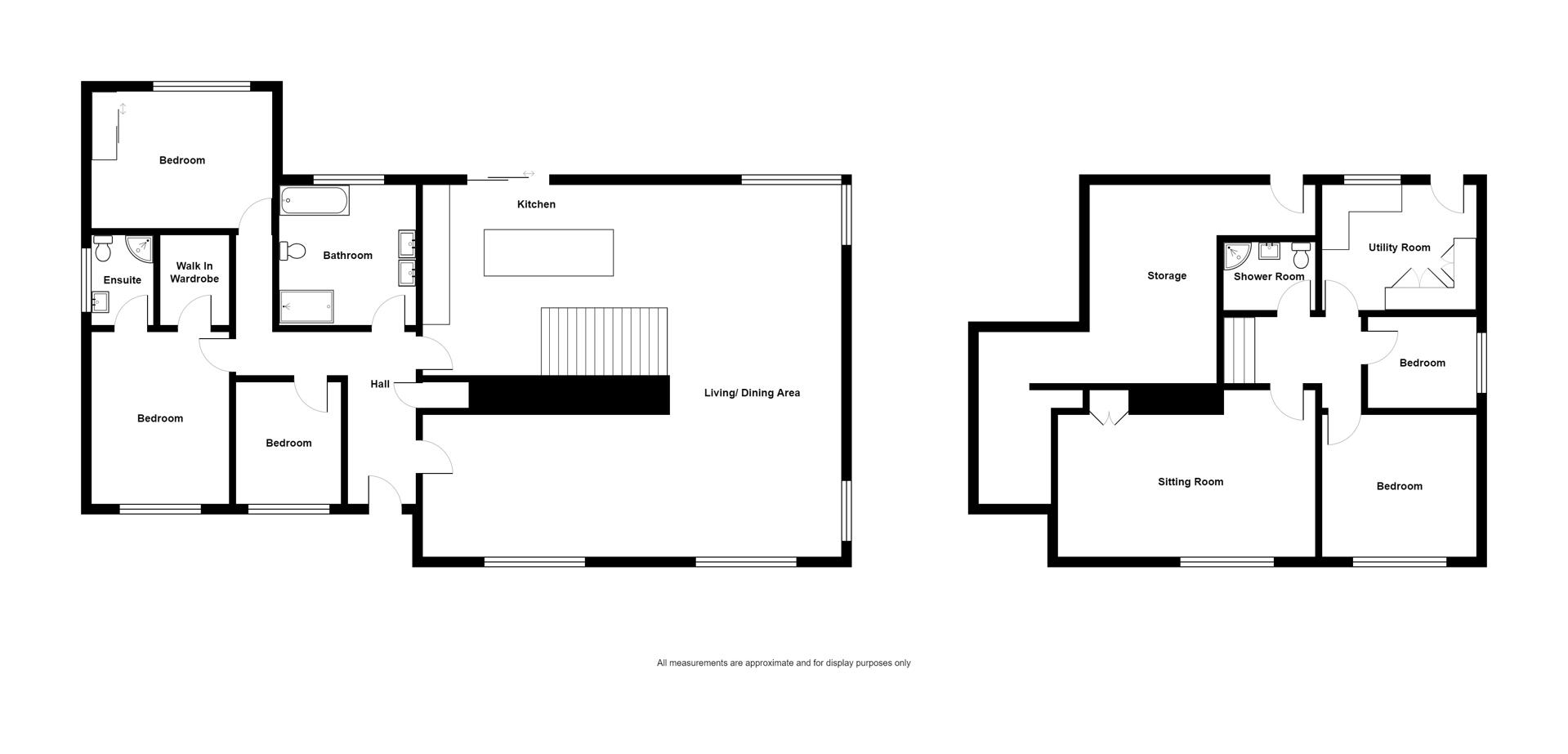
Extensive accommodation over ground and lower ground floors as follows:
Living room leading towards family area with open fire, media wall and amazing views
Dining area open to fully fitted kitchen with breakfast bar with doors leading to rear sun patios and gardens
o3 bedrooms, main with dressing and shower room and further family bathroom on ground floor
Lower ground floor with 2 further bedrooms and a separate shower room
Large entertaining room wired for cinema room with feature lighting
Utility room with built in storage, additional fridge freezer and door to rear driveway and gardens
Ground floor store room
Triple glazed windows and mains gas central heating
Heat recovery ventilation system throughout the property
Professionally designed gardens with granite detailing and various patio and level lawns bordered by mature trees
Interlinking tree houses on the border of the secure corner site
Well maintained hedging, flower beds with specimen flowers, shrubs and plants
Patio areas all around the house which have enjoyment of all day and evening sun
Only a few minutes or so walk from the hustle and bustle of Holywood town centre and a few minute's walk to the coast
Belfast City Airport is a short journey by car, bus or rail.
Description
Located in one of North Downs most coveted towns - Holywood, this is a cleverly and stylishly remodelled detached home of c.2500 sq ft on an elevated corner site with unforgettable panoramic Belfast Lough Views.
The house is approached by electric gates leading to freshly maintained parking and turning areas with granite cobbled borders. There has been significant investment with the professionally landscaped gardens areas starting with granite steps leading to a raised terrace with amazing views which leads to the front door
Once inside the quality of the finish is obvious, there are wooden floors throughout the house and triple glazing which give an immediately comfortable feeling. The living room with open fire leads round to the spacious family area with media wall and double height ceiling which again opens to the stunning kitchen with full range of built in appliances, breakfast bar and dining areas - with magnificent views over Belfast Lough to the front and the mature and private SW facing gardens and patios to the rear.
On the lower ground floor there is an entertaining room with built in storage and media wall - ideal space for a movie room or for kids to have independence. There are generous sleeping areas over the ground and lower ground floors with up to 5 bedrooms in total, main bedroom with shower and dressing rooms, a beautifully appointed family bathroom and a further shower room. The lower ground floor has a fully fitted utility room with storage and access to the driveway - convenient for your everyday door with ease for shopping / kids with muddy sports gear etc..
There is a lower ground floor store accessed from the rear which leads to the landscaped gardens, there are lower all weather lawns, grass areas, mature trees with custom built interlinking tree houses, a shed and bin store, raised flowerbeds with specimen plants, trees and shrubs - beautiful gardens with all day and evening sun and views for days.
Located in one of North Downs most coveted towns - Holywood, this is a cleverly and stylishly remodelled detached home of c.2500 sq ft on an elevated corner site with unforgettable panoramic Belfast Lough Views.
The house is approached by electric gates leading to freshly maintained parking and turning areas with granite cobbled borders. There has been significant investment with the professionally landscaped gardens areas starting with granite steps leading to a raised terrace with amazing views which leads to the front door
Once inside the quality of the finish is obvious, there are wooden floors throughout the house and triple glazing which give an immediately comfortable feeling. The living room with open fire leads round to the spacious family area with media wall and double height ceiling which again opens to the stunning kitchen with full range of built in appliances, breakfast bar and dining areas - with magnificent views over Belfast Lough to the front and the mature and private SW facing gardens and patios to the rear.
On the lower ground floor there is an entertaining room with built in storage and media wall - ideal space for a movie room or for kids to have independence. There are generous sleeping areas over the ground and lower ground floors with up to 5 bedrooms in total, main bedroom with shower and dressing rooms, a beautifully appointed family bathroom and a further shower room. The lower ground floor has a fully fitted utility room with storage and access to the driveway - convenient for your everyday door with ease for shopping / kids with muddy sports gear etc..
There is a lower ground floor store accessed from the rear which leads to the landscaped gardens, there are lower all weather lawns, grass areas, mature trees with custom built interlinking tree houses, a shed and bin store, raised flowerbeds with specimen plants, trees and shrubs - beautiful gardens with all day and evening sun and views for days.
Rooms
GROUND FLOOR
Entrance Hall 12'10 X 5'3 (3.91m X 1.60m)
Solid wooden floor, storage cupboard, door to:
Living Room 19'8 X 10'10 (5.99m X 3.30m)
Beautiful carved aluminium fireplace with inset grate and slate hearth. Wooden floor, built in shelving, picture window overlooking Belfast Lough towards the County Antrim hills. Open to:
Living/Kitchen Area 27'7 X 15'5 (8.41m X 4.70m)
Corner window with incredible views, media wall, built-in shelving, solid wooden floor, double height ceiling. Open to casual dining area with corner window overlooking southwest facing rear gardens, patios and driveway area. Open to:
Kitchen Area 20'4 X 14'9 (6.20m X 4.50m)
Beautifully appointed and fitted contemporary kitchen with solid granite worktops with Bosch 5 ring gas hob and extractor fan over. Inset 1.5 bowl sink, raised breakfast bar with 4 seats, built in Miele dishwasher, Siemens double oven, built in larder and fridge freezer, plenty of storage, excellent selection of cupboards, drawers, shelves and units, 1.5 bowl sink inset in granite worktop, tilt and turn sliding door opening to south west facing raised patio which receives all afternoon and evening sun. Beautiful barbecue area overlooking rear garden areas. Totally private site. Steps down to lower ground floor with door connecting back to hallway.
Bedroom One 12'6 X 10'2 (3.81m X 3.10m)
Wooden floor, low voltage lighting, walk in dressing room, Each side of dressing room has ample hanging, shelving and built in storage. Door to ensuite shower room with low flush wc, wash hand basin, corner shower cubicle with drench shower and telephone hand shower, tiled walls, tiled floor, low voltage lighting.
Bedroom Two 13'1 X 9'10 (3.99m X 3.00m)
Solid wooden floor, built in cupboards, drawers, shelves and units within sliderobes.
Bedroom Three 8'10 X 7'10 (2.69m X 2.39m)
Solid wooden floor.
Family Bathroom
Deep fill fully tiled bath, low flush wc, double sink unit with beautiful stone sinks, vanity unit with storage beneath, backlit mirror, walk in double shower, telephone hand shower and drench shower, built in storage, fully tiled walls, heated towel rail and ow voltage lighting.
LOWER GROUND FLOOR
Carpeted steps down to lower ground floor. Hallway with access to:
FAMILY ROOM 17'9 X 12'6 (5.41m X 3.81m)
Wooden floor, built in storage and open shelving, wiring for projector, space for large screen, feature multi-function ceiling light and low voltage lighting.
Bedroom Four 11'2 X 10'6 (3.40m X 3.20m)
Solid wooden floor, built in shelving with beautiful views across Belfast Lough towards County Antrim hills. Fully tiled shower room, fully tiled shower cubicle with thermostatic shower, wash hand basin, low flush wc, designer tiled floor, partly tiled walls, extractor fan, fitted mirror, low voltage lighting.
Bedroom Five 8'6 X 6'11 (2.59m X 2.11m)
Solid wooden floor.
Utility Room 11'2 X 9'10 (3.40m X 3.00m)
Bespoke designed utility room/boot room. Fitted Hotpoint washing machine and drier, granite worktops with Franke inset sink with shower head tap, plenty of shelving, walk in storage cupboard with ample hanging and shelving space, tall larder, fitted fridge and freezer. Door to rear gardens and driveway parking area.
OUTSIDE
Rear Outside
Parking at side and rear for several cars. Bitmac parking area with granite cobbling. Outside shed and bin storage area. Series of landscaped garden areas including a ramp up with artificial grass in circular bay with sleeper style surround bordered by mature flowerbeds with shrubs, plants and Acer trees. Granite steps up to middle garden with stunning lawn bordered by mature hedges and trees. Built in treehouses and slides throughout property at back. South west facing sun patio accessed off the kitchen/living/dining room with hedges overlooking lawns. Spacious corner site, granite trimmed pathways and paving. Front and north east facing garden with box hedging, patio area, totally private with beautiful specimen trees with plants. Well maintained hedges and lawns. Beautiful front patio area with panoramic views across Belfast Lough to the County Antrim Hills. Outside lighting and attractive granite steps down to entrance gates.
Front Outside
Double opening electric gates via a cobbled entrance way into a cobbled edged driveway in front of landscaped and manicured flowerbeds with parking for 3-4 cars to the side. Solid granite steps and retaining walls with box hedging and foot lighting leading towards front patio. Large patio area with steps up to front door with enclosed porch and lighting. Beautiful views over Belfast Lough. Solid front door with side panel into:
AML
As part of our obligations under the Money Laundering, Terrorist Financing and Transfer of Funds (Information on the Payer) Regulations 2017, all Estate Agents are required to verify the identity of purchasers involved in a property transaction.
To comply with these obligations, all purchasers will be required to complete Customer Due Diligence (AML) identity checks. These checks are carried out on our behalf by our trusted third-party provider, Thirdfort.
A charge will apply of £20 + VAT per purchaser.
To comply with these obligations, all purchasers will be required to complete Customer Due Diligence (AML) identity checks. These checks are carried out on our behalf by our trusted third-party provider, Thirdfort.
A charge will apply of £20 + VAT per purchaser.
Holywood, named Best Place to Live in Northern Ireland 2023 by the Sunday Times, is located conveniently close to Belfast on the coast of North Down. Holywood is known for its beautiful beaches, trendy cafés and for being a foodie heaven! Holywood is home to many leading secondary and primary schools.
Video
Broadband Speed Availability
Potential Speeds for 2 Kintyre Avenue
Max Download
1800
Mbps
Max Upload
220
MbpsThe speeds indicated represent the maximum estimated fixed-line speeds as predicted by Ofcom. Please note that these are estimates, and actual service availability and speeds may differ.
Property Location
Mortgage Calculator
Contact Agent
Contact John Minnis Estate Agents (Holywood)
Request More Information
Requesting Info about...
2 Kintyre Avenue, Holywood, BT18 0LY
By registering your interest, you acknowledge our Privacy Policy
By registering your interest, you acknowledge our Privacy Policy