Contact Agent
Contact John Minnis Estate Agents (Holywood)
2 Bed Apartment
23 Church Court
Holywood, BT18 9FP
offers around
£275,000
Key Features & Description
Exceptionally presented ground floor apartment
Neutral and tasteful décor throughout
Reception porch with ceramic tiled flooring
Open-plan kitchen, dining, and living space with oak flooring
Bay window with mature outlook to Church Road
Side aspect to private patio with mature planting and stone wall
Modern bespoke kitchen with integrated appliances
Two bedrooms; principal with en-suite shower room
Modern family bathroom
Allocated car parking with resident and visitor management scheme
Description
This exceptionally presented ground floor apartment offers stylish and comfortable accommodation finished to a high standard throughout, complemented by a tasteful and neutral colour palette. Situated in a highly convenient location just a short walk from Holywood town centre, the property provides excellent access to local shops, schools, transport links, and easy commuting to Belfast.
The apartment opens via a welcoming reception porch into a bright open-plan kitchen, dining, and living area. The living and dining space features oak flooring and a bay window overlooking Church Road, while a side aspect provides views over a private patio with mature planting and stone wall. The bespoke kitchen is fitted with modern units and integrated appliances, creating a functional and contemporary space.
The accommodation comprises two well-proportioned bedrooms, including a principal bedroom with an en-suite shower room. A modern family bathroom completes the layout. Externally, the apartment benefits from a private patio and allocated car parking, with resident and visitor parking available under the management scheme.
As part of our obligations under the Money Laundering, Terrorist Financing and Transfer of Funds (Information on the Payer) Regulations 2017, all Estate Agents are required to verify the identity of purchasers involved in a property transaction.
To comply with these obligations, all purchasers will be required to complete Customer Due Diligence (AML) identity checks. These checks are carried out on our behalf by our trusted third-party provider, Thirdfort.
A charge will apply of £20 + VAT per purchaser.
This exceptionally presented ground floor apartment offers stylish and comfortable accommodation finished to a high standard throughout, complemented by a tasteful and neutral colour palette. Situated in a highly convenient location just a short walk from Holywood town centre, the property provides excellent access to local shops, schools, transport links, and easy commuting to Belfast.
The apartment opens via a welcoming reception porch into a bright open-plan kitchen, dining, and living area. The living and dining space features oak flooring and a bay window overlooking Church Road, while a side aspect provides views over a private patio with mature planting and stone wall. The bespoke kitchen is fitted with modern units and integrated appliances, creating a functional and contemporary space.
The accommodation comprises two well-proportioned bedrooms, including a principal bedroom with an en-suite shower room. A modern family bathroom completes the layout. Externally, the apartment benefits from a private patio and allocated car parking, with resident and visitor parking available under the management scheme.
As part of our obligations under the Money Laundering, Terrorist Financing and Transfer of Funds (Information on the Payer) Regulations 2017, all Estate Agents are required to verify the identity of purchasers involved in a property transaction.
To comply with these obligations, all purchasers will be required to complete Customer Due Diligence (AML) identity checks. These checks are carried out on our behalf by our trusted third-party provider, Thirdfort.
A charge will apply of £20 + VAT per purchaser.
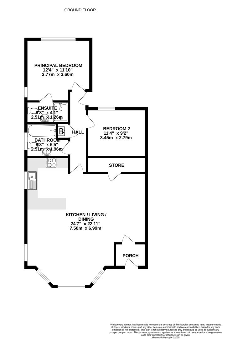
Rooms
ENTRANCE
Front Door
Hardwood front door to Church Road with double glazed top light.
GROUND FLOOR
Reception Porch
With ceramic tiled floor, inner door to open plan kitchen/dining/living space.
Open Plan Kitchen/Dining/Living Space 24'7 X 22'11 (7.49m X 6.99m)
With oak wooden flooring throughout living and dining space, measurement into bay window with mature outlook to Church Road and outside to side to original stone wall and patio, open to bespoke fitted newly installed bespoke fitted kitchen with corian type worktop and upstand, stainless steel inset sink unit, chrome mixer taps, integrated four ring induction hob with stainless steel oven below, stainless steel and glass extractor hood above, outlook to side patio, original wall and mature planting, built-in glazed display cabinets, integrated fridge, integrated freezer, integrated washing machine, ceramic tiled floor, recessed low voltage spotlighting, walk-in store room/pantry with built-in shelving and excellent storage.
Hallway
With oak laminate wooden flooring and door to car parking.
Bedroom One 12'4 X 11'10 (3.76m X 3.61m)
Oak laminate wooden flooring, dual aspect windows, mature outlook to rear and mature planting and stone wall to side.
En Suite Shower Room 8'3 X 4'1 (2.51m X 1.24m)
White suite comprising low flush WC, pedestal wash hand basin, built-in fully tiled shower cubicle with chrome thermostatically controlled shower unit, extractor fan, recessed spotlighting.
Bedroom Two 11'4 X 9'2 (3.45m X 2.79m)
Oak laminate wooden flooring, mature outlook to Church Court parking, linen press with built-in shelving, excellent storage and Baxi gas fired boiler.
Bathroom 8'3 X 6'5 (2.51m X 1.96m)
With modern white suite comprising low flush WC, vanity unit with chrome mixer taps, panelled bath, built-in thermostatically controlled shower unit, shower screen, chrome mixer taps, fully tiled splashback, recessed spotlighting, ceramic tiled floor.
OUTSIDE
Parking
Resident and visitor parking.
MANAGEMENT FEES
Approximately £1,300 per year
Holywood, named Best Place to Live in Northern Ireland 2023 by the Sunday Times, is located conveniently close to Belfast on the coast of North Down. Holywood is known for its beautiful beaches, trendy cafés and for being a foodie heaven! Holywood is home to many leading secondary and primary schools.
Broadband Speed Availability
Potential Speeds for 23 Church Court
Max Download
80
Mbps
Max Upload
20
MbpsThe speeds indicated represent the maximum estimated fixed-line speeds as predicted by Ofcom. Please note that these are estimates, and actual service availability and speeds may differ.
Property Location
Mortgage Calculator
Contact Agent
Contact John Minnis Estate Agents (Holywood)
Request More Information
Requesting Info about...
23 Church Court, Holywood, BT18 9FP
By registering your interest, you acknowledge our Privacy Policy
By registering your interest, you acknowledge our Privacy Policy