Contact Agent

Contact Michael Chandler Estate Agents
5 Bed Detached House
6 Glen Road
Cultra, Holywood, BT18 0HB
asking price
£995,000
- Status For Sale
- Property Type Detached
- Bedrooms 5
- Receptions 3
- Bathrooms 4
- Heating Gas
-
Stamp Duty
Higher amount applies when purchasing as buy to let or as an additional property£43,250 / £93,000*
Key Features & Description
Description
This fully refurbished five-bedroom, four-bathroom home in the heart of Cultra blends luxury, practicality and coastal living. Upgraded to exacting standards, it offers a rare opportunity to own a truly distinctive property in one of Northern Ireland´s most prestigious locations.
From the moment you step inside, the quality and space are unmistakable. The tiled entrance hall leads to a welcoming main lounge with tasteful décor and a multi-fuel stove. At the heart of the home is a newly fitted walnut kitchen with a large centre island, three integrated ovens and top-of-the-range appliances. Patio doors open onto the landscaped rear garden, creating seamless indoor-outdoor living. A second living room sits adjacent, ideal as a snug or home office.
The ground floor also provides a generous double bedroom with a large en-suite shower room, perfect for guests or extended family, alongside a versatile fifth bedroom or study. A fitted utility room with boot area completes the practical layout.
Upstairs, the master suite is a true retreat with balcony doors framing views of the private garden, while the luxurious en-suite includes a luxurious bath with built in TV and a separate walk-in shower. There is a spacious walk in wardrobe for extra storage. Another high-spec shower room serves the additional two bedrooms, all designed to the same impeccable standard. Upstairs also benefits from a spacious eves storage room.
Externally, electric gates open to a sweeping driveway with ample parking and a carport. Landscaped gardens front and rear provide privacy, while multiple sheds add valuable storage.
The location is exceptional: a short walk to the beach, Culloden Hotel and train station, with everything needed for an outstanding family lifestyle.
To arrange a private viewing or for further information please contact Clare Wylie on 02890 450 550.
This fully refurbished five-bedroom, four-bathroom home in the heart of Cultra blends luxury, practicality and coastal living. Upgraded to exacting standards, it offers a rare opportunity to own a truly distinctive property in one of Northern Ireland´s most prestigious locations.
From the moment you step inside, the quality and space are unmistakable. The tiled entrance hall leads to a welcoming main lounge with tasteful décor and a multi-fuel stove. At the heart of the home is a newly fitted walnut kitchen with a large centre island, three integrated ovens and top-of-the-range appliances. Patio doors open onto the landscaped rear garden, creating seamless indoor-outdoor living. A second living room sits adjacent, ideal as a snug or home office.
The ground floor also provides a generous double bedroom with a large en-suite shower room, perfect for guests or extended family, alongside a versatile fifth bedroom or study. A fitted utility room with boot area completes the practical layout.
Upstairs, the master suite is a true retreat with balcony doors framing views of the private garden, while the luxurious en-suite includes a luxurious bath with built in TV and a separate walk-in shower. There is a spacious walk in wardrobe for extra storage. Another high-spec shower room serves the additional two bedrooms, all designed to the same impeccable standard. Upstairs also benefits from a spacious eves storage room.
Externally, electric gates open to a sweeping driveway with ample parking and a carport. Landscaped gardens front and rear provide privacy, while multiple sheds add valuable storage.
The location is exceptional: a short walk to the beach, Culloden Hotel and train station, with everything needed for an outstanding family lifestyle.
To arrange a private viewing or for further information please contact Clare Wylie on 02890 450 550.
Rooms
Ground Floor:
Entrance Hall
Lounge 19'0 X 13'0 (5.79m X 3.96m)
Living Room 12'2 X 12'11 (3.71m X 3.94m)
Kitchen / Dining / Living Area 21'6 X 18'3 (6.55m X 5.56m)
Bedroom 4 13'9 X 10'11 (4.19m X 3.33m)
Walk in Wardrobe 3'10 X 4'7 (1.17m X 1.40m)
En-suite 7'9 X 9'8 (2.36m X 2.95m)
Bedroom 5 11'11 X 14'2 (3.63m X 4.32m)
Bathroom 10'8 X 8'2 (3.25m X 2.49m)
Storage Cupboard 2'10 X 4'1 (0.86m X 1.24m)
Utility Room 16'0 X 10'0 (4.88m X 3.05m)
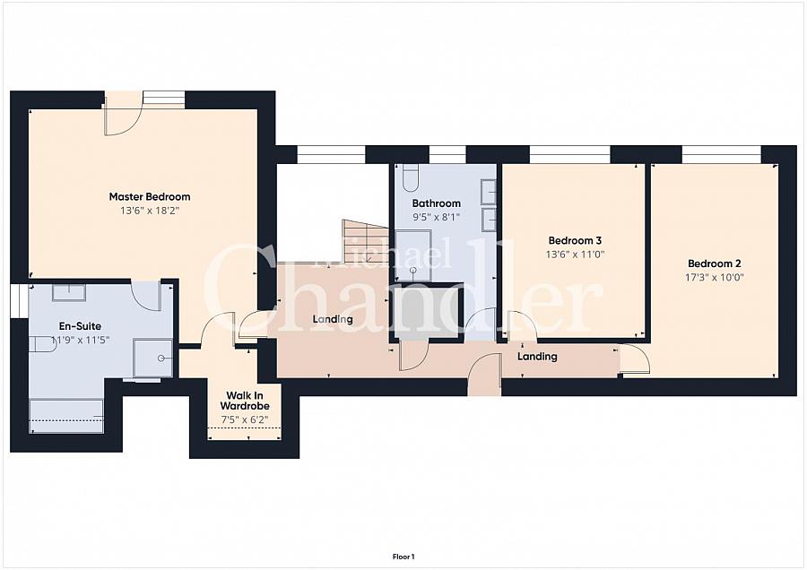
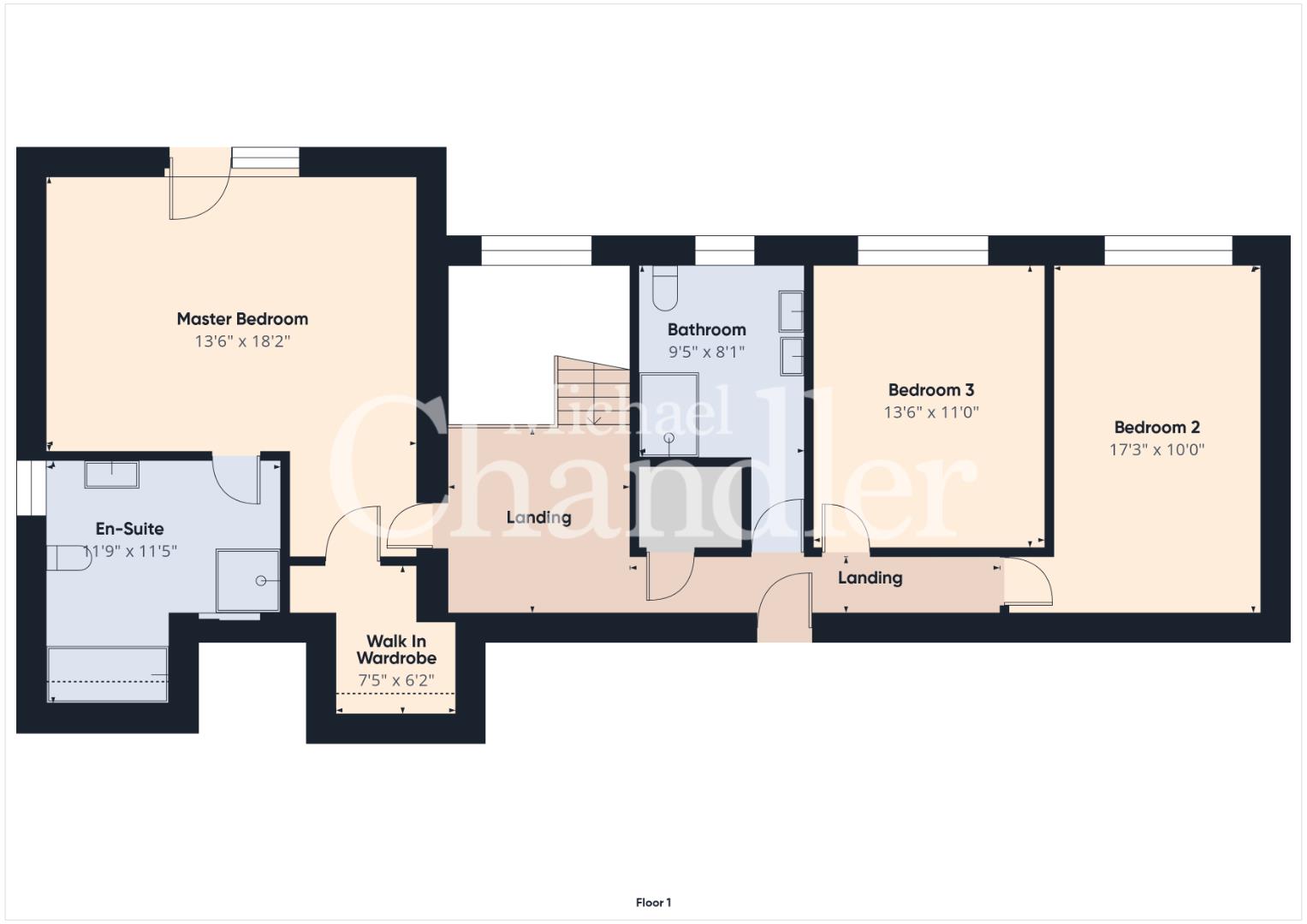
First Floor:
Landing
Master Bedroom 13'6 X 18'2 (4.11m X 5.54m)
Walk in Wardrobe 7'5 X 6'2 (2.26m X 1.88m)
Master En-Suite 11'9 X 11'5 (3.58m X 3.48m)
Bedroom 2 13'6 X 11'0 (4.11m X 3.35m)
Bedroom 3 17'3 X 10'0 (5.26m X 3.05m)
Bathroom 9'5 X 8'1 (2.87m X 2.46m)
Outside:
Covered Car Port
Home Gym 16'6 X 13'0 (5.03m X 3.96m)
Outdoor Storage 10'2 X 8'2 (3.10m X 2.49m)
Michael Chandler Estate Agents have endeavoured to prepare these sales particulars as accurately and reliably as possible for the guidance of intending purchasers or lessees. These particulars are given for general guidance only and do not constitute any part of an offer or contract. The seller and agents do not give any warranty in relation to the property/ site. We would recommend that all information contained in this brochure is verified by yourself or your professional advisors. Services, fittings and equipment referred to in the sales details have not been tested and no warranty is given to their condition. All measurements contained within this brochure are approximate. Site sizes are approximate and have not been verified.
Please note that the vendor of this property is associated with Michael Chandler Estate Agents.
Video
Broadband Speed Availability
Potential Speeds for 6 Glen Road
Max Download
1800
Mbps
Max Upload
220
MbpsThe speeds indicated represent the maximum estimated fixed-line speeds as predicted by Ofcom. Please note that these are estimates, and actual service availability and speeds may differ.
Property Location

Mortgage Calculator
Contact Agent

Contact Michael Chandler Estate Agents
Request More Information
Requesting Info about...
6 Glen Road, Cultra, Holywood, BT18 0HB
By registering your interest, you acknowledge our Privacy Policy

By registering your interest, you acknowledge our Privacy Policy