Contact Agent

Contact Rodgers & Browne

Contact Rodgers & Browne

Site

Building Site 2 @ 209 Church Road

Holywood, BT18 9RN

offers around £225,000
  • Status For Sale
  • Property Type Site
  • Stamp Duty
    Higher amount applies when purchasing as buy to let or as an additional property
    £2,000 / £13,250*
  • Typical Mortgage
    Click price to use our mortgage calculator

Key Features & Description

The facts you need to know...
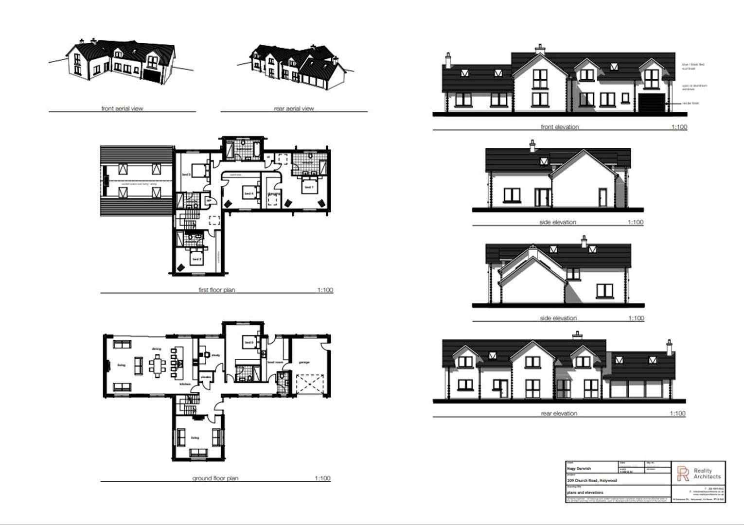
Building site with full planning permission granted (LA06/2023/2198/F)
Sweeping laneway to be put in by the vendor
Water and electric are available to the sites
House design extends to c.3,800 sq ft including garage
The layout comprising of five bedrooms, four with ensuites, drawing room, study and open plan kitchen, living dining
Site two - c.0.60 acres
An ideal opportunity for either an individual wishing to embark in their own grand design to that of a developer wanting a ready to go site
Holywood and Dundonald Village are only five minutes away including the Ulster Hospital
Perfectly positioned to access Belfast City Centre and The George Best City Airport
Description
The Agent"s Perspective...
"A fantastic opportunity to purchase a building site which has full planning permission granted for a detached family home, extending to c.3,800 sq ft.
The site extends to c.0.60 of an acre and are set in a semi-rural position with views over the rolling countryside only two minutes from the renowned Holywood town centre"

Property Location

Show Map

Mortgage Calculator

Disclaimer: The following calculations act as a guide only, and are based on a typical repayment mortgage model. Financial decisions should not be made based on these calculations and accuracy is not guaranteed. Always seek professional advice before making any financial decisions.

Directions

Travelling from Holywood High Street travel up Church Road and continue for two miles No209 is on your right.

Contact Agent

Contact Rodgers & Browne

Contact Rodgers & Browne

Request More Information
Requesting Info about...
Building Site 2 @ 209 Church Road, Holywood, BT18 9RN Building Site 2 @ 209 Church Road, Holywood, BT18 9RN

By registering your interest, you acknowledge our Privacy Policy
Ask Holmes
Ask Holmes
Let's find your next home

Are you sure you want to reset the chat?

Checking API...