5 Bed Detached House
41 Whinney Hill
Holywood, BT18 0HF
offers over
£895,000
Key Features & Description
Exceptional family home on a site measuring c. 1 acre with countryside views
Accommodation extending 4,300 sq ft
Mature and landscaped gardens surrounding the property
Immaculately maintained
Spacious entrance hall with feature double sided gas fire
Drawing room with vaulted ceiling and gas fire
Dining room
Open plan kitchen, living and dining space
Family room
Four bedrooms on ground floor, two of which are ensuite
Main bathroom on ground floor
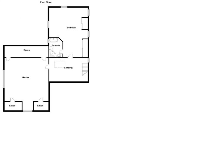
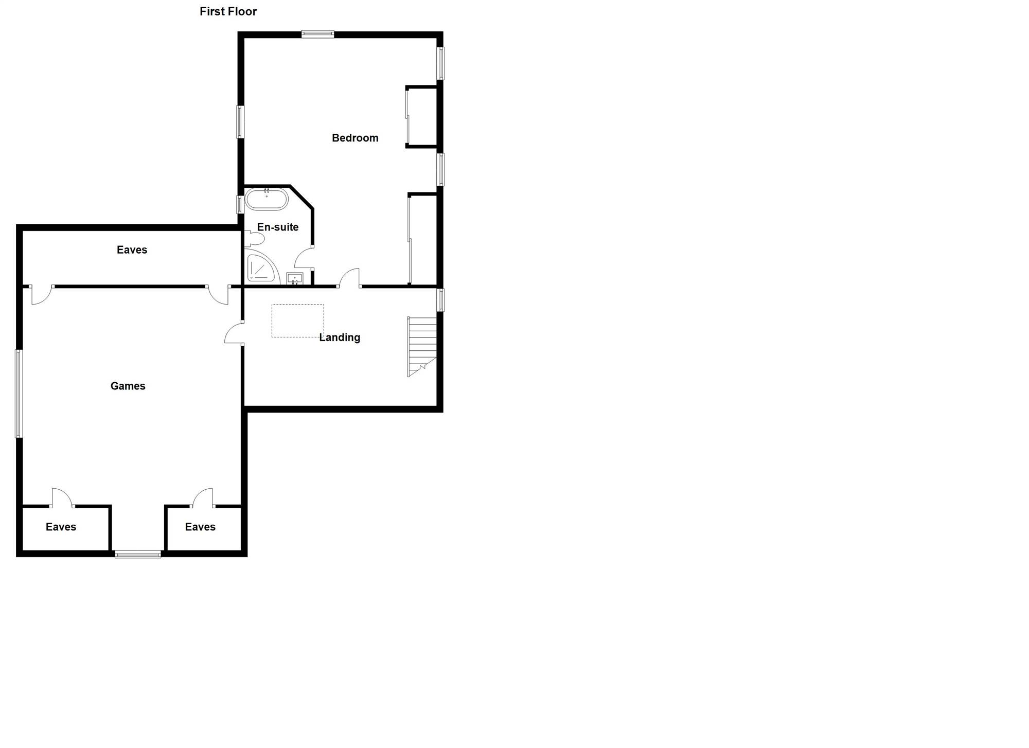
Bedroom one with ensuite on first floor
Games room / home office on first floor over garage
Double integral garage
Utility room
Downstairs cloakroom
Oil fired central heating
Double glazed windows
Beam vacuum system
Large floored roofspace
Alarm system installed
Freehold
Manicured gardens with water feature and artificial grass children"s play area
Paved patio area to the rear
Description
41 Whinney Hill is a spacious detached property on a manageable site measuring 1.1 acres. The property has been renovated over the years and is immaculately maintained by the current owners. Located on Whinney Hill, ideally located a short distance from Holywood, East Belfast, Newtownards and Belfast City Centre. It enjoys all the benefits of living in the countryside whilst remaining extremely convenient for everyday life.
The accommodation is laid out mainly over one level with a first floor which was added later. You are greeted by a bright and spacious entrance hall with gallery landing and double sided gas fire to the drawing room. The drawing room has a vaulted ceiling and doors opening out to the wrap around decking area to the front of the property which enjoys views across the surrounding countryside. There is a separate dining room to the front of the house, and a large open plan kitchen, living and dining space to the rear which is open to a spacious family room. The kitchen is fitted with contemporary units and high end integrated appliances, the casual living space has a modern gas fire and the dining space has an attractive outlook to the rear gardens. Furthermore on the ground floor there are four bedrooms, two of which have ensuite shower rooms and a family bathroom. In addition on this level there is a downstairs cloakroom, utility room, large hot press and access to an extensive floored roof space. From the main entrance hall there is a staircase which leads to the first floor gallery landing which can be used as a pleasant reading area, there is a an additional bedroom and ensuite bathroom and a games room / home office over the garage. The integral double garage can be accessed from the entrance hallway and the utility room from the kitchen, the garage also holds the utility facilities.
The property is surrounded by immaculate, landscaped gardens with an array of plant species, water feature, lawns, patio space and an artificial lawn space which is ideal for a children"s play area. You approach the property by a sweeping tarmac driveway with ample parking and turning space. Other benefits include oil fired central heating, double glazed windows and a freehold status.
Internal inspection is recommended to appreciate the space this property has to offer.
41 Whinney Hill is a spacious detached property on a manageable site measuring 1.1 acres. The property has been renovated over the years and is immaculately maintained by the current owners. Located on Whinney Hill, ideally located a short distance from Holywood, East Belfast, Newtownards and Belfast City Centre. It enjoys all the benefits of living in the countryside whilst remaining extremely convenient for everyday life.
The accommodation is laid out mainly over one level with a first floor which was added later. You are greeted by a bright and spacious entrance hall with gallery landing and double sided gas fire to the drawing room. The drawing room has a vaulted ceiling and doors opening out to the wrap around decking area to the front of the property which enjoys views across the surrounding countryside. There is a separate dining room to the front of the house, and a large open plan kitchen, living and dining space to the rear which is open to a spacious family room. The kitchen is fitted with contemporary units and high end integrated appliances, the casual living space has a modern gas fire and the dining space has an attractive outlook to the rear gardens. Furthermore on the ground floor there are four bedrooms, two of which have ensuite shower rooms and a family bathroom. In addition on this level there is a downstairs cloakroom, utility room, large hot press and access to an extensive floored roof space. From the main entrance hall there is a staircase which leads to the first floor gallery landing which can be used as a pleasant reading area, there is a an additional bedroom and ensuite bathroom and a games room / home office over the garage. The integral double garage can be accessed from the entrance hallway and the utility room from the kitchen, the garage also holds the utility facilities.
The property is surrounded by immaculate, landscaped gardens with an array of plant species, water feature, lawns, patio space and an artificial lawn space which is ideal for a children"s play area. You approach the property by a sweeping tarmac driveway with ample parking and turning space. Other benefits include oil fired central heating, double glazed windows and a freehold status.
Internal inspection is recommended to appreciate the space this property has to offer.
Rooms
PVC entrance door with glazed side panels.
ENTRANCE PORCH: 8' 9" X 8' 8" (2.67m X 2.64m)
Average. Tiled floor, PVC glazed inner door and side panels to entrance hall.
ENTRANCE HALL: 19' 7" X 17' 4" (5.97m X 5.28m)
Staircase to first floor with gallery landing, double sided contemporary gas fire with brick surround, vaulted ceiling with velux window.
SIDE HALLWAY:
Access to integral garage.
CLOAKROOM: 8' 9" X 4' 3" (2.67m X 1.30m)
Traditional suite comprising of pedestal wash hand basin and 'Crapper' style WC.
INTEGRAL DOUBLE GARAGE: 27' 6" X 23' 2" (8.38m X 7.06m)
Twin up and over insulated remote controlled doors, fitted units with stainless steel sink unit with mixer taps, plumbed for washing machine, oil fired central heating boiler, beam vacuum system, PVC door to rear, access to utility room.
HALLWAY: 51' 9" X 6' 7" (15.77m X 2.01m)
Walk in storage cupboard with hot water tank, corniced ceiling, recessed lighting, access to fully floored roofspace via Slingsby ladder.
DRAWING ROOM: 24' 6" X 22' 9" (7.47m X 6.93m)
Double sided contemporary gas fire with brick surround, vaulted tongue and groove panelled ceiling, 180 degree view of surrounding countryside, PVC glazed doors which opens onto wrap around decking area.
DINING ROOM: 18' 5" X 13' 0" (5.61m X 3.96m)
Corniced ceiling, ceiling rose.
KITCHEN / LIVING: 36' 3" X 12' 11" (11.05m X 3.94m)
Contemporary white handleless kitchen with Corrian worktops, excellent range of high and low level units, 1.5 bowl stainless steel sink unit with mixer tap and Quooker hot water tap, integrated dishwasher, 4 ring induction hob with stainless steel extractor hood, integrated oven, integrated combi microwave oven and plate warming drawer, integrated fridge freezer, peninsula unit with breakfast bar dining, living area with contemporary gas fire with storage drawers beneath. Double opening glazed PVC doors to rear patio and gardens, ceramic tiled floor, recessed lighting, open to Dining Area.
DINING AREA: 17' 1" X 12' 0" (5.21m X 3.66m)
Attractive outlook to gardens, built in dresser with shelves and drawers, ceramic tiled floor.
UTILITY ROOM: 10' 7" X 6' 0" (3.23m X 1.83m)
Fitted with stainless steel sink unit with mixer tap, cloaks space, ceramic tiled floor, recessed lighting, door to integral garage.
FAMILY ROOM: 24' 2" X 17' 2" (7.37m X 5.23m)
Built in display with shelving and drawers, contemporary gas fire with storage drawers beneath, double opening glazed PVC doors to patio and gardens.
BEDROOM (5)/STUDY: 18' 5" X 6' 6" (5.61m X 1.98m)
Built in bookcases, cupboards and desk space.
BATHROOM: 18' 5" X 9' 3" (5.61m X 2.82m)
Ornate 'Adamsez' suite comprising of low flush WC, bidet, pedestal wash hand basin, panelled bath with mixer taps and hand held shower fitment, recessed lighting.
BEDROOM (2): 18' 6" X 15' 4" (5.64m X 4.67m)
Excellent range of built in wardrobes, drawers and bedside tables.
ENSUITE SHOWER ROOM:
Contemporary white suite comprising of low flush WC, wash hand basin with vanity below and illuminated mirror above, large shower unit with chrome thermostatic controls, fully tiled walls, tiled floor, chrome heated towel rail, recessed lighting.
BEDROOM (3): 12' 11" X 11' 1" (3.94m X 3.38m)
ENSUITE SHOWER ROOM:
Contemporary white suite comprising of low flush WC, wash hand basin, large shower unit with Mira instant heat electric shower, tiled floor, fully tiled walls, chrome heated towel rail, recessed lighting.
BEDROOM (4): 12' 11" X 11' 2" (3.94m X 3.40m)
GALLERY LANDING: 17' 5" X 14' 0" (5.31m X 4.27m)
Reading area, velux window, recessed lighting.
BEDROOM (1): 24' 4" X 17' 3" (7.42m X 5.26m)
Built in sliding wardrobes, recessed lighting.
ENSUITE BATHROOM: 9' 0" X 8' 0" (2.74m X 2.44m)
Contemporary white suite comprising of low flush WC, free standing roll top claw ball foot bath with mixer taps and hand held shower fitment, wash hand basin with vanity unit below and illuminated mirror above, tallboy storage cupboard, large corner shower with chrome thermostatic controls, tiled floor, fully tiled walls, chrome heated towel rail, recessed lighting.
GAMES ROOM: 23' 9" X 22' 3" (7.24m X 6.78m)
Attractive outlook to rolling surrounding countryside, built in shelving, drawers, cupboards and desk area, access to eaves storage, recessed lighting.
Property is surrounded by manicured, landscaped gardens laid in lawns with mature shrub beds with an array of plant species, water feature, artificial lawns, kids play area, tarmac sweeping driveway, mature border hedging, security lighting, enclosed PVC oil tank, water supply, paved patio area to the rear, wrap around decking area to front accessed from drawing room.
Broadband Speed Availability
Potential Speeds for 41 Whinney Hill
Max Download
10000
Mbps
Max Upload
10000
MbpsThe speeds indicated represent the maximum estimated fixed-line speeds as predicted by Ofcom. Please note that these are estimates, and actual service availability and speeds may differ.
Property Location
Mortgage Calculator
Contact Agent
Contact Simon Brien (Holywood)
Request More Information
Requesting Info about...
41 Whinney Hill, Holywood, BT18 0HF
By registering your interest, you acknowledge our Privacy Policy
By registering your interest, you acknowledge our Privacy Policy