5 Bed Semi-Detached House
Tudor Hall, 5 Tudor Park
Holywood, BT18 0NX
offers around
£1,295,000
- Status For Sale
- Property Type Semi-Detached
- Bedrooms 5
- Receptions 6
- Heating Phoenix Gas
-
Stamp Duty
Higher amount applies when purchasing as buy to let or as an additional property£73,250 / £138,000*
Key Features & Description
Distinguished Gothic Tudor Victorian home with picturesque views over Belfast Lough
Gracious semi detached residence holding an esteemed Grade B1 Listed status
Originally built in the 1840s the home was fully restored and modernised in 2024
Exceptional period detailing throughout: ornate cornicing, ceiling roses, bay windows, original shutters in principal rooms, and impressive ceiling heights
Restored and enhanced working marble fireplaces by Ryan & Smith specialists
Elegant entrance hall with cloakroom and powder room and seperate WC
Formal drawing room with bay wondows and period fireplace
Contemporary kitchen/dining space with Calcutta Viola marble island, bespoke cabinetry, premium integrated appliances and amazing fireplace
Bright garden sunroom
Additional secondary kitchen with Samsung American fridge/freezer, range cooker, laundry appliances, and informal dining area
Five to six bedrooms offering flexible accommodation
Expansive office / creative studio / entertainment suite
Four luxury bathrooms fitted with high end Hansgrohe, Arcade, and AXOR fixtures
Gas fired central heating with a new high capacity Worcester boiler and pump system
RING security system with Wi Fi and solar enabled surveillance
Generous driveway with ample parking and turning space
Mature landscaped areas outside with rolling lawns and private woodland gardens
Set on an elevated site of approximately 0.5 acres
Highly sought after and exceptionally convenient Holywood location
Convenient to Holywood town centre, the Coastal paths and beaches, Balfast City and the City Airport
Description
Built in the 1840s for Belfast merchant Henry Murney, Tudor Hall is an outstanding example of Tudor-Gothic architecture, beautifully restored to combine historic elegance with modern luxury. This remarkable Grade B1 Listed home has been sensitively refurbished throughout, preserving its original character while introducing high-quality contemporary finishes for effortless modern living.
Set on approximately half an acre of landscaped gardens and private woodland, the property enjoys a peaceful, elevated position with picturesque views across Belfast Lough. Despite its privacy, it remains only a short walk from Holywood"s bustling High Street and the beaches of Seapark & Cultra, offering an ideal balance of seclusion and convenience.
Inside, the residence showcases the finest elements of the neo-Elizabethan style, with striking period features, generous proportions, and a warm, inviting atmosphere. The recent restoration has been carried out with exceptional attention to detail, ensuring the home retains its heritage while meeting the expectations of today"s discerning buyer.
Opportunities to acquire a property of such architectural significance and quality are exceptionally rare. Tudor Hall represents a unique chance to own a landmark residence in one of Holywood"s most desirable and private settings.
Built in the 1840s for Belfast merchant Henry Murney, Tudor Hall is an outstanding example of Tudor-Gothic architecture, beautifully restored to combine historic elegance with modern luxury. This remarkable Grade B1 Listed home has been sensitively refurbished throughout, preserving its original character while introducing high-quality contemporary finishes for effortless modern living.
Set on approximately half an acre of landscaped gardens and private woodland, the property enjoys a peaceful, elevated position with picturesque views across Belfast Lough. Despite its privacy, it remains only a short walk from Holywood"s bustling High Street and the beaches of Seapark & Cultra, offering an ideal balance of seclusion and convenience.
Inside, the residence showcases the finest elements of the neo-Elizabethan style, with striking period features, generous proportions, and a warm, inviting atmosphere. The recent restoration has been carried out with exceptional attention to detail, ensuring the home retains its heritage while meeting the expectations of today"s discerning buyer.
Opportunities to acquire a property of such architectural significance and quality are exceptionally rare. Tudor Hall represents a unique chance to own a landmark residence in one of Holywood"s most desirable and private settings.
Rooms
ENTRANCE PORCH: 8' 2" X 7' 11" (2.50m X 2.41m)
Double opening entrance door with glass side panels. Ornate period tiled floor. Double opening glazed doors to:
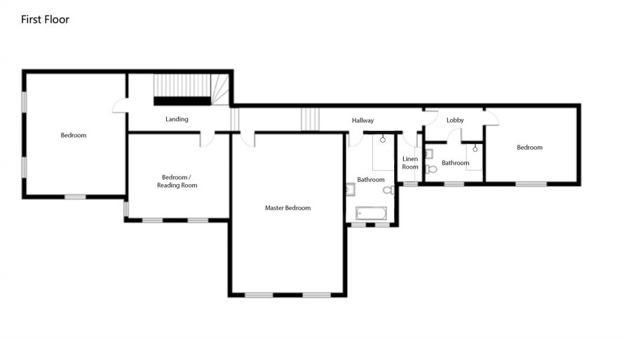
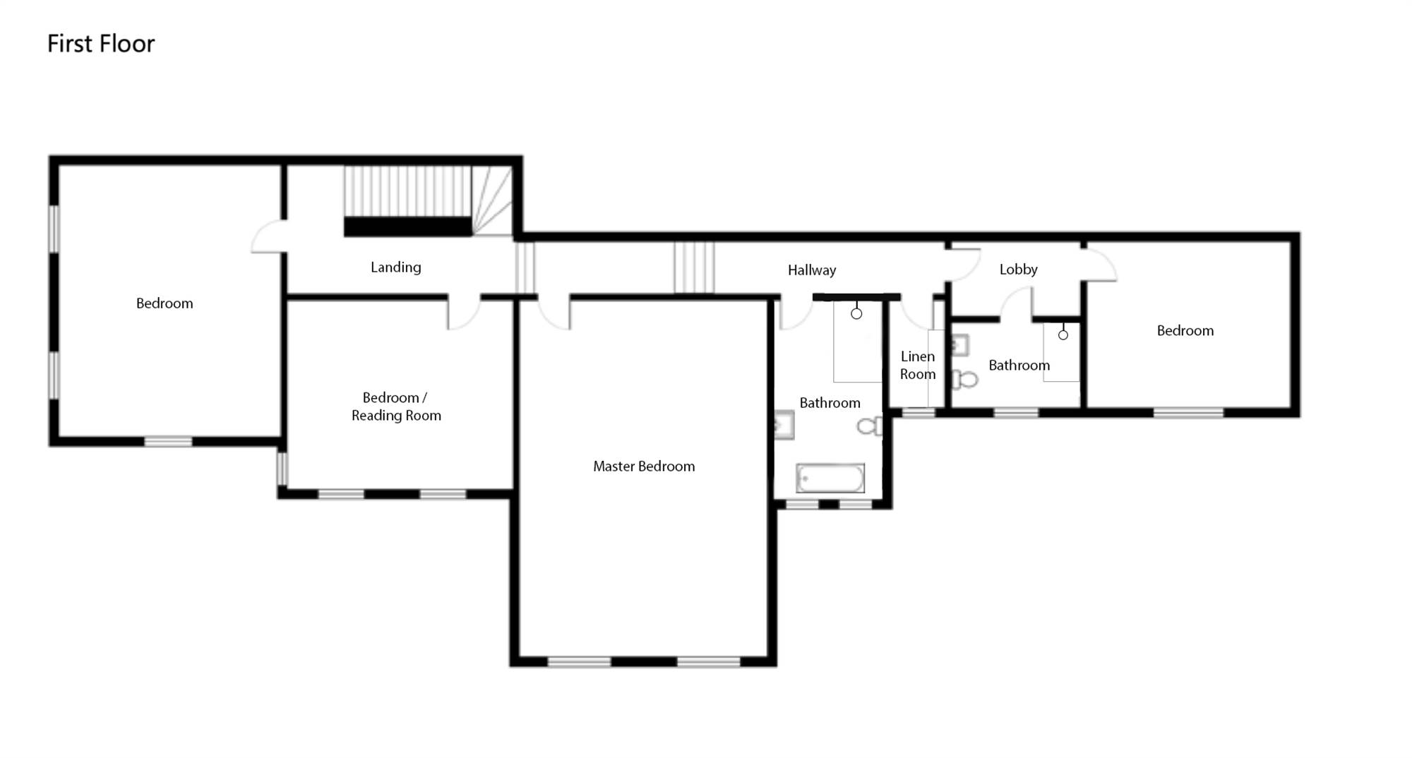
ENTRANCE HALL: 24' 8" X 17' 2" (7.52m X 5.23m)
Impressive reception hall with restored hardwood strip flooring, ornate cornice detail and ceiling rose. Feature staircase to First Floor.
WC:
Traditional style suite with wash hand basin and low flush WC. Hardwood strip floor.
CLOAKROOM:
Hanging space. Restored hardwood strip floor.
7.9 25' 11" X 23' 2" (7.90m X 7.06m)
Views over the garden and Belfast Lough. Magnificent reception room with restored hardwood strip flooring, corniced ceiling, period open fire and hearth.
KITCHEN/DINING ROOM: 27' 3" X 18' 11" (8.30m X 5.77m)
Corniced ceiling and ceiling rose. Period open fire with hearth, restored hardwood strip flooring, working original shutters. Integrated premium appliances, bespoke carpentry and a large Calcutta Viola marble island. Access to Garden Room.
GARDEN ROOM:
Hardwood strip floor. Double opening doors to side garden.
REAR HALLWAY:
Hardwood strip flooring.
ART GALLERY: 14' 11" X 8' 3" (4.55m X 2.51m)
Hardwood strip floor. Access to Garden Room.
GYM: 6' 8" X 6' 6" (2.03m X 1.98m)
New gas-fired central heating boiler. Quarry tiled floor, half tiled walls. Access to enclosed yard.
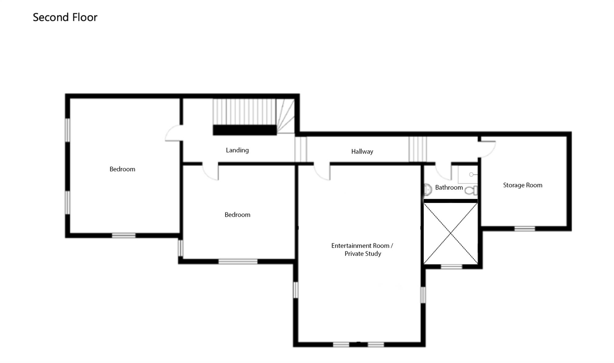
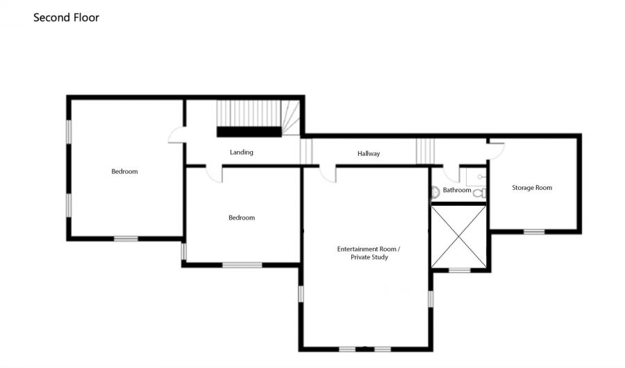
BEDROOM (1): 20' 7" X 15' 8" (6.27m X 4.78m)
Views across Belfast Lough. Corniced ceiling. Hardwood strip floor surround with central carpet.
READING AREA/OPEN LANDING: 16' 11" X 14' 5" (5.16m X 4.40m)
Views over the garden and Lough. Period fireplace and restored hardwood floor.
PRINCIPAL BEDROOM: 26' 8" X 19' 0" (8.13m X 5.80m)
Expansive principal room with views over the garden and Lough. Corniced ceiling, hardwood flooring and period fireplace.
BATHROOM: 8' 2" X 8' 3" (2.50m X 2.51m)
Shower enclosure, wash hand basin, wall-hung WC, Amtico flooring.
REAR LANDING: 13' 10" X 9' 8" (4.22m X 2.95m)
BEDROOM (3): 15' 8" X 12' 2" (4.78m X 3.70m)
Corniced ceiling. Carpet. Period tiled fireplace.
LINEN ROOM:
Shelving and secondary boiler for upper floor
BEDROOM (4): 18' 5" X 16' 4" (5.61m X 4.98m)
Views across Belfast Lough. Fitted with full-length wardrobes. Wooden floor surround and central carpet.
BEDROOM (5): 16' 4" X 14' 8" (4.98m X 4.47m)
Views across Belfast Lough and gardens. Period tiled fireplace. Carpet.
OFFICE SUITE 1: 26' 8" X 19' 0" (8.13m X 5.80m)
OFFICE SUITE 2: 16' 9" X 9' 5" (5.10m X 2.87m)
OFFICE SUITE 3: 16' 10" X 9' 5" (5.13m X 2.87m)
OFFICE SUITE 4: 13' 7" X 13' 2" (4.14m X 4.01m)
Flexible office/creative spaces with views over Belfast Lough and garden. Period fireplaces. Carpet.
ENCLOSED YARD:
Fully quarry paved. Water supply.
STORE / GARAGE: 16' 12" X 11' 6" (5.18m X 3.50m)
Twin Belfast sink. Quarry tiled floor. Power and light. Covered wood store.
Newly landscaped with feature planting and shrub beds. Golden gravel driveway and pathways Secure fencing, gates and hedge boundaries Expansive lawns and numerous outdoor entertaining areas with garden and Lough views. A rare private woodland with a variety of species and seasonal wildflowers, offering both seclusion and a natural retreat
Broadband Speed Availability
Potential Speeds for 5 Tudor Park
Max Download
1800
Mbps
Max Upload
220
MbpsThe speeds indicated represent the maximum estimated fixed-line speeds as predicted by Ofcom. Please note that these are estimates, and actual service availability and speeds may differ.
Property Location
Mortgage Calculator
Directions
Tudor Park, Holywood
Contact Agent
Contact Colliers New Homes
Request More Information
Requesting Info about...
Tudor Hall, 5 Tudor Park, Holywood, BT18 0NX
By registering your interest, you acknowledge our Privacy Policy
By registering your interest, you acknowledge our Privacy Policy