Contact Agent
Contact Templeton Robinson (North Down)
3 Bed Terrace House
13 Hillview Place
Holywood, BT18 9DL
offers over
£179,950
Key Features & Description
Well Presented Mid Terrace
Excellent Standard of Decor Throughout
Spacious Living Room with Cast Iron Fireplace
Cream Kitchen with Casual Dining Area
Three Well Proportioned Bedrooms
White Bathroom Suite
Double Glazed Windows / Gas Fired Central Heating
Front & Enclosed Rear Garden, Patio Area
Garden Store / Utility Room
Popular & Sought After Location.
Description
Located in the ever-popular Hillview Place, this well-presented mid-terrace property offers convenience, comfort, and within easy walking distance of Holywood"s vibrant town centre. Tastefully maintained throughout, the home is ideal for first-time buyers, downsizers, or investors seeking a ready-to-move-into residence in a prime location.
The accommodation comprises a bright and welcoming living room with cast iron fireplace, a modern fitted kitchen with casual dining area, and three well-proportioned bedrooms, white bathroom suite, all complemented by neutral décor and a practical layout. Outside, the property benefits from an enclosed rear garden/patio area, providing a private space for relaxing or entertaining.
Just a short stroll from an array of cafés, restaurants, boutique shops, coastal walks, and transport links, this appealing home combines peaceful residential living with superb accessibility.
Located in the ever-popular Hillview Place, this well-presented mid-terrace property offers convenience, comfort, and within easy walking distance of Holywood"s vibrant town centre. Tastefully maintained throughout, the home is ideal for first-time buyers, downsizers, or investors seeking a ready-to-move-into residence in a prime location.
The accommodation comprises a bright and welcoming living room with cast iron fireplace, a modern fitted kitchen with casual dining area, and three well-proportioned bedrooms, white bathroom suite, all complemented by neutral décor and a practical layout. Outside, the property benefits from an enclosed rear garden/patio area, providing a private space for relaxing or entertaining.
Just a short stroll from an array of cafés, restaurants, boutique shops, coastal walks, and transport links, this appealing home combines peaceful residential living with superb accessibility.
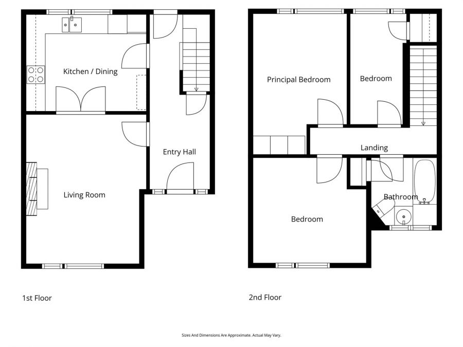
Rooms
uPVC front door.
ENTRANCE HALL:
Pine solid wooden floor. Storage under stairs. uPVC door to outside.
LIVING ROOM: 15' 0" X 12' 0" (4.57m X 3.66m)
Cast iron fireplace, pine wood strip flooring. Double doors to:
KITCHEN/CASUAL DINING AREA: 12' 0" X 10' 0" (3.66m X 3.05m)
Range of high and low level cream kitchen units, laminate work surfaces, Hotpoint hob and oven, one and a half bowl stainless steel sink unit with mixer tap, plumbed for dishwasher, space for fridge/freezer, ceramic tiled floor.
LANDING:
Linen cupboard.
BATHROOM:
White bathroom suite comprising panelled bath with mixer taps, Bristan electric shower, shower screen, pedestal wash hand basin, low flush wc, heated towel rail, ceramic tiled floor, part tiled walls. Linen cupboard with built-in shelving. Access to roofspace with gas fired boiler.
BEDROOM (1): 14' 0" X 9' 0" (4.27m X 2.74m)
Wood painted strip flooring.
BEDROOM (2): 12' 0" X 10' 0" (3.66m X 3.05m)
BEDROOM (3): 11' 0" X 5' 10" (3.35m X 1.78m)
Built-in cupboard, wood painted strip flooring.
Pedestrian gateway. Front garden. Enclosed rear garden, decked patio. Garden store, plumbed for washing machine, space for tumble dryer.
Broadband Speed Availability
Potential Speeds for 13 Hillview Place
Max Download
1800
Mbps
Max Upload
220
MbpsThe speeds indicated represent the maximum estimated fixed-line speeds as predicted by Ofcom. Please note that these are estimates, and actual service availability and speeds may differ.
Property Location
Mortgage Calculator
Directions
Following on up Church Road in Holywood take the first right onto Church View then take the fourth left into Spencer Street and Hillview Place is on the left hand side.
Contact Agent
Contact Templeton Robinson (North Down)
Request More Information
Requesting Info about...
13 Hillview Place, Holywood, BT18 9DL
By registering your interest, you acknowledge our Privacy Policy
By registering your interest, you acknowledge our Privacy Policy