Contact Agent
Contact Templeton Robinson (North Down)
3 Bed Semi-Detached House
50 Garnerville Gardens
Holywood Road, Belfast, BT4 2PA
offers over
£210,000
Key Features & Description
Quiet yet highly convenient location just off Parklands
Bright, spacious & well-proportioned semi detached
Living Room
Kitchen open plan to Dining Room
Three Bedrooms
Bathroom with 4 piece suite
Gas fired central heating
uPVC frame double glazed windows
Floored roofspace with Cosy Insulation attic spray foam
Re-wired 2020
Tarmac driveway - off street parking / Enclosed rear garden in lawn with raised patio / Elevated position affording private aspect to rear
Close to arterial road networks with links to Belfast & beyond
Within proximity to Holywood, Ballyhackamore, Belmont & Belfast
Nearby to Holywood Exchange (including Ikea), 24 hour Tesco, Bannatyne Health Club and Belfast City Airport
Description
Located just off Parklands, this well-presented semi-detached property is tucked away in a quiet yet highly convenient residential area.
Occupying an elevated position, the property affords a notably private aspect with an enclosed rear garden in lawn. Internally, the accommodation is bright and well-proportioned. The layout comprises hallway, lounge, and open plan kitchen - dining overlooking and with direct access to the garden. The first floor provides three bedrooms and modern 4 piece white bathroom.
Offering ease of access to arterial routes including the Outer Ring and M3 which connects the Province's motorway networks. Various leading schools are close to hand. Popular shopping facilities at Belmont, Ballyhackamore and Holywood are nearby as are Holywood Exchange (including Ikea), 24 hour Tesco, Bannatyne Health Club and Belfast City Airport. Perfectly suited to the young professional or those starting a family, early viewing is highly recommended.
Located just off Parklands, this well-presented semi-detached property is tucked away in a quiet yet highly convenient residential area.
Occupying an elevated position, the property affords a notably private aspect with an enclosed rear garden in lawn. Internally, the accommodation is bright and well-proportioned. The layout comprises hallway, lounge, and open plan kitchen - dining overlooking and with direct access to the garden. The first floor provides three bedrooms and modern 4 piece white bathroom.
Offering ease of access to arterial routes including the Outer Ring and M3 which connects the Province's motorway networks. Various leading schools are close to hand. Popular shopping facilities at Belmont, Ballyhackamore and Holywood are nearby as are Holywood Exchange (including Ikea), 24 hour Tesco, Bannatyne Health Club and Belfast City Airport. Perfectly suited to the young professional or those starting a family, early viewing is highly recommended.
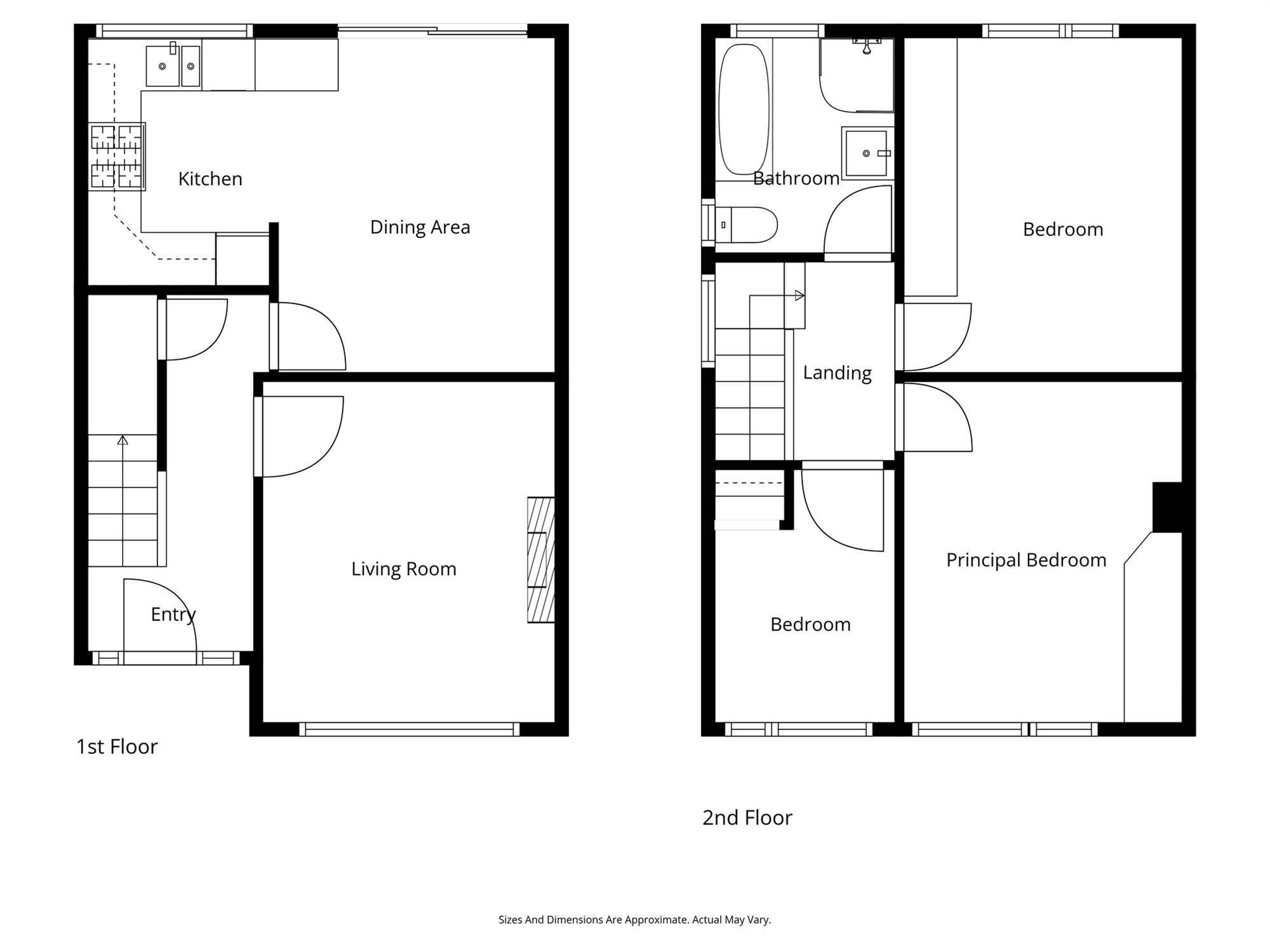
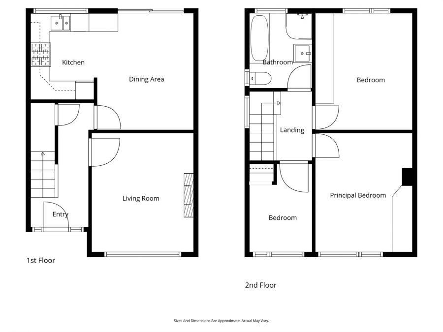
Rooms
Composite uPVC double glazed front door to . . .
HALLWAY:
Oak wood floor, storage cupboard understairs.
LIVING ROOM: 12' 10" X 11' 2" (3.90m X 3.40m)
Oak effect laminate wood floor.
OPEN PLAN KITCHEN/DINING: 17' 9" X 12' 10" (5.40m X 3.90m)
Shaker style kitchen with range of high and low level units, stainless steel sink with drainer and mixer tap, laminate worktops, subway tiled walls, Hotpoint built-in oven, four ring gas hob, stainless steel extractor fan, space for dishwasher, space for fridge freezer, oak wood floor, uPVC sliding door to exterior.
LANDING:
Access to floored roofspace with cozy insulation attic spray foam.
BEDROOM (1): 12' 6" X 10' 2" (3.80m X 3.10m)
Range of built-in wardrobes with sliding doors, Worcester gas fired boiler.
BEDROOM (2): 12' 6" X 10' 2" (3.80m X 3.10m)
Built-in wardrobes.
BEDROOM (3): 8' 10" X 7' 7" (2.70m X 2.30m)
Alcove shelving.
BATHROOM:
Four piece white suite comprising panelled bath with mixer tap, fully tiled built-in shower cubicle with mains shower unit, wash hand basin with mixer tap and low level drawer, low flush wc, fully tiled walls, ceramic tiled floor, extractor fan, uPVC tongue and groove ceiling.
Quiet yet convenient location just off Parklands. Tarmac driveway with off street parking. Enclosed rear garden in lawn with raised patio benefitting from private aspect. Timber shed with light, power and plumbed for washing machine.
Broadband Speed Availability
Potential Speeds for 50 Garnerville Gardens
Max Download
1800
Mbps
Max Upload
220
MbpsThe speeds indicated represent the maximum estimated fixed-line speeds as predicted by Ofcom. Please note that these are estimates, and actual service availability and speeds may differ.
Property Location
Mortgage Calculator
Directions
Travelling out of Belfast along Holywood Road, take the last right before the dual carraigeway junction, on to Parkway. Take the first slip road on the left into Garnerville.
Contact Agent
Contact Templeton Robinson (North Down)
Request More Information
Requesting Info about...
50 Garnerville Gardens, Holywood Road, Belfast, BT4 2PA
By registering your interest, you acknowledge our Privacy Policy
By registering your interest, you acknowledge our Privacy Policy