3 Bed Semi-Detached House
16 Churchview Meadows
Hillsborough, BT26 6TS
offers over
£299,500
Description
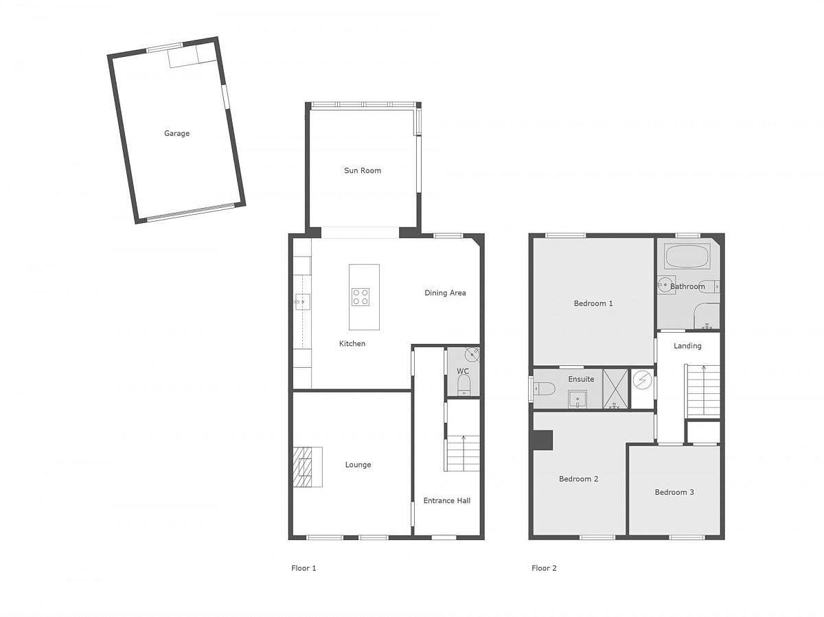
Boasting just over 1400 sq.ft. of spacious accommodation, number 16 is a tastefully presented semi-detached home, situated within this small exclusive development located a short drive from Royal Hillsborough.
The property benefits from a Sun Room off the Kitchen/Dining, a Garage and modern air source heat pump providing excellent energy efficiency.
Whilst enjoying a semi rural location, Churchview Meadows is only a few minutes drive away from the A1 dual carriageway for those wishing to commute.
Accommodation comprises:
Ground floor: Reception Hall; Downstairs w.c.; Lounge; Kitchen/Dining; Sun Room.
First floor: 3 Bedrooms (Principal Bedroom with Ensuite Shower Room); 2 further Bedrooms; Bathroom.
Specification includes: PVC double glazed windows with sliding sash to front; Air source heat pump; Alarm system.
Outside: Tarmacadam driveway leading to Garage (18'10" x 11'2") with roller door and plumbed for washing machine.
Front garden laid to lawn. Fully enclosed rear garden comprising paved patio area and lawn. Light and tap.
GROUND FLOOR
RECEPTION HALL
Part glazed composite front door with glazed fan light over. Herringbone style tiled floor. Understairs storage cupboard. Downlighters.
CLOAKROOM
Pedestal wash hand basin with mixer tap and low flush w.c. Tiled floor.
LOUNGE - 5.1m (16'9") x 3.77m (12'4")
Feature electric stove on granite hearth.
KITCHEN/DINING AREA - 5.97m (19'7") x 4.49m (14'9")
Range of modern high and low level units. Sink unit with mixer tap. Built-in oven. Integrated dishwasher. Integrated fridge freezer. Matching Island unit with 4 ring induction hob with integrated extractor unit, cupboards and drawers and breakfast bar. Herringbone style tiled floor. Downlighters.
SUN ROOM - 3.56m (11'8") x 3.34m (10'11")
Herringbone style tiled floor. PVC patio doors. Downlighters.
FIRST FLOOR
PRINCIPAL BEDROOM - 4.12m (13'6") x 3.8m (12'6")
ENSUITE SHOWER ROOM
Large shower enclosure with drench head shower and hose attachment; vanity wash hand basin with mixer tap; and w.c. Heated towel rail. Tiled floor.
BEDROOM 2 - 4.13m (13'7") x 2.95m (9'8")
BEDROOM 3 - 2.94m (9'8") x 2.92m (9'7")
Built-in cupboard.
BATHROOM
White suite to include free standing bath with central mixer tap and shower attachment; corner shower cubicle with drench head shower and separate hose attachment; floating wash hand basin with mixer tap; and w.c. Downlighters. Heated towel rail. Tiled floor.
Directions
LOCATION: From Hillsborough take the Dromara Road and Churchview Meadows is on the right hand side.
what3words /// tilts.serves.revise
Notice
Please note we have not tested any apparatus, fixtures, fittings, or services. Interested parties must undertake their own investigation into the working order of these items. All measurements are approximate and photographs provided for guidance only.
Rates Payable
Lisburn And Castlereagh City Council, For Period April 2025 To March 2026 £1,228.23
Utilities
Electric: Unknown
Gas: Unknown
Water: Unknown
Sewerage: Unknown
Broadband: Unknown
Telephone: Unknown
Other Items
Heating: Heat Pump
Garden/Outside Space: Yes
Parking: Yes
Garage: Yes
The property benefits from a Sun Room off the Kitchen/Dining, a Garage and modern air source heat pump providing excellent energy efficiency.
Whilst enjoying a semi rural location, Churchview Meadows is only a few minutes drive away from the A1 dual carriageway for those wishing to commute.
Accommodation comprises:
Ground floor: Reception Hall; Downstairs w.c.; Lounge; Kitchen/Dining; Sun Room.
First floor: 3 Bedrooms (Principal Bedroom with Ensuite Shower Room); 2 further Bedrooms; Bathroom.
Specification includes: PVC double glazed windows with sliding sash to front; Air source heat pump; Alarm system.
Outside: Tarmacadam driveway leading to Garage (18'10" x 11'2") with roller door and plumbed for washing machine.
Front garden laid to lawn. Fully enclosed rear garden comprising paved patio area and lawn. Light and tap.
GROUND FLOOR
RECEPTION HALL
Part glazed composite front door with glazed fan light over. Herringbone style tiled floor. Understairs storage cupboard. Downlighters.
CLOAKROOM
Pedestal wash hand basin with mixer tap and low flush w.c. Tiled floor.
LOUNGE - 5.1m (16'9") x 3.77m (12'4")
Feature electric stove on granite hearth.
KITCHEN/DINING AREA - 5.97m (19'7") x 4.49m (14'9")
Range of modern high and low level units. Sink unit with mixer tap. Built-in oven. Integrated dishwasher. Integrated fridge freezer. Matching Island unit with 4 ring induction hob with integrated extractor unit, cupboards and drawers and breakfast bar. Herringbone style tiled floor. Downlighters.
SUN ROOM - 3.56m (11'8") x 3.34m (10'11")
Herringbone style tiled floor. PVC patio doors. Downlighters.
FIRST FLOOR
PRINCIPAL BEDROOM - 4.12m (13'6") x 3.8m (12'6")
ENSUITE SHOWER ROOM
Large shower enclosure with drench head shower and hose attachment; vanity wash hand basin with mixer tap; and w.c. Heated towel rail. Tiled floor.
BEDROOM 2 - 4.13m (13'7") x 2.95m (9'8")
BEDROOM 3 - 2.94m (9'8") x 2.92m (9'7")
Built-in cupboard.
BATHROOM
White suite to include free standing bath with central mixer tap and shower attachment; corner shower cubicle with drench head shower and separate hose attachment; floating wash hand basin with mixer tap; and w.c. Downlighters. Heated towel rail. Tiled floor.
Directions
LOCATION: From Hillsborough take the Dromara Road and Churchview Meadows is on the right hand side.
what3words /// tilts.serves.revise
Notice
Please note we have not tested any apparatus, fixtures, fittings, or services. Interested parties must undertake their own investigation into the working order of these items. All measurements are approximate and photographs provided for guidance only.
Rates Payable
Lisburn And Castlereagh City Council, For Period April 2025 To March 2026 £1,228.23
Utilities
Electric: Unknown
Gas: Unknown
Water: Unknown
Sewerage: Unknown
Broadband: Unknown
Telephone: Unknown
Other Items
Heating: Heat Pump
Garden/Outside Space: Yes
Parking: Yes
Garage: Yes
Property Location
Mortgage Calculator
Contact Agent
Contact Taylor Patterson
Request More Information
Requesting Info about...
16 Churchview Meadows, Hillsborough, BT26 6TS
By registering your interest, you acknowledge our Privacy Policy
By registering your interest, you acknowledge our Privacy Policy