3 Bed Terrace House
The Old Curatage, 6 The Square
Hillsborough, County Down, BT26 6AG
offers over
£650,000

Key Features & Description
Description
`The Old Curatage´ represents a rare opportunity to acquire an impressive family residence. The house is offers spacious and well proportioned accommodation which retains many of its original features including sash windows, fireplaces, window shutters, high ceilings and cornice detail. The accommodation comprises of drawing room, family room, office, kitchen / dining area, sitting room, utility room with 3 double bedrooms, ensuite and family bathroom. The property also has a superb spacious garden to the rear with twin garages. The property might also appeal to those with a commercial interest subject to planning.
Situated in the heart of Royal Hillsborough with its village ambiance, restaurants and specialist shops and only a short stroll from a host of recreational facilities including Downshire Tennis Club and Hillsborough Fort and Forest Park. This is an important sale and a unique opportunity to acquire a discerning family home in a much sought after idyllic location within close proximity of Lisburn and the M1, with easy access to Belfast and surrounding areas.
`The Old Curatage´ represents a rare opportunity to acquire an impressive family residence. The house is offers spacious and well proportioned accommodation which retains many of its original features including sash windows, fireplaces, window shutters, high ceilings and cornice detail. The accommodation comprises of drawing room, family room, office, kitchen / dining area, sitting room, utility room with 3 double bedrooms, ensuite and family bathroom. The property also has a superb spacious garden to the rear with twin garages. The property might also appeal to those with a commercial interest subject to planning.
Situated in the heart of Royal Hillsborough with its village ambiance, restaurants and specialist shops and only a short stroll from a host of recreational facilities including Downshire Tennis Club and Hillsborough Fort and Forest Park. This is an important sale and a unique opportunity to acquire a discerning family home in a much sought after idyllic location within close proximity of Lisburn and the M1, with easy access to Belfast and surrounding areas.
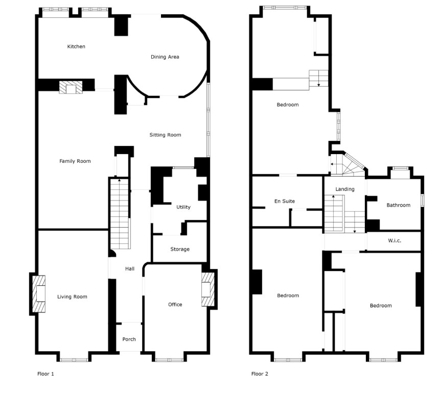
Rooms
Entrance Hall
Solid wood front door with stained glass window above glazed internaal door to
Living Room 19'3" X 10'8" (5.87m X 3.24m)
Marble fireplace with cast iron inset and slate hearth, cornice ceiling
Study 13'3" X 9'7" (4.03m X 2.91m)
Cornice ceiling, built in shelves
Downstairs WC
Tiled floor, low flush WC, pedestal wash hand basin, 'GRANT' oil fired boiler, plumbed for washing machine, space for tumble dryer, space for fridge
Sunroom 12'7" X 10'10" (3.84m X 3.30m)
Tiled floor
Family Room 21'3" X 12'8" (6.48m X 3.85m)
Cast iron fireplace with tiled inset and slate hearth, cornice ceiling
Kitchen/Dining Area 25'6" X 11'7" (7.77m X 3.54m)
Tiled floor, range of high and low level units, 'Gaggenau' electric oven and microwave, integrated fridge, 1.5 bowl inset stainless steel sink unit, granite worktops, 'Bosch' integrated microwave
First Floor Landing
Main Bedroom 24'3" X 12'6" (7.39m X 3.80m)
Built in wardrobe
Ensuite shower room
Fully tiled walls, low flush WC, twin pedestal wash hand basin, bath with thermostatic shower above, shelved hotpress
Bedroom 2 18'8" X 10'9" (5.70m X 3.28m)
Built in wardrobe, exposed beam
Bedroom 3 15'2" X 12'0" (4.63m X 3.66m)
Built in wardrobes, exposed beam
Shower Room
Tiled floor, low flush WC, pedestal wash hand basin, chrome heated towel radiator, shower cubicle
Outside
Shared ownership of driveway and large extensive garden to the rear
Detached Garage 1 14'6" X 12'5" (4.41m X 3.78m)
Power and light, fixed staircase to room above
Room above garage 18'0" X 11'5" (5.49m X 3.49m)
Velux window
Broadband Speed Availability
Potential Speeds for 6 The Square
Max Download
10000
Mbps
Max Upload
10000
MbpsThe speeds indicated represent the maximum estimated fixed-line speeds as predicted by Ofcom. Please note that these are estimates, and actual service availability and speeds may differ.
Property Location

Mortgage Calculator
Contact Agent

Contact Simon Brien (South Belfast)
Request More Information
Requesting Info about...
The Old Curatage, 6 The Square, Hillsborough, County Down, BT26 6AG
By registering your interest, you acknowledge our Privacy Policy

By registering your interest, you acknowledge our Privacy Policy