Contact Agent
Contact Templeton Robinson (Lisburn)
4 Bed Semi-Detached House
16 Farriers Green
Hillsborough, Royal Hillsborough, BT26 6GW
offers over
£399,950
Key Features & Description
Exceptional red brick Georgian style semi-detached home with detached garage
Set in this highly sought after semi-rural development on the edge of Royal Hillsborough
Generous Lounge with feature fireplace
Traditional country style Kitchen Diner with range of appliances
Four well proportioned bedrooms over two floors (Principal with ensuite shower room)
Just minutes walk from the centre of Royal Hillsborough and all of its amenities to include cafe's, boutiques, restaurants and bars
Hillsborough Forest Park & Hillsborough Castle Gardens are also close by
It's location allows an ease of commute via A1 and M1 roadlinks both North and South
Early viewing is highly recommend as recent local sales have proved extremely popular
uPVC double glazed windows (including part sliding sash)
Ground Floor WC
Oil Fired Central Heating
Solid concrete floors throughout
Detached Single garage with generous driveway to front
Sheltered and private rear garden with ample lawn and mature shrub beds (Westerly facing enjoying the sun for the majority of the day)
Recent sales have been extremely popular and early enquires are recommended
Description
We are delighted to present this exceptional Georgian style red brick semi-detached family home. Situated within this renowned development in a quiet semi-rural locality, yet just minutes" walk from the historic and picturesque village of Royal Hillsborough.
The property offers superb well-proportioned accommodation which has been finished to the very highest specification throughout. A generous open plan living kitchen dining area is complimented by a private rear garden.
Presenting four well-proportioned bedrooms (principal with ensuite shower room), luxury family bathroom and detached single garage it is sure to appeal to many. Early viewing is highly recommended.
An exquisite family home and early viewing is highly recommended.
We are delighted to present this exceptional Georgian style red brick semi-detached family home. Situated within this renowned development in a quiet semi-rural locality, yet just minutes" walk from the historic and picturesque village of Royal Hillsborough.
The property offers superb well-proportioned accommodation which has been finished to the very highest specification throughout. A generous open plan living kitchen dining area is complimented by a private rear garden.
Presenting four well-proportioned bedrooms (principal with ensuite shower room), luxury family bathroom and detached single garage it is sure to appeal to many. Early viewing is highly recommended.
An exquisite family home and early viewing is highly recommended.
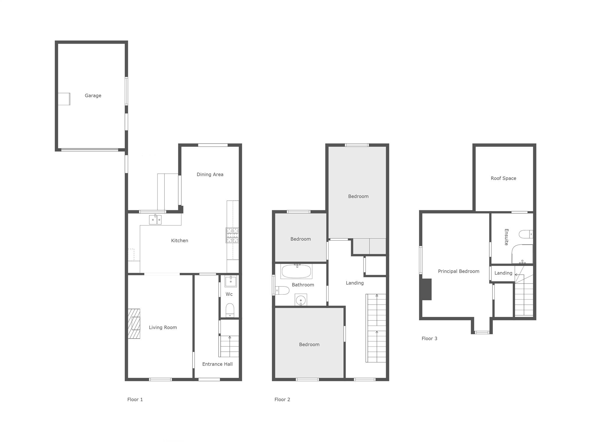
Rooms
ENTRANCE HALL:
Solid wood panel door with fan light over. Solid oak wooden floor, understairs storage.
LOUNGE: 10' 6" X 16' 10" (3.20m X 5.13m)
Solid oak wooden floor, feature fireplace with granite inset and hearth with open fire. Arch to:
KITCHEN DINER : 19' 0" X 18' 7" (5.79m X 5.66m)
(at widest points). Range of high and low level units with wood effect work tops, range style cooker with tiled splashback and extractor canopy above, integrated fridge/freezer, one and a half bowl single drainer stainless steel sink unit. Ample dining area with French doors to rear. Solid oak wooden floor.
WC
Solid oak wooden floor, low-flush WC, wall-mounted wash hand basin, Extractor fan.
LANDING:
Hotpress.
BEDROOM (2): 9' 5" X 15' 0" (2.87m X 4.57m)
BEDROOM (3): 11' 3" X 11' 6" (3.43m X 3.51m)
BEDROOM (4): 8' 5" X 7' 11" (2.57m X 2.41m)
BATHROOM:
Solid oak wooden floor, low-flush WC, pedestal wash hand basin, free standing bath with telephone shower head over, extractor fan.
PRINCIPAL BEDROOM: 11' 6" X 19' 3" (3.51m X 5.87m)
Walk-in robe. Door to:
ENSUITE SHOWER ROOM:
Solid oak wooden floor, low flush WC, pedestal wash hand basin, corner shower cubicle with chrome rain head shower and tiled splashback, extractor fan, storage into eaves. Velux window.
DETACHED GARAGE: 10' 11" X 17' 1" (3.33m X 5.21m)
Roller Shutter door, power, light.
Estate rail fencing to roadside, flat lawn, brick paved path to front and tarmac driveway leading to detached garage.
Fully enclosed rear garden with brick paved patio and steps to rear, ample flat lawn and mature shrub beds, oil tank and outside tap.
TENURE
We have been advised the tenure for this property is Freehold, we recommend the purchaser and their solicitor verify the details.
RATES PAYABLE:
For the period April 2023 to March 2024 £1,924.18
Broadband Speed Availability
Potential Speeds for 16 Farriers Green
Max Download
10000
Mbps
Max Upload
10000
MbpsThe speeds indicated represent the maximum estimated fixed-line speeds as predicted by Ofcom. Please note that these are estimates, and actual service availability and speeds may differ.
Property Location
Mortgage Calculator
Directions
When leaving Royal Hillsborough along Carnreagh towards the Comber Road. Turn right into Farriers Green and no,16 is located on the right hand side.
Contact Agent
Contact Templeton Robinson (Lisburn)
Request More Information
Requesting Info about...
16 Farriers Green, Hillsborough, Royal Hillsborough, BT26 6GW
By registering your interest, you acknowledge our Privacy Policy
By registering your interest, you acknowledge our Privacy Policy